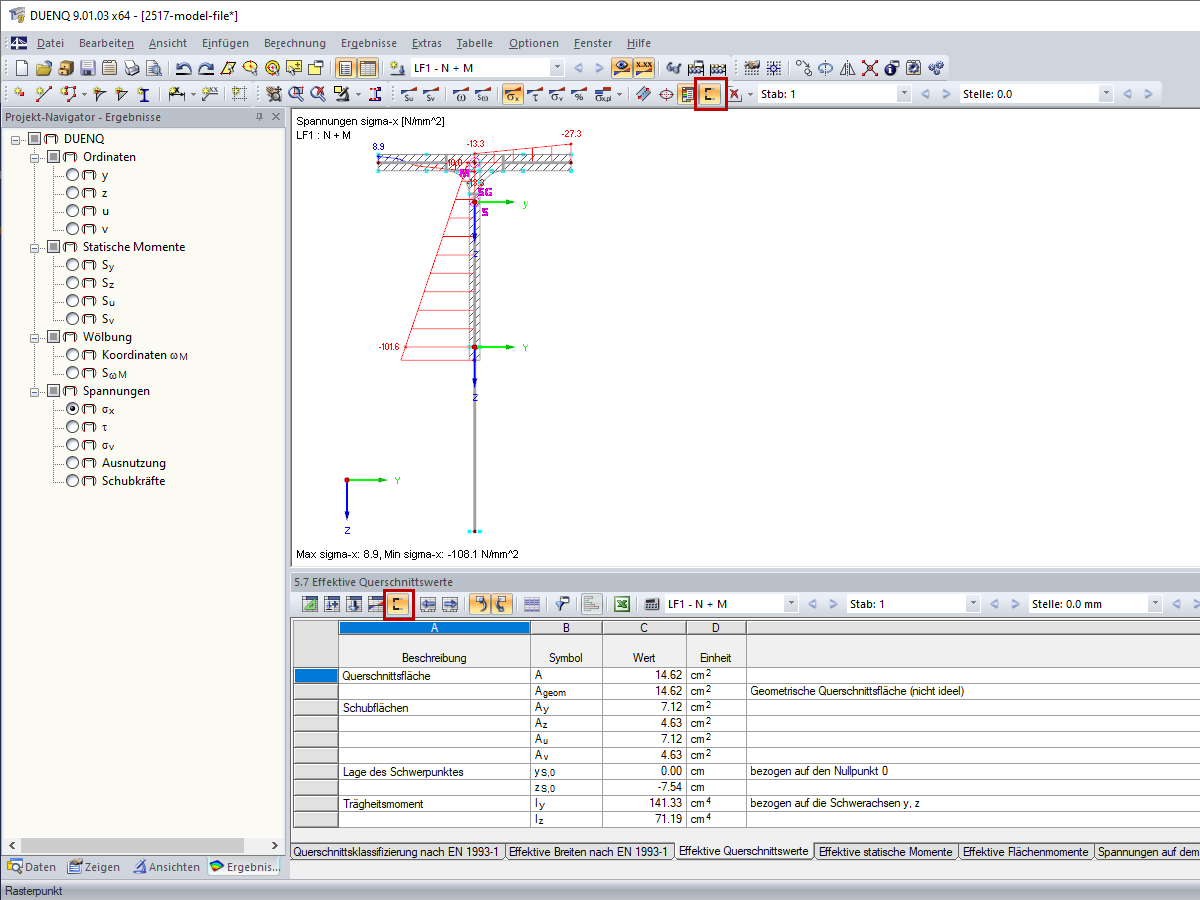
Effective Cross-Section Properties
Effective Cross-Section Properties
2024-05-30
016838
  • SHAPE-THIN 8
  • SHAPE THIN 9
  • Eurocode 3
    • Eurocode 9
    • DIN 18800

Effective Cross-Section Properties

Used in
  • Determination of Effective Cross-Section Properties According to EC 3 or EC 9 in SHAPE-THIN
Share