INAIL Ancona Headquarters renovation with sustainable design and modern hydrotherapy spaces.
  • 3D Viewer
  • 3D Viewer | Babylon
  • Virtual Reality
INAIL Ancona Headquarters renovation with sustainable design and modern hydrotherapy spaces.
2025-02-28
055594
  • RFEM 6
  • Concrete Structures
  • Steel Structures
    • Structural Analysis & Design
    • Stress Analysis
    • Finite Element Analysis

INAIL Headquarters in Ancona| © ATI Project

INAIL Ancona Headquarters renovation with sustainable design and modern hydrotherapy spaces.

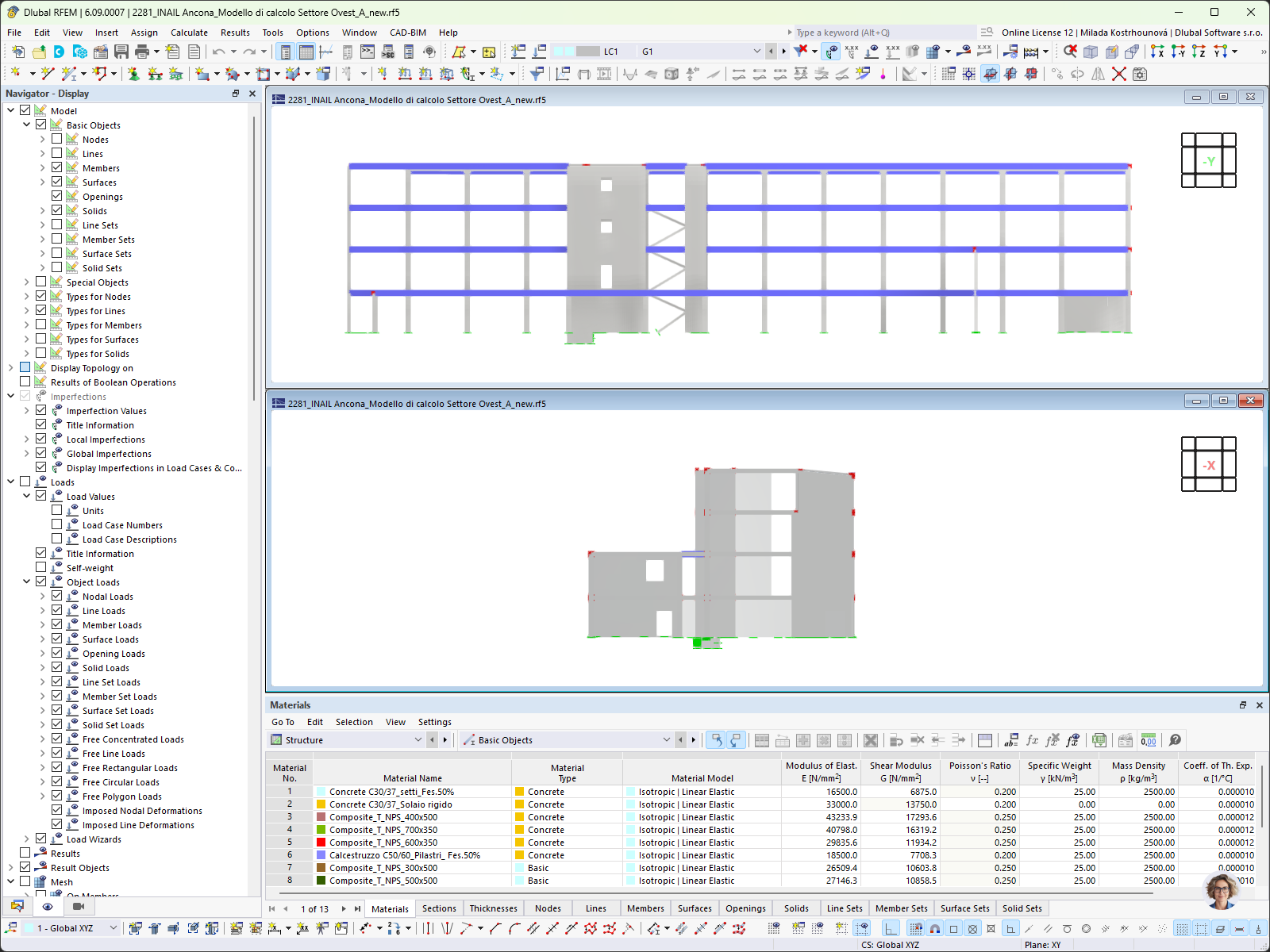
The image details the conversion of a former IPSIA high school into the new INAIL headquarters in Ancona, Italy. The building spans 6,600 sqm over four above-ground levels and features large volumes accented by stone cladding and rhythmic openings. Regular voids, a prominent transparent entrance, and carefully chosen colors highlight its public function. The design employs prefabricated prestressed reinforced concrete and BIM methodology to ensure efficiency, with dedicated spaces for hydrotherapy, health, and rehabilitation alongside offices for regional authorities.
  • INAIL headquarters
  • Renovation project
  • Sustainable design
  • BIM modeling
  • Prefabricated prestressed reinforced concrete
Used in
  • INAIL Ancona Headquarters, Italy
3D Model
No Download Possible Customer Project / View Only
More About 3D Model
  • INAIL Ancona Headquarters
Specifications
Number of Nodes 571
Number of Lines 976
Number of Members 613
Number of Surfaces 236
Number of Solids 0
Number of Load Cases 15
Number of Load Combinations 127
Number of Result Combinations 5
Total Weight 1953.721 tons
Dimensions (Metric) 71.050 x 16.176 x 23.935 m
Dimensions (Imperial) 233.1 x 53.07 x 78.53 feet
Share