386x
001333
2025-02-28

INAIL Ancona Headquarters, Italy

The new INAIL headquarters in Ancona is a result of a thorough evaluation for the renovation of the former IPSIA high school. Focused on sustainability, the project offers a variety of services, including hydrotherapy and rehabilitation spaces, along with offices for regional authorities. Developed in BIM with prefabricated reinforced concrete, it ensures efficiency and meets construction timelines.

The new INAIL headquarters in Ancona, Italy, is the result of a careful technical and economic evaluation aimed at the radical renovation of the former IPSIA high school building. The project prioritizes sustainability, with the goal of creating a functional, service-oriented structure for citizens. The building features large volumes that define the urban edge, highlighted by stone cladding and rhythmic openings. The design incorporates regular voids and color choices that reference the building's public function, while a large transparent entrance disrupts the symmetry to create new proportions.

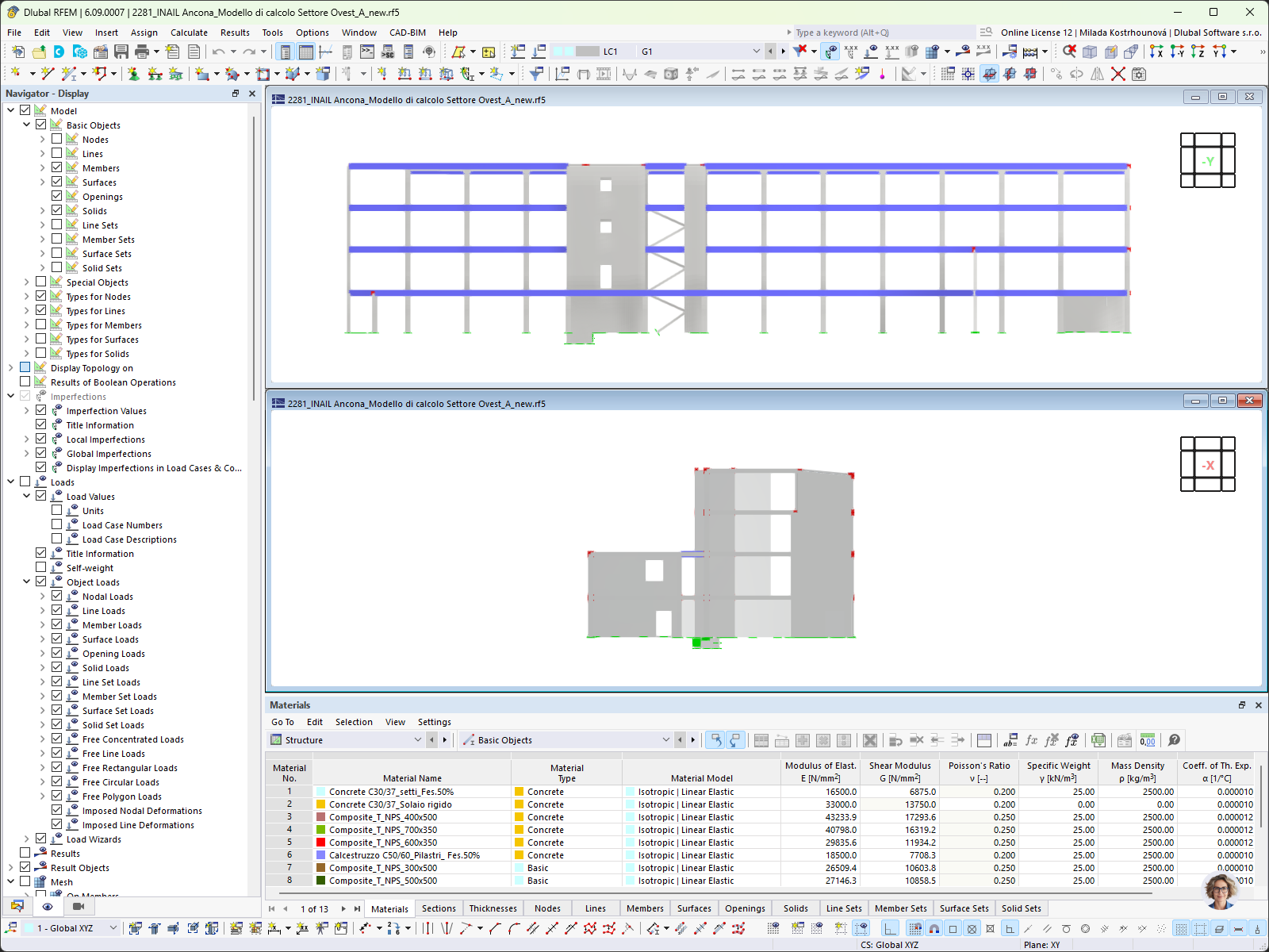
The building spans 6,600 sqm over four above-ground levels, housing a variety of functions such as hydrotherapy, health and rehabilitation spaces, and offices for the Territorial Directorate of Ancona and the Marche Regional Directorate. The building was developed entirely in Building Information Modeling (BIM) to ensure efficient construction timelines and performance requirements. Prefabricated prestressed reinforced concrete solutions were used to meet these objectives. Additionally, the building incorporates advanced technologies aimed at minimizing environmental impact, including improving the area’s hydrological permeability. Features like internal car parks and green roofs contribute to the project’s resilience against climate change, enhancing both the ecological and functional quality of the surrounding environment.

Location Via Curtatone, Ancona
Italy
Design and Structural Analysis
Investor


Project Specifications

Model Data

Number of Nodes 571
Number of Lines 976
Number of Members 613
Number of Surfaces 236
Number of Solids 0
Number of Load Cases 15
Number of Load Combinations 127
Number of Result Combinations 5
Total Weight 1953.721 tons
Dimensions (Metric) 71.050 x 16.176 x 23.935 m
Dimensions (Imperial) 233.1 x 53.07 x 78.53 feet

Do you have any questions?