Querschnittsprogramm DUENQ | Querschnittswerte dünnwandiger Profile, elastische und plastische Bemessung
Software de propiedades de secciones
Querschnittswerte-Programm DICKQ | Ergebnisse - Verlauf der Normalspannungen
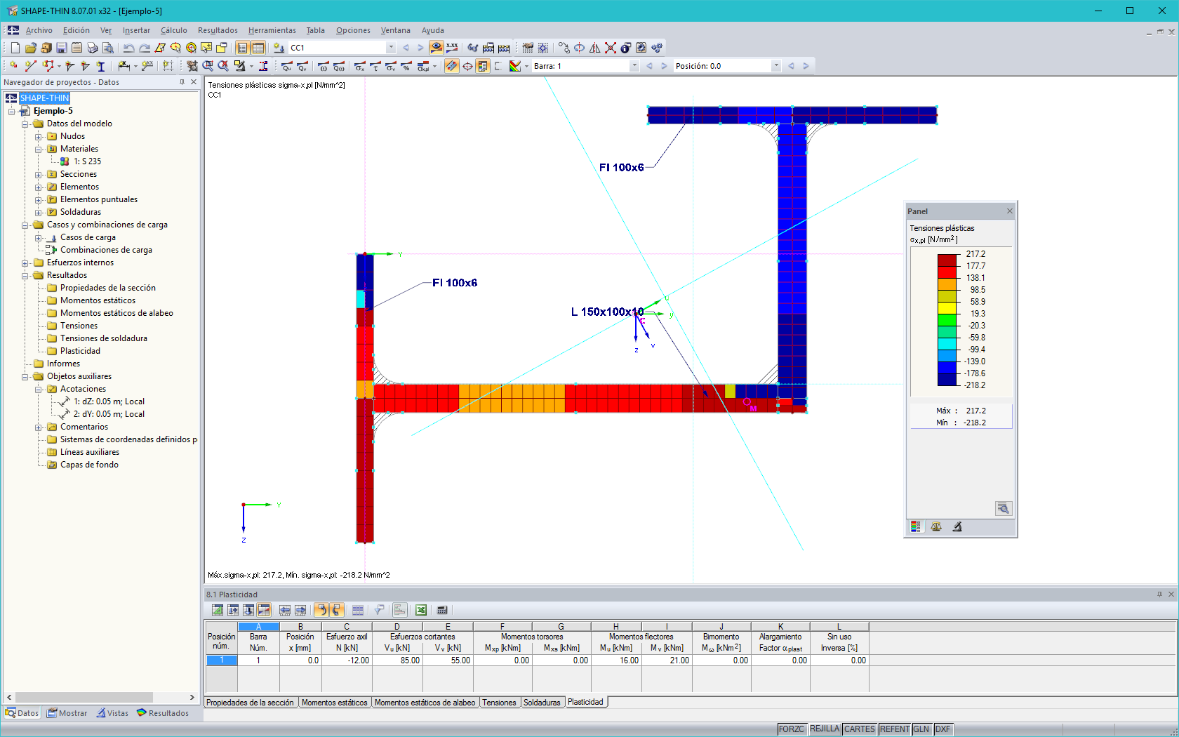
Programa de propiedades de la sección SHAPE-THIN | Resultados - Distribución de tensiones plásticas normales
Querschnittsprogramm DUENQ | Querschnittswerte dünnwandiger Profile, elastische und plastische Bemessung
Software de propiedades de secciones
Querschnittswerte-Programm DICKQ | Ergebnisse - Verlauf der Normalspannungen
Programa de propiedades de la sección SHAPE-THIN | Resultados - Distribución de tensiones plásticas normales
09-03-2024
002829

Querschnittsprogramm DUENQ | Querschnittswerte dünnwandiger Profile, elastische und plastische Bemessung

Usado en
  • SHAPE-THIN
Modelo en 3D
Más sobre el modelo 3D
  • Secciones de pared delgada
Compartir
09-03-2024
014832
Software de propiedades de secciones
Compartir
30-05-2024
006866
  • Estructuras de hormigón
  • Análisis de tensiones
  • Eurocode 2
Querschnittswerte-Programm DICKQ | Ergebnisse - Verlauf der Normalspannungen
Usado en
  • SHAPE-MASSIVE | Análisis de tensiones
Compartir
30-05-2024
000106
Programa de propiedades de la sección SHAPE-THIN | Resultados - Distribución de tensiones plásticas normales
Compartir