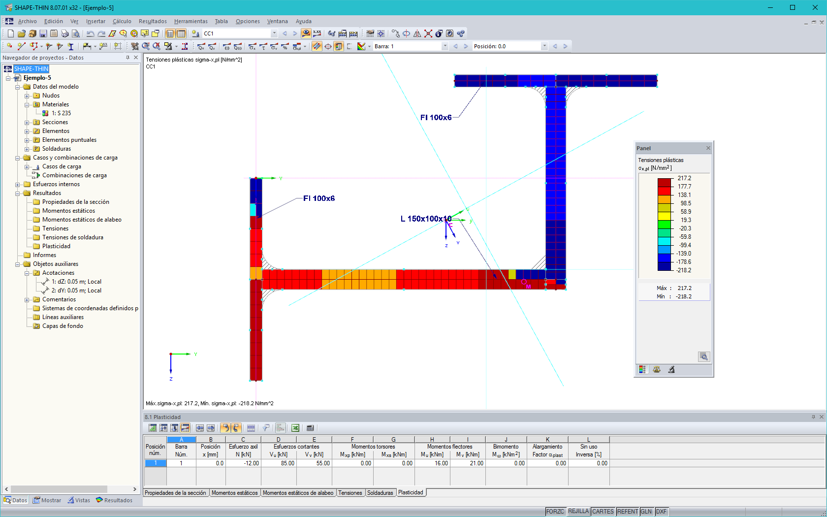
Querschnittswerte-Programm DUENQ | Ergebnisse - Verlauf der plastischen Normalspannungen
Querschnittswerte-Programm DUENQ | Ergebnisse - Verlauf der plastischen Normalspannungen
30-05-2024
006863
  • SHAPE-THIN 8
  • Estructuras de acero
  • AnĂ¡lisis de tensiones
    • Eurocode 3
    • Eurocode 9

Querschnittswerte-Programm DUENQ | Ergebnisse - Verlauf der plastischen Normalspannungen

Usado en
  • SHAPE-THIN | Resultados
Compartir