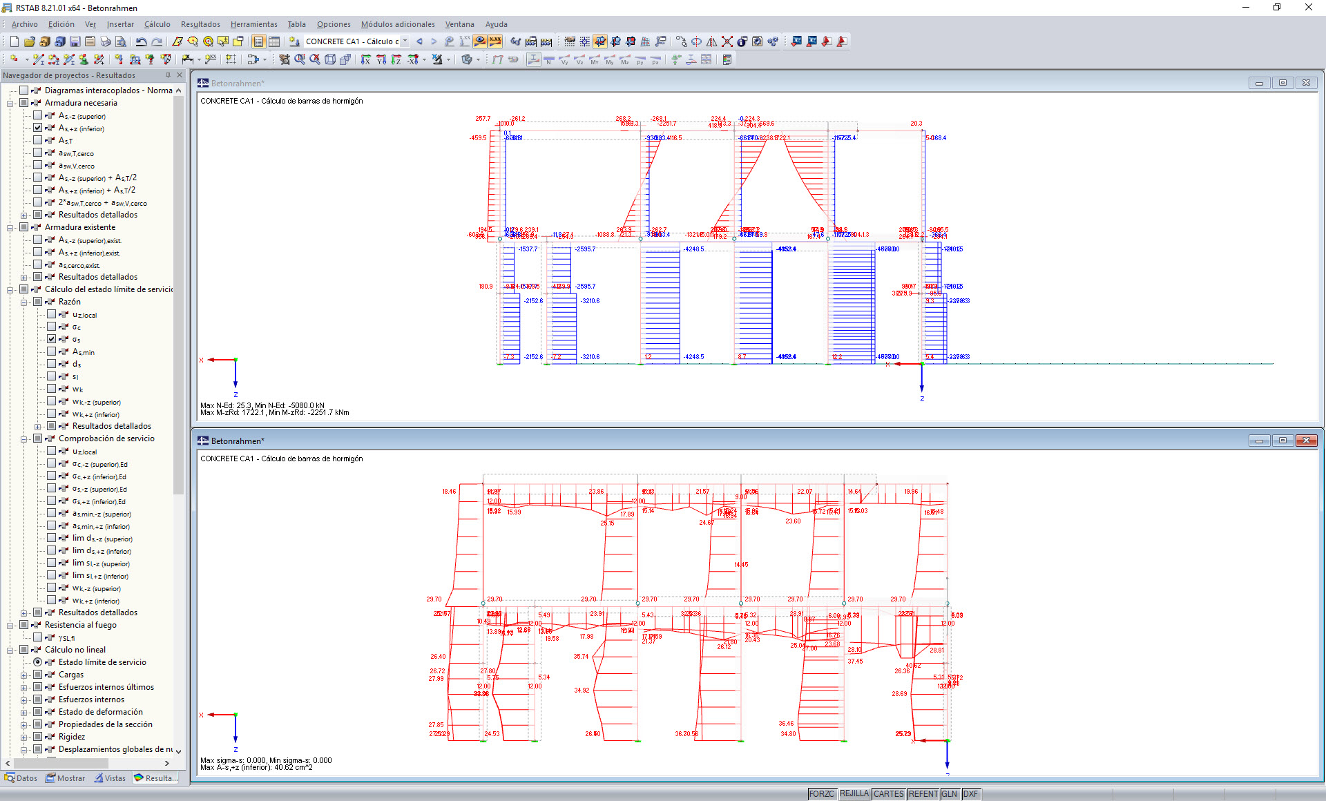
Representación de resultados
Representación de resultados
30-05-2024
007063
  • CONCRETE 8
  • Estructuras de hormigón
  • Eurocode 2

Representación de resultados

Usado en
  • CONCRETE | Resultados
Compartir