628x
000120
27-11-2015

CONCRETE | Resultados

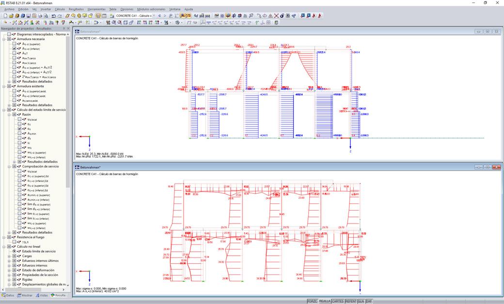
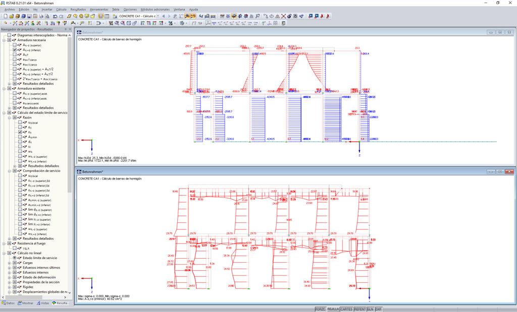
Después del cálculo, el módulo muestra tablas claramente ordenadas que enumeran la armadura necesaria y los resultados del cálculo del estado límite de servicio. Todos los valores intermedios se incluyen de manera comprensible. Además de las tablas, se representan gráficamente las tensiones y deformaciones actuales en una sección.

Las propuestas de armadura de la armadura longitudinal y de cortante, incluidos los bocetos, se documentan de acuerdo con la práctica actual. Es posible editar la propuesta de armadura y ajustar, por ejemplo, el número de barras y el anclaje. Las modificaciones se actualizarán automáticamente.

Una sección de hormigón, incluida la armadura, se puede visualizar en un renderizado en 3D. De esta manera, el programa proporciona una opción de documentación óptima para crear planos de armadura, incluida la lista de acero.

Los análisis de abertura de fisura se realizan utilizando la armadura seleccionada de los esfuerzos internos en el estado límite de servicio. La salida de resultados cubre las tensiones del acero, la armadura mínima, los diámetros límite y la separación máxima de barras, así como la separación de fisuras y los anchos máximos de fisura.

Como resultado del cálculo no lineal, existen los estados límite últimos de la sección con amradura definida (determinada elásticamente lineal), así como las deformaciones eficaces de la barra, considerando la rigidez en el estado fisurado.



;