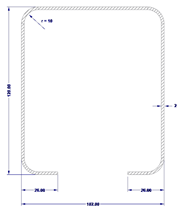
Sistema y carga (dimensiones en mm, fuerza en kN)
Außenabmessungen des Querschnitts in mm
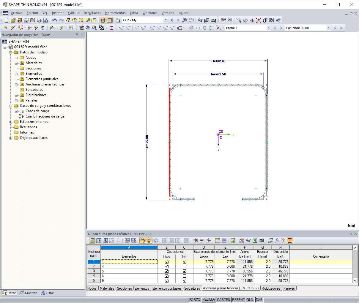
Anchuras planas teóricas en mm
Wirksame Randsteife
Determinación de la rigidez elástica
Wirksamer Steifenquerschnitt
Ermittlung der Federsteifigkeit
Basisangaben
Parámetros de cálculo
Tabla "1.7 Anchuras planas teóricas | EN 1993-1-3"
Tabla "1.8 Rigidizadores"
Tabla "1.9 Paneles"
Tabla "2.1 Casos de carga"
Tabla "3.1 Esfuerzos internos"
Propiedades de la sección eficaz
Basisangaben
Parameter des nationalen Anhangs
Detalles, pestaña "Conformación en frío"
Details, Register Stabilität
Figura 20 - Resultados
Sistema y carga (dimensiones en mm, fuerza en kN)
Außenabmessungen des Querschnitts in mm
Anchuras planas teóricas en mm
Wirksame Randsteife
Determinación de la rigidez elástica
Wirksamer Steifenquerschnitt
Ermittlung der Federsteifigkeit
Basisangaben
Parámetros de cálculo
Tabla "1.7 Anchuras planas teóricas | EN 1993-1-3"
Tabla "1.8 Rigidizadores"
Tabla "1.9 Paneles"
Tabla "2.1 Casos de carga"
Tabla "3.1 Esfuerzos internos"
Propiedades de la sección eficaz
Basisangaben
Parameter des nationalen Anhangs
Detalles, pestaña "Conformación en frío"
Details, Register Stabilität
Figura 20 - Resultados
30-05-2024
008649
  • SHAPE THIN 9
  • RFEM 5
  • RF-STEEL Cold-Formed Sections 5
    • RSTAB 8
    • STEEL Cold-Formed Sections 8
    • Estructuras de acero
    • Análisis y dimensionamiento de estructuras
    • Análisis de tensiones
    • Eurocode 3

Sistema y carga (dimensiones en mm, fuerza en kN)

Usado en
  • Cálculo de una sección en C de pared delgada conformada en frío según EN 1993-1-3
Compartir
30-05-2024
008650
  • SHAPE THIN 9
  • RFEM 5
  • RF-STEEL Cold-Formed Sections 5
    • RSTAB 8
    • STEEL Cold-Formed Sections 8
    • Estructuras de acero
    • Análisis y dimensionamiento de estructuras
    • Análisis de tensiones
    • Eurocode 3
Außenabmessungen des Querschnitts in mm
Usado en
  • Cálculo de una sección en C de pared delgada conformada en frío según EN 1993-1-3
Compartir
30-05-2024
008651
  • SHAPE THIN 9
  • RFEM 5
  • RF-STEEL Cold-Formed Sections 5
    • RSTAB 8
    • STEEL Cold-Formed Sections 8
    • Estructuras de acero
    • Análisis y dimensionamiento de estructuras
    • Análisis de tensiones
    • Eurocode 3
Anchuras planas teóricas en mm
Usado en
  • Cálculo de una sección en C de pared delgada conformada en frío según EN 1993-1-3
Compartir
30-05-2024
008652
  • SHAPE THIN 9
  • RFEM 5
  • RF-STEEL Cold-Formed Sections 5
    • RSTAB 8
    • STEEL Cold-Formed Sections 8
    • Estructuras de acero
    • Análisis y dimensionamiento de estructuras
    • Análisis de tensiones
    • Eurocode 3
Rigidez eficaz del borde
Wirksame Randsteife

Usado en
  • Cálculo de una sección en C de pared delgada conformada en frío según EN 1993-1-3
Compartir
30-05-2024
008653
  • SHAPE THIN 9
  • RFEM 5
  • RF-STEEL Cold-Formed Sections 5
    • RSTAB 8
    • STEEL Cold-Formed Sections 8
    • Estructuras de acero
    • Análisis y dimensionamiento de estructuras
    • Análisis de tensiones
    • Eurocode 3
Determinación de la rigidez elástica
Usado en
  • Cálculo de una sección en C de pared delgada conformada en frío según EN 1993-1-3
Compartir
30-05-2024
008654
  • SHAPE THIN 9
  • RFEM 5
  • RF-STEEL Cold-Formed Sections 5
    • RSTAB 8
    • STEEL Cold-Formed Sections 8
    • Estructuras de acero
    • Análisis y dimensionamiento de estructuras
    • Análisis de tensiones
    • Eurocode 3
Wirksamer Steifenquerschnitt
Usado en
  • Cálculo de una sección en C de pared delgada conformada en frío según EN 1993-1-3
Compartir
30-05-2024
008655
  • SHAPE THIN 9
  • RFEM 5
  • RF-STEEL Cold-Formed Sections 5
    • RSTAB 8
    • STEEL Cold-Formed Sections 8
    • Estructuras de acero
    • Análisis y dimensionamiento de estructuras
    • Análisis de tensiones
    • Eurocode 3
Ermittlung der Federsteifigkeit
Usado en
  • Cálculo de una sección en C de pared delgada conformada en frío según EN 1993-1-3
Compartir
30-05-2024
008656
  • SHAPE THIN 9
  • RFEM 5
  • RF-STEEL Cold-Formed Sections 5
    • RSTAB 8
    • STEEL Cold-Formed Sections 8
    • Estructuras de acero
    • Análisis y dimensionamiento de estructuras
    • Análisis de tensiones
    • Eurocode 3
datos generales
Basisangaben

Usado en
  • Cálculo de una sección en C de pared delgada conformada en frío según EN 1993-1-3
Compartir
30-05-2024
008657
  • SHAPE THIN 9
  • RFEM 5
  • RF-STEEL Cold-Formed Sections 5
    • RSTAB 8
    • STEEL Cold-Formed Sections 8
    • Estructuras de acero
    • Análisis y dimensionamiento de estructuras
    • Análisis de tensiones
    • Eurocode 3
Parámetros de cálculo
Usado en
  • Cálculo de una sección en C de pared delgada conformada en frío según EN 1993-1-3
Compartir
30-05-2024
013155
  • RFEM 5
  • RSTAB 8
Tabla "1.7 Anchuras planas teóricas | EN 1993-1-3"
Usado en
  • Cálculo de una sección en C de pared delgada conformada en frío según EN 1993-1-3
Compartir
30-05-2024
008658
  • SHAPE THIN 9
  • RFEM 5
  • RF-STEEL Cold-Formed Sections 5
    • RSTAB 8
    • STEEL Cold-Formed Sections 8
    • Estructuras de acero
    • Análisis y dimensionamiento de estructuras
    • Análisis de tensiones
    • Eurocode 3
Tabla "1.8 Rigidizadores"
Usado en
  • Cálculo de una sección en C de pared delgada conformada en frío según EN 1993-1-3
Modelo en 3D
Más sobre el modelo 3D
  • Sección en C
Compartir
30-05-2024
008659
  • SHAPE THIN 9
  • RFEM 5
  • RF-STEEL Cold-Formed Sections 5
    • RSTAB 8
    • STEEL Cold-Formed Sections 8
    • Estructuras de acero
    • Análisis y dimensionamiento de estructuras
    • Análisis de tensiones
    • Eurocode 3
Tabla "1.9 Paneles"
Usado en
  • Cálculo de una sección en C de pared delgada conformada en frío según EN 1993-1-3
Modelo en 3D
Más sobre el modelo 3D
  • Sección en C
Compartir
30-05-2024
008660
  • SHAPE THIN 9
  • RFEM 5
  • RF-STEEL Cold-Formed Sections 5
    • RSTAB 8
    • STEEL Cold-Formed Sections 8
    • Estructuras de acero
    • Análisis y dimensionamiento de estructuras
    • Análisis de tensiones
    • Eurocode 3
Tabla "2.1 Casos de carga"
Usado en
  • Cálculo de una sección en C de pared delgada conformada en frío según EN 1993-1-3
Modelo en 3D
Más sobre el modelo 3D
  • Sección en C
Compartir
30-05-2024
008661
  • SHAPE THIN 9
  • RFEM 5
  • RF-STEEL Cold-Formed Sections 5
    • RSTAB 8
    • STEEL Cold-Formed Sections 8
    • Estructuras de acero
    • Análisis y dimensionamiento de estructuras
    • Análisis de tensiones
    • Eurocode 3
Tabla "3.1 Esfuerzos internos"
Usado en
  • Cálculo de una sección en C de pared delgada conformada en frío según EN 1993-1-3
Modelo en 3D
Más sobre el modelo 3D
  • Sección en C
Compartir
30-05-2024
008662
  • SHAPE THIN 9
  • RFEM 5
  • RF-STEEL Cold-Formed Sections 5
    • RSTAB 8
    • STEEL Cold-Formed Sections 8
    • Estructuras de acero
    • Análisis y dimensionamiento de estructuras
    • Análisis de tensiones
    • Eurocode 3
Propiedades de la sección eficaz
Usado en
  • Cálculo de una sección en C de pared delgada conformada en frío según EN 1993-1-3
Modelo en 3D
Más sobre el modelo 3D
  • Sección en C
Compartir
30-05-2024
008663
  • SHAPE THIN 9
  • RFEM 5
  • RF-STEEL Cold-Formed Sections 5
    • RSTAB 8
    • STEEL Cold-Formed Sections 8
    • Estructuras de acero
    • Análisis y dimensionamiento de estructuras
    • Análisis de tensiones
    • Eurocode 3
datos generales
Basisangaben

Usado en
  • Cálculo de una sección en C de pared delgada conformada en frío según EN 1993-1-3
Compartir
30-05-2024
008664
  • SHAPE THIN 9
  • RFEM 5
  • RF-STEEL Cold-Formed Sections 5
    • RSTAB 8
    • STEEL Cold-Formed Sections 8
    • Estructuras de acero
    • Análisis y dimensionamiento de estructuras
    • Análisis de tensiones
    • Eurocode 3
Parameter des nationalen Anhangs
Usado en
  • Cálculo de una sección en C de pared delgada conformada en frío según EN 1993-1-3
Compartir
30-05-2024
008665
  • SHAPE THIN 9
  • RFEM 5
  • RF-STEEL Cold-Formed Sections 5
    • RSTAB 8
    • STEEL Cold-Formed Sections 8
    • Estructuras de acero
    • Análisis y dimensionamiento de estructuras
    • Análisis de tensiones
    • Eurocode 3
Detalles, pestaña "Conformación en frío"
Usado en
  • Cálculo de una sección en C de pared delgada conformada en frío según EN 1993-1-3
Compartir
30-05-2024
008666
  • SHAPE THIN 9
  • RFEM 5
  • RF-STEEL Cold-Formed Sections 5
    • RSTAB 8
    • STEEL Cold-Formed Sections 8
    • Estructuras de acero
    • Análisis y dimensionamiento de estructuras
    • Análisis de tensiones
    • Eurocode 3
Detalles, pestaña "Estabilidad"
Details, Register Stabilität

Usado en
  • Cálculo de una sección en C de pared delgada conformada en frío según EN 1993-1-3
Compartir
30-05-2024
008667
  • SHAPE THIN 9
  • RFEM 5
  • RF-STEEL Cold-Formed Sections 5
    • RSTAB 8
    • STEEL Cold-Formed Sections 8
    • Estructuras de acero
    • Análisis y dimensionamiento de estructuras
    • Análisis de tensiones
    • Eurocode 3
Figura 20 - Resultados
Usado en
  • Cálculo de una sección en C de pared delgada conformada en frío según EN 1993-1-3
Compartir