Sección
distribución de tensiones
Sección bruta de la barra de compresión equivalente
Sección bruta y eficaz debido al pandeo lateral
Barra de compresión equivalente y rigidizador: Distancias e1, e2
Sección eficaz debido al pandeo local y global
Parámetros de cálculo
Partes de la sección para la clasificación
rigidizadores
Chapas
Ergebnisse
Sección
distribución de tensiones
Sección bruta de la barra de compresión equivalente
Sección bruta y eficaz debido al pandeo lateral
Barra de compresión equivalente y rigidizador: Distancias e1, e2
Sección eficaz debido al pandeo local y global
Parámetros de cálculo
Partes de la sección para la clasificación
rigidizadores
Chapas
Ergebnisse
30-05-2024
009113
  • SHAPE-THIN 8
  • Estructuras de acero
  • Análisis de tensiones
    • Análisis de estabilidad
    • Eurocode 3

Sección

Usado en
  • Elementos de placa rigidizados frente a la abolladura según EN 1993-1-5, sección 4.5
Compartir
30-05-2024
009114
  • SHAPE-THIN 8
  • Estructuras de acero
  • Análisis de tensiones
    • Análisis de estabilidad
    • Eurocode 3
distribución de tensiones
Usado en
  • Elementos de placa rigidizados frente a la abolladura según EN 1993-1-5, sección 4.5
Compartir
30-05-2024
009115
  • SHAPE-THIN 8
  • Estructuras de acero
  • Análisis de tensiones
    • Análisis de estabilidad
    • Eurocode 3
Sección bruta de la barra de compresión equivalente
Usado en
  • Elementos de placa rigidizados frente a la abolladura según EN 1993-1-5, sección 4.5
Compartir
30-05-2024
009116
  • SHAPE-THIN 8
  • Estructuras de acero
  • Análisis de tensiones
    • Análisis de estabilidad
    • Eurocode 3
Sección bruta y eficaz debido al pandeo lateral
Usado en
  • Elementos de placa rigidizados frente a la abolladura según EN 1993-1-5, sección 4.5
Compartir
30-05-2024
009117
  • SHAPE-THIN 8
  • Estructuras de acero
  • Análisis de tensiones
    • Análisis de estabilidad
    • Eurocode 3
Barra de compresión equivalente y rigidizador: Distancias e1, e2
Usado en
  • Elementos de placa rigidizados frente a la abolladura según EN 1993-1-5, sección 4.5
Compartir
30-05-2024
009118
  • SHAPE-THIN 8
  • Estructuras de acero
  • Análisis de tensiones
    • Análisis de estabilidad
    • Eurocode 3
Sección eficaz debido al pandeo local y global
Usado en
  • Elementos de placa rigidizados frente a la abolladura según EN 1993-1-5, sección 4.5
Compartir
30-05-2024
009119
  • SHAPE-THIN 8
  • Estructuras de acero
  • Análisis de tensiones
    • Análisis de estabilidad
    • Eurocode 3
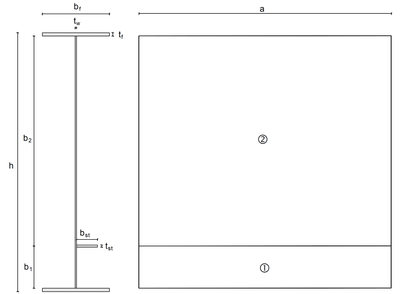
Parámetros de cálculo
Usado en
  • Elementos de placa rigidizados frente a la abolladura según EN 1993-1-5, sección 4.5
Compartir
30-05-2024
009120
  • SHAPE-THIN 8
  • Estructuras de acero
  • Análisis de tensiones
    • Análisis de estabilidad
    • Eurocode 3
Partes de la sección para la clasificación
Usado en
  • Elementos de placa rigidizados frente a la abolladura según EN 1993-1-5, sección 4.5
Compartir
30-05-2024
009121
  • SHAPE-THIN 8
  • Estructuras de acero
  • Análisis de tensiones
    • Análisis de estabilidad
    • Eurocode 3
rigidizadores
Usado en
  • Elementos de placa rigidizados frente a la abolladura según EN 1993-1-5, sección 4.5
Compartir
30-05-2024
009122
  • SHAPE-THIN 8
  • Estructuras de acero
  • Análisis de tensiones
    • Análisis de estabilidad
    • Eurocode 3
Chapas
Usado en
  • Elementos de placa rigidizados frente a la abolladura según EN 1993-1-5, sección 4.5
Compartir
30-05-2024
009123
  • SHAPE-THIN 8
  • Estructuras de acero
  • Análisis de tensiones
    • Análisis de estabilidad
    • Eurocode 3
Ergebnisse
Usado en
  • Elementos de placa rigidizados frente a la abolladura según EN 1993-1-5, sección 4.5
Compartir