9471x
001536
12-09-2018

Elementos de placa rigidizados frente a la abolladura según EN 1993-1-5, sección 4.5

En SHAPE-THIN, el cálculo de los paneles rigidizados frente a la abolladura se puede realizar según el apartado 4.5 de EN 1993-1-5. Para los paneles de pandeo rigidizados, se deben considerar las superficies eficaces debidas al pandeo local de los paneles individuales en la placa y en los rigidizadores, así como las superficies eficaces de todo el pandeo del panel rigidizado.

En primer lugar, las superficies eficaces de los paneles individuales se determinan utilizando el coeficiente de reducción según EN 1993-1-5 [1] , sección 4.4 para tener en cuenta el pandeo de los paneles individuales. En el segundo paso, se determina la seguridad de pandeo de todo el panel teniendo en cuenta un comportamiento de pandeo similar a una de las barras de pandeo. Con el coeficiente de reducción de todo el pandeo del panel, se reducen de nuevo los anchos eficaces de los paneles individuales. Esto da como resultado una sección eficaz que se puede tratar como perteneciente a la clase de sección 3.

Ejemplo

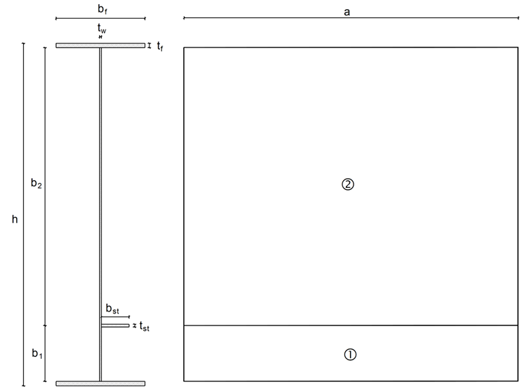
El siguiente ejemplo está tomado del anuario de estructuras de acero de 2015 [2]. La sección consta de una viga en I cuyo alma está rigidizada por rigidizadores transversales rígidos y un rigidizador longitudinal. Los rigidizadores transversales están dispuestos a una distancia de 3.000 mm entre sí y el rigidizador longitudinal está soldado a una distancia de 500 mm del ala inferior. Se ignoran las soldaduras. Actúa un esfuerzo axil de compresión de NEd = 4.000 kN.

Material:
S355 J0
fy = 35,5 kN/cm² (para t ≤ 3 mm y t ≤ 16 mm)
fy = 34,5 kN/cm² (para t >16 mm y t ≤ 40 mm)
E = 21,000 kN/cm²
G = 8 076,92 kN/cm²
γM0 = 1,0

a = 3 000 mm
b1 = 500 mm
b2= 2.500 mm
bf = 800 mm
bst = 250 mm
tw = 15 mm
tf = 40 mm
tst = 25 mm
h = 3 080 mm

Sección bruta y distribución de tensiones

La tensión se calcula de la siguiente forma:

La sección bruta y la distribución de tensiones se muestran en la figura 02.

Clasificación de las secciones

Durante una clasificación de la sección, se realiza una evaluación para determinar si es necesario un cálculo de pandeo para los paneles individuales. Si el panel individual es al menos de clase de sección 3, el pandeo local no es determinante.

Ala

La relación c/t máxima λi se determina según EN 1993-1-1 [3] , tabla 5.2.

Se debe asignar el ala a la clase de sección 3. Por lo tanto, el pandeo local no es determinante y no es necesaria la reducción de los paneles individuales del ala.

Alma

La relación c/t máximaλi se determina según [3] , tabla 5.2.

Se debe asignar el panel individual 1 a la clase de sección 3. Por lo tanto, el pandeo local no es determinante y no es necesaria la reducción de los paneles individuales del ala.

La relación c/t máximaλi se determina según [3] , tabla 5.2.

Se debe asignar el panel individual 2 a la clase de sección 4. Por lo tanto, el pandeo local es determinante para este panel único y es necesaria una reducción de este panel único.

Rigidizador

La relación c/t máximaλi se determina según [3] , tabla 5.2.

Se debe asignar el alma a la clase de sección 3. Por lo tanto, el pandeo local no es determinante y no es necesaria ninguna reducción de este panel individual.

Anchuras eficaces

El panel individual 1 se asigna a la clase de sección 3, por lo que el pandeo local no es determinante. Los valores eficaces de la sección se corresponden con los valores de la sección bruta. Según [1] , tabla 4.1, esto da como resultado las siguientes anchuras eficaces:

El panel individual 2 se asigna a la clase de sección 4, por lo que el pandeo local no es determinante. Las anchuras eficaces del panel individual 2 se tienen que determinar según [1], sección 4.4.

La distribución de tensiones del panel individual 2 es uniforme. Esto da como resultado una relación de tensiones de ψ = 1 y, según la tabla 4.1, en un valor de pandeo de kσ = 4.0. Según [1] , sección 4.4(2), el resultado para la relación de esbeltez λp2 es:

 

El coeficiente de reducción ρ se determina según [1], ecuación (4.2):

Las anchuras eficaces del panel individual 2, teniendo en cuenta el pandeo local, se calculan según [1] , Tabla 4.1:

Las anchuras de la sección bruta dan como resultado:

Comportamiento similar a losa

La tensión de pandeo crítica elástica de la rigidez σcr,sl se calcula según [1] , anexo A.2.2. Primero se debe calcular la longitud eficaz de la rigidez ac :

La tensión crítica elástica de pandeo de la rigidez σcr,sl da como resultado a < ac en:

Isl,1 y Asl,1 representan aquí el segundo momento de inercia de la sección bruta y el área de la sección bruta de la barra de compresión equivalente según [1] ; A.2.1(2) para pandeo perpendicular al plano de la placa, así como b1 y b2, describen las distancias de los rigidizadores a los bordes longitudinales (b1 + b2 = b).

La distribución de tensiones es uniforme. Por lo tanto, la tensión de pandeo elásticaσcr,p corresponde a la tensión de pandeo críticaσcr,sl.

El área de la sección brutaAc del panel de chapa rigidizado longitudinalmente se calcula como a continuación, sin tener en cuenta las chapas de borde apoyadas por un componente de chapa adyacente y el área de la sección eficazAc,eff,loc,p del área descrito anteriormente:

La rigidez pertenece a la clase de sección 3, por lo que el área de la sección eficaz de la rigidez corresponde al área de la sección bruta de la rigidez.

Los valores de la sección se muestran en la figura 04.

El coeficiente de reducción βa,c,p se calcula según [1] , sección 4.5.2 como sigue:

La esbeltez global λp de la placa rigidizada según [1] , ecuación (4.7), da como resultado:

 

Según [1] , 4.4(2), la relación de esbeltezλp es menor que el valor límite 0,673. Por lo tanto, no es necesaria ninguna reducción debida al comportamiento de la losa; por ejemplo, ρp = 1,0.

Comportamiento del pandeo de la placa

La tensión crítica de pandeo elástica σcr,c se determina según [1] , sección 4.5.3(3). En primer lugar, se determina la tensión de pandeo σcr,c,sl del rigidizador, que se coloca en el borde de compresión con carga máxima, según [1] , ecuación (4.9).

La distribución de tensiones es uniforme. Por lo tanto, la tensión de pandeo crítica elástica σcr,c corresponde a la tensión de pandeo elástica σcr,c,sl del rigidizador, que está posicionado en el borde de compresión con carga máxima.

σcr,c = σcr,c,sl = 94,7 kN/cm²

El coeficiente de reducción βa,c,c se calcula según [1] , sección 4.5.3(4) como sigue:

La relación de esbeltez λcde los resultados de la barra comprimida equivalente, según [1] , ecuación (4.11), en:

Según la sección 4.5.3(5) de [1], el radio de giro se calcula como a continuación:

La distancia e es la mayor de las dos distancias según [1] , figura A.1; por ejemplo, o bien la distancia e1 del rigidizador individual, ajustado entre el centro de gravedad y considerado independientemente de la placa, sin la anchura eficaz al eje del centro de gravedad del panel de la placa rigidizada, o la distancia e2 del eje del centro de gravedad de la placa rigidizada panel al plano medio de la placa. Las distancias se muestran en la figura 05.

e = max (e1, e2) = max (10,39 cm, 2,86 cm) = 10,39 cm

El coeficiente de imperfección αe se determina según [1] , ecuación (4.12) con α = 0.49, para secciones abiertas de rigidizadores como sigue:

El coeficiente de reducción χc se determina según [3], 6.3.1.2:

Interacción entre el pandeo de la placa y el comportamiento de la losa

El comportamiento estructural del panel entero se determina con el factor ξ, según[1], sección 4.5.4(1):

El factor de reducción final ρc se determina con la ecuación de interacción según [1] , ecuación (4.13):

Propiedades de la sección eficaz

La superficie eficaz de la zona de compresión Ac,eff de la placa del panel rigidizado se calcula según [1], ecuación (4.5):

El área de la sección eficaz Aeff da como resultado:

Cálculo del panel rigidizado

Los ejes del centro de gravedad de la sección bruta y de la sección eficaz no coinciden, por lo que actúan momentos flectores adicionales debido al desplazamiento del eje del centro de gravedad de la sección eficaz con respecto al eje del centro de gravedad de la sección bruta tienen que ser considerados aquí. Estos momentos de flexión adicionales se calculan como a continuación:

La tensión máxima da como resultado:

Se realiza el cálculo según [1], ecuación (4.15) como a continuación:

Cálculo del pandeo torsional

Según [1] , sección 9.2.1(8), se debe cumplir el siguiente criterio en general para evitar el pandeo torsional de rigidizadores con secciones abiertas:

Ip e ISt.Ven describen el momento polar de inercia y el momento de inercia de St. Venant de la sección de rigidez solo (sin placa), calculados alrededor del punto de conexión con la placa.

Si se considera la rigidez de alabeo, primero se debe determinar la tensión crítica de pandeo torsional σcr. Se calcula según la ecuación (2.119) y (2.120) de [4], como a continuación:

La rigidez tiene una constante de alabeo de = 0 cm6. Por lo tanto, la tensión crítica de pandeo torsional σcr se simplifica a:

Ip e ISt.Ven describen el momento polar de inercia y el momento de inercia de St. Venant de la sección de rigidez solo (sin placa), calculados alrededor del punto de conexión con la placa.

Según [1], sección 9.2.1(9), se debe considerar generalmente el criterio en 9.2.1(8) o el siguiente criterio cuando se tiene en cuenta la rigidez de alabeo:

Con un factor para asegurar el comportamiento elástico según la clase de sección 3 según [5] de θ = 2 para rigidizadores con baja rigidez al alabeo (por ejemplo, barra plana o acero plano con bulbo), el resultado es:

Por lo tanto, se ha cumplido el cálculo del pandeo torsional.

SHAPE-THIN

En SHAPE-THIN, el cálculo de los paneles rigidizados frente a la abolladura se puede realizar según [1] , sección 4.5. El panel de control "Partes c/t y propiedades de la sección eficaz" se debe activar en los datos generales. Posteriormente, se debe seleccionar "EN 1993-1-1 y EN 1993-1-5" en los parámetros de cálculo; también se debe seleccionar el panel de control titulado "Sección eficaz según EN 1993-1-5, apartado 4.5". La determinación de las anchuras eficaces se debe llevar a cabo en un proceso interactivo según [1], sección 4.4(3). En este ejemplo, solo se debe usar una iteración para el cálculo para que también aparezca una sola iteración en SHAPE-THIN (ver figura 07).

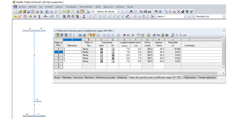
Primero se deben introducir los elementos de la sección. Las partes c/t generalmente se generan automáticamente a partir de las condiciones geométricas; sin embargo, se pueden crear como definidos por el usuario en la tabla "1.7 Partes de la sección para la clasificación según EN 1993-1" (ver figura 08) o en el cuadro de diálogo correspondiente.

Los rigidizadores se pueden definir en la tabla "1.8 Rigidizadores" o en el cuadro de diálogo correspondiente (ver figura 09).

Además, se deben especificar los paneles rigidizados en la tabla "1.9 Paneles rigidizados" (ver figura 10) en el cuadro de diálogo correspondiente. Se deben seleccionar los elementos del panel rigidizado y se debe introducir la distancia transversal al rigidizador. Si no se define la distancia del rigidizador transversal, se aplicará el valor a = 10.000 mm para el cálculo. Los rigidizadores ubicados en el panel rigidizado se identifican automáticamente. El panel rigidizado tiene que estar apoyado en su inicio y final, lo que significa que aquí se necesita un apoyo.

Los resultados de la sección eficaz se pueden observar con el botón "Anchuras eficaces".


Autor

Sonja trabaja en Product Engineering y además presta apoyo en Customer Support. Su enfoque se centra en RSECTION, así como en la construcción en acero y aluminio, donde aporta sus conocimientos de forma específica.

Enlaces
Referencias
Descargas


;