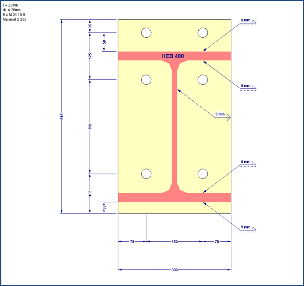
Ejemplo de cálculo
Parámetros para longitudes eficaces (fuente: [1])
Determinación del valor α (fuente: [1])
Tragfähigkeiten der Schraubenreihen und zugehörige Hebelarme
Estado límite último en RF-/FRAME-JOINT Pro
Ejemplo de cálculo
Parámetros para longitudes eficaces (fuente: [1])
Determinación del valor α (fuente: [1])
Tragfähigkeiten der Schraubenreihen und zugehörige Hebelarme
Estado límite último en RF-/FRAME-JOINT Pro
30-05-2024
009326
  • RFEM 5
  • RSTAB 8
  • RF-FRAME-JOINT Pro 5
    • FRAME-JOINT Pro 8
    • Estructuras de acero
    • Conexiones de acero
    • Eurocode 3

Ejemplo de cálculo

Usado en
  • Ejemplo de cálculo de la conexión rígida de la chapa frontal según EN 1993-1-8
Compartir
30-05-2024
009327
  • RFEM 5
  • RSTAB 8
  • RF-FRAME-JOINT Pro 5
    • FRAME-JOINT Pro 8
    • Estructuras de acero
    • Conexiones de acero
    • Eurocode 3
Parámetros para longitudes eficaces (fuente: [1])
Usado en
  • Ejemplo de cálculo de la conexión rígida de la chapa frontal según EN 1993-1-8
Compartir
30-05-2024
009328
  • RFEM 5
  • RSTAB 8
  • RF-FRAME-JOINT Pro 5
    • FRAME-JOINT Pro 8
    • Estructuras de acero
    • Conexiones de acero
    • Eurocode 3
Determinación del valor α (fuente: [1])
Usado en
  • Ejemplo de cálculo de la conexión rígida de la chapa frontal según EN 1993-1-8
Compartir
30-05-2024
009329
  • RFEM 5
  • RSTAB 8
  • RF-FRAME-JOINT Pro 5
    • FRAME-JOINT Pro 8
    • Estructuras de acero
    • Conexiones de acero
    • Eurocode 3
Tragfähigkeiten der Schraubenreihen und zugehörige Hebelarme
Usado en
  • Ejemplo de cálculo de la conexión rígida de la chapa frontal según EN 1993-1-8
Compartir
30-05-2024
009330
  • RFEM 5
  • RSTAB 8
  • RF-FRAME-JOINT Pro 5
    • FRAME-JOINT Pro 8
    • Estructuras de acero
    • Conexiones de acero
    • Eurocode 3
Estado límite último en RF-/FRAME-JOINT Pro
Usado en
  • Ejemplo de cálculo de la conexión rígida de la chapa frontal según EN 1993-1-8
Compartir