21439x
001497
12-12-2017

Ejemplo de cálculo de la conexión rígida de la chapa frontal según EN 1993-1-8

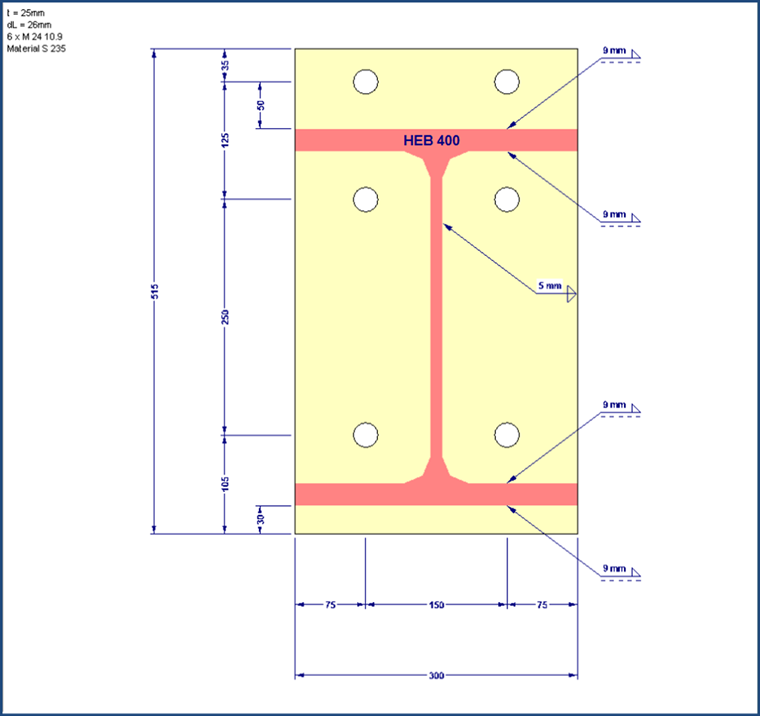
En este ejemplo, se va a determinar la resistencia de cálculo de una chapa frontal según EN 1993-1-8 [1]; los otros componentes no se describen aquí. Para comprobar los resultados, se han usado las dimensiones de la conexión IH 3.1 B 30 24 de las conexiones tipificadas [2]. Als Material wird S 235 verwendet und Schrauben mit der Festigkeit 10.9.

Determinación de longitudes efectivas

En primer lugar, es necesario determinar las longitudes efectivas de las bridas de conexión de acuerdo con la Tabla 6.6. La fila inferior de tornillos apenas tiene efecto sobre la brida de compresión debido al pequeño brazo de palanca y, por lo tanto, se descuida. Dado que las dos filas de tornillos superiores están divididas por el ala de tracción de la viga, las filas de tornillos solo se deben considerar por separado. Por lo tanto, puede evitar el fallo de grupo de las filas de tornillos. El cálculo de las longitudes efectivas requiere los parámetros e, m, ex, mx , m2 , bp , w.

Para este ejemplo, se han calculado los siguientes valores:

En el caso de las longitudes efectivas, se hace una distinción entre patrones de líneas de fluencia circulares y no circulares. El patrón de la línea de rendimiento lineal requiere el valor α de la figura 6.11. Los valores de entrada para esto se basan en la relación de los brazos de palanca con el alma de la viga (λ1 ) o con el ala de la viga (λ2 ) con el ancho total del ala del muñón en T. Los valores de α entre dos diagramas en la figura 6.11 se pueden interpolar linealmente.

Usando estos valores de entrada, las longitudes efectivas se determinan de acuerdo con la Tabla 6.6 como sigue.

Patrón de línea de fluencia circular para la fila de tornillos exterior:

Patrón de línea de fluencia circular para la fila de tornillos interior:
leff, cp, i = 2 ∙ π ∙ 62,6 = 393,3 mm

Patrón de línea de fluencia no circular para la fila de tornillos exterior:

Patrón de línea de fluencia no circular para la fila de tornillos interior:
leff, nc, i = 6,65 ∙ 62,6 = 416,3 mm

Para determinar la resistencia de cálculo en el modo de falla 1, es decir, con fluencia pura del ala, se usa la longitud más corta de ambos patrones de línea de fluencia. Cuando se determina la resistencia de cálculo en el modo de falla 2, es decir, la falla del perno con fluencia simultánea del ala, el patrón de línea de fluencia no circular solo puede ocurrir.

Esto da como resultado las siguientes longitudes efectivas.

Fila de tornillos exteriores:
lef, 1, a = 150 mm
lef, 2, a = 150 mm

Fila de tornillos internos:
leff1, i = 393,3 mm
leff2, i = 416,3 mm

Compruebe si pueden desarrollarse fuerzas de palanca

Antes de que se determine la resistencia de cálculo de la placa de extremo en el modo de falla 1, se debe verificar si se pueden desarrollar fuerzas de palanca. Dado que esto le permite lograr valores de resistencia de cálculo más altos, las dimensiones y el grosor del paquete de agarre siempre deben elegirse o cambiarse de manera que se cumpla la ecuación Lb <Lb *. Lb es la longitud de alargamiento del perno, tomada igual a la longitud de agarre (espesor total del material y arandelas), más la mitad de la suma de la altura de la cabeza del perno y la altura de la tuerca.

La longitud de agarre, asumiendo que se aplica una unión de viga simétrica, da como resultado:
Lb = 2 ∙ 25 + 2 ∙ 4 + 0.5 ∙ 19 + 0.5 ∙ 15 = 75 mm

Lb * debe determinarse por separado para las filas de tornillos exterior e interior.

Fila de tornillos exteriores:

Fila de tornillos internos:

Por lo tanto, se pueden desarrollar fuerzas de palanca en ambas filas de tornillos.

Resistencia de cálculo de las bridas en forma de T

Para el modo de falla de "fluencia completa de la brida", se utiliza en este ejemplo el método 1 de EN 1993-1-8. La resistencia a la tracción de ambas bridas en T se determina de la siguiente manera.

Modo de falla "Fallo del perno con cedencia de la brida":

Control de la resistencia de cálculo de las bridas en forma de T

El modo de falla 2 gobierna para ambas filas de pernos.

Fila de tornillos exteriores: 385,12 kN

Fila de tornillos internos: 499,24 kN

Momento de resistencia de la articulación

Los valores de resistencia de cálculo calculados de las filas de tornillos individuales ahora solo tienen que multiplicarse por el brazo de palanca respectivo hasta el punto de compresión.

Los brazos de palanca son
438 mm para la fila de tornillos exterior,
313 mm para la fila de tornillos interior.

Por lo tanto, la resistencia al momento de cálculo de la junta da como resultado
MRd = 385,12 ∙ 0,438 + 499,24 ∙ 0,313 = 324,95 kNm.

Comparación de resultados

Si esta unión se calcula como una unión de pórtico rígido en RF-/FRAME-JOINT Pro, la resistencia de cálculo resultante de la placa final es de 319,79 kNm. Según Typified Connections [2] , la resistencia de cálculo es de 331,3 kNm, lo que corresponde con relativa precisión al cálculo manual.


Autor

El Sr. Fröhlich proporciona soporte técnico a nuestros clientes y es responsable del desarrollo en el área de estructuras de hormigón armado.

Enlaces
Referencias
Descargas


;