Espesor de la soldadura en ángulo a para una penetración normal (a) y profunda (b)
Tensiones de soldadura en la sección eficaz de soldadura en ángulo
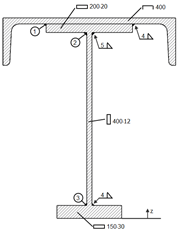
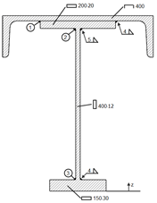
Viga
Tabla 1.6 Soldaduras
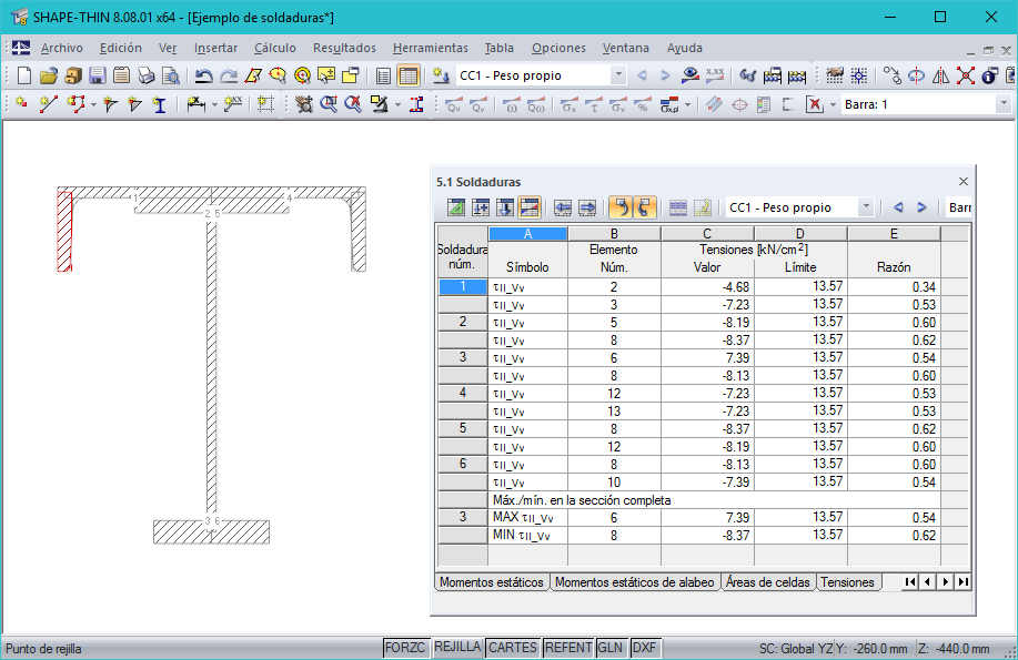
Tabla 5.1 Tensiones de soldadura
Espesor de la soldadura en ángulo a para una penetración normal (a) y profunda (b)
Tensiones de soldadura en la sección eficaz de soldadura en ángulo
Viga
Tabla 1.6 Soldaduras
Tabla 5.1 Tensiones de soldadura
30-05-2024
009450
  • SHAPE-THIN 8
  • Estructuras de acero
  • Conexiones de acero
    • Eurocode 3

Espesor de la soldadura en ángulo a para diferentes penetraciones. Espesor de la soldadura en ángulo a para penetración normal b Espesor de la soldadura en ángulo para penetración profunda

Espesor de la soldadura en ángulo a para una penetración normal (a) y profunda (b)

Usado en
  • Diseño de soldaduras en ángulo según UNE-EN 1993-1-8
Compartir
30-05-2024
009451
  • SHAPE-THIN 8
  • Estructuras de acero
  • Conexiones de acero
    • Eurocode 3
Tensiones de soldadura en la sección eficaz de soldadura en ángulo
Usado en
  • Diseño de soldaduras en ángulo según UNE-EN 1993-1-8
Compartir
30-05-2024
009452
  • SHAPE-THIN 8
  • Estructuras de acero
  • Conexiones de acero
    • Eurocode 3
Viga
Usado en
  • Diseño de soldaduras en ángulo según UNE-EN 1993-1-8
Compartir
30-05-2024
009453
  • SHAPE-THIN 8
  • Estructuras de acero
  • Conexiones de acero
    • Eurocode 3
Tabla 1.6 Soldaduras
Usado en
  • Diseño de soldaduras en ángulo según UNE-EN 1993-1-8
Compartir
30-05-2024
009454
  • SHAPE-THIN 8
  • Estructuras de acero
  • Conexiones de acero
    • Eurocode 3
Tabla 5.1 Tensiones de soldadura
Usado en
  • Diseño de soldaduras en ángulo según UNE-EN 1993-1-8
Compartir