Opciones de configuración
Soldadura continua
DIN EN 1993-6 Tab. 5.1
Longitud de propagación de la carga eficaz
Spannungen im Grenzzustand der Tragfähigkeit
Secciones de soldadura en ángulo
Spannungen im Grenzzustand der Tragfähigkeit unterbrochen gegenüber
Spannungen im Grenzzustand der Tragfähigkeit unterbrochen versetzt
Opciones de configuración
Soldadura continua
DIN EN 1993-6 Tab. 5.1
Longitud de propagación de la carga eficaz
Spannungen im Grenzzustand der Tragfähigkeit
Secciones de soldadura en ángulo
Spannungen im Grenzzustand der Tragfähigkeit unterbrochen gegenüber
Spannungen im Grenzzustand der Tragfähigkeit unterbrochen versetzt
30-05-2024
009717
  • CRANEWAY 8
  • Grúas y caminos de rodadura para grúas
  • Eurocode 3

Opciones de configuración

Usado en
  • cálculo del estado límite último de las soldaduras de los carriles de las vigas de puente grúa según EN 1993-6
Compartir
30-05-2024
009718
  • CRANEWAY 8
  • Grúas y caminos de rodadura para grúas
  • Eurocode 3
Soldadura continua
Usado en
  • cálculo del estado límite último de las soldaduras de los carriles de las vigas de puente grúa según EN 1993-6
Compartir
30-05-2024
009719
  • CRANEWAY 8
  • Grúas y caminos de rodadura para grúas
  • Eurocode 3
DIN EN 1993-6 Tab. 5.1
Usado en
  • cálculo del estado límite último de las soldaduras de los carriles de las vigas de puente grúa según EN 1993-6
Compartir
30-05-2024
009720
  • CRANEWAY 8
  • Grúas y caminos de rodadura para grúas
  • Eurocode 3
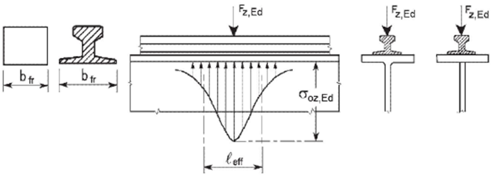
Longitud de propagación de la carga eficaz
Usado en
  • cálculo del estado límite último de las soldaduras de los carriles de las vigas de puente grúa según EN 1993-6
Compartir
30-05-2024
009721
  • CRANEWAY 8
  • Grúas y caminos de rodadura para grúas
  • Eurocode 3
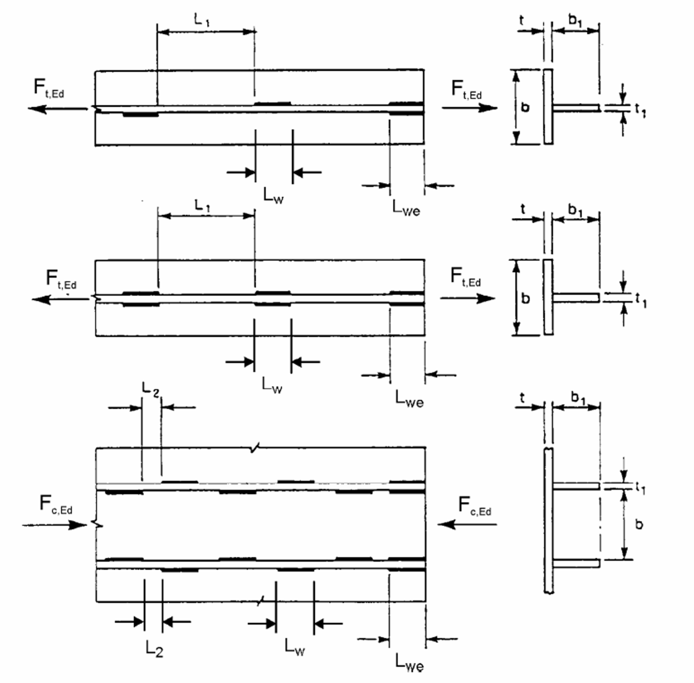
Spannungen im Grenzzustand der Tragfähigkeit
Usado en
  • cálculo del estado límite último de las soldaduras de los carriles de las vigas de puente grúa según EN 1993-6
Compartir
30-05-2024
009722
  • CRANEWAY 8
  • Grúas y caminos de rodadura para grúas
  • Eurocode 3
Secciones de soldadura en ángulo
Usado en
  • cálculo del estado límite último de las soldaduras de los carriles de las vigas de puente grúa según EN 1993-6
Compartir
30-05-2024
009723
  • CRANEWAY 8
  • Grúas y caminos de rodadura para grúas
  • Eurocode 3
Spannungen im Grenzzustand der Tragfähigkeit unterbrochen gegenüber
Usado en
  • cálculo del estado límite último de las soldaduras de los carriles de las vigas de puente grúa según EN 1993-6
Compartir
30-05-2024
009724
  • CRANEWAY 8
  • Grúas y caminos de rodadura para grúas
  • Eurocode 3
Spannungen im Grenzzustand der Tragfähigkeit unterbrochen versetzt
Usado en
  • cálculo del estado límite último de las soldaduras de los carriles de las vigas de puente grúa según EN 1993-6
Compartir