12811x
001402
13-02-2017

cálculo del estado límite último de las soldaduras de los carriles de las vigas de puente grúa según EN 1993-6

Si las vigas de puente grúa están diseñadas con carriles planos de acero, la soldadura de estos carriles siempre es un detalle para el cálculo. Por lo general, puede seleccionar entre soldaduras en ángulo continuas e intermitentes como fijación del carril. Der folgende Beitrag soll einen Überblick über die Nachweisführungen und deren Besonderheiten geben, speziell bei Verwendung der DIN EN 1993-6.

Opciones de disposición de las soldaduras en ángulo de carril

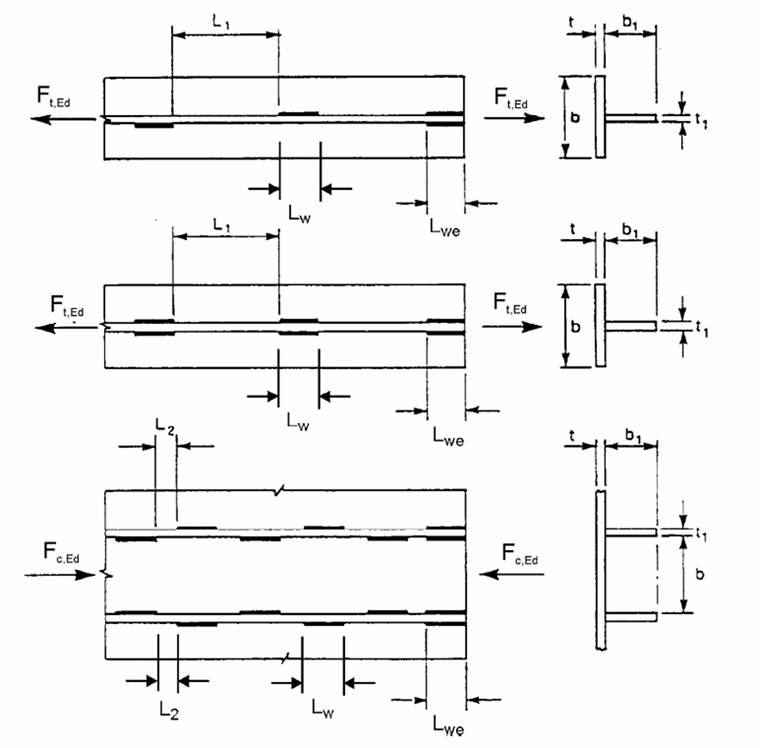
Hay dos variantes de uniones de soldadura en ángulo intermitente. Estas se muestran en la siguiente figura de [2].

Las secciones se pueden ubicar tanto en lados opuestos como escalonadas. La disposición escalonada es desfavorable para el cálculo, ya que solo se puede usar una soldadura para la transferencia de cargas horizontales. La tercera opción que no se muestra en la figura anterior es, por supuesto, una soldadura en ángulo continua a lo largo de toda la longitud del carril.

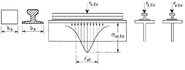
Longitud eficaz de carga

La determinación de los esfuerzos de soldadura correspondientes requiere el cálculo de longitudes de carga eficaces. La norma EN 1993‑6 [3] diferencia entre tres opciones y proporciona las fórmulas correspondientes para el cálculo de leff en la tabla 5.1.

En este caso, leff se refiere a la parte inferior del ala superior. Sin embargo, la superficie superior del ala superior rige para el cálculo de la soldadura. Por lo tanto, leff se reduce por el doble espesor del ala tf.

Cálculos de los estados límite últimos

Los esfuerzos de soldadura del carril se calculan de acuerdo con el método direccional especificado en [2]. En este caso, los esfuerzos se refieren a la superficie de bisección de la soldadura en ángulo. De acuerdo con [2], (AN) sección 4.5.2, se deben mantener los espesores estructurales mínimos para la soldadura. La norma requiere una soldadura de espesor mínimo de al menos 3 mm o la aplicación de la siguiente fórmula:

La carga excéntrica de la rueda de 1/4 del ancho de la cabeza del carril no se tiene en cuenta en el estado límite último según EN 1993-6. Por lo tanto, siempre se lleva a cabo el cálculo según la carga por rueda.

Caso 1: soldadura continua de carriles

Para soldaduras intermitentes en ángulo de carriles, es necesario comprobar si la longitud de la soldadura lw es más pequeña que la longitud de carga calculada leff. Generalmente, el mínimo de ambos valores es lo que rige el diseño.

Caso 2: soldadura intermitente de carril en lados opuestos

Caso 3: soldadura intermitente escalonada de carriles

Dado que la carga horizontal sólo se aplica en la sección de la soldadura en el caso de que las soldaduras estén dispuestas escalonadamente, el divisor 2 se omite en términos de HEd.


Enlaces
Referencias


;