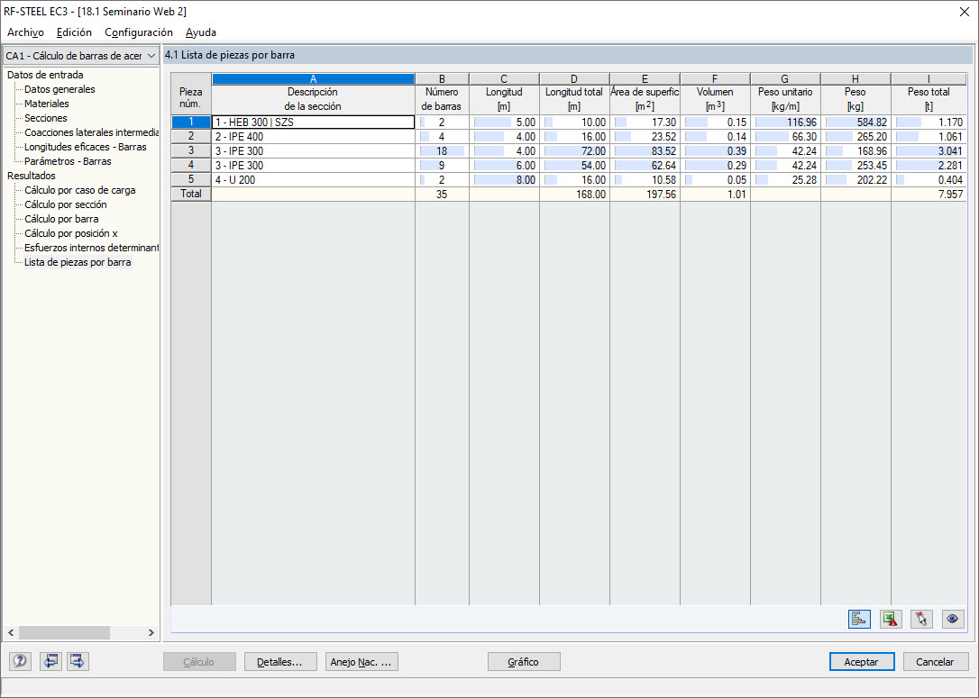
Lista de piezas en RF-STEEL EC3
Lista de piezas en RF-STEEL EC3
30-05-2024
018818
  • RFEM 5
  • RSTAB 8
  • RF-STEEL EC3
    • Estructuras de acero

Lista de piezas en RF-STEEL EC3

Usado en
  • Lista de piezas en RFEM 5
Compartir