Perímetro crítico alrededor del pilar considerando una abertura
Casilla de verificación del diseño de punzonamiento
Selección de nudos de punzonamiento mediante tablas
Cálculo de hormigón - Configuraciones
Parámetros de diseño de punzonamiento
Distribución de tensiones cortantes completamente plásticas
Armadura de superficie proporcionada para la comprobación inicial de la capacidad de cortante
Resistencia al punzonamiento basada en la armadura longitudinal existente
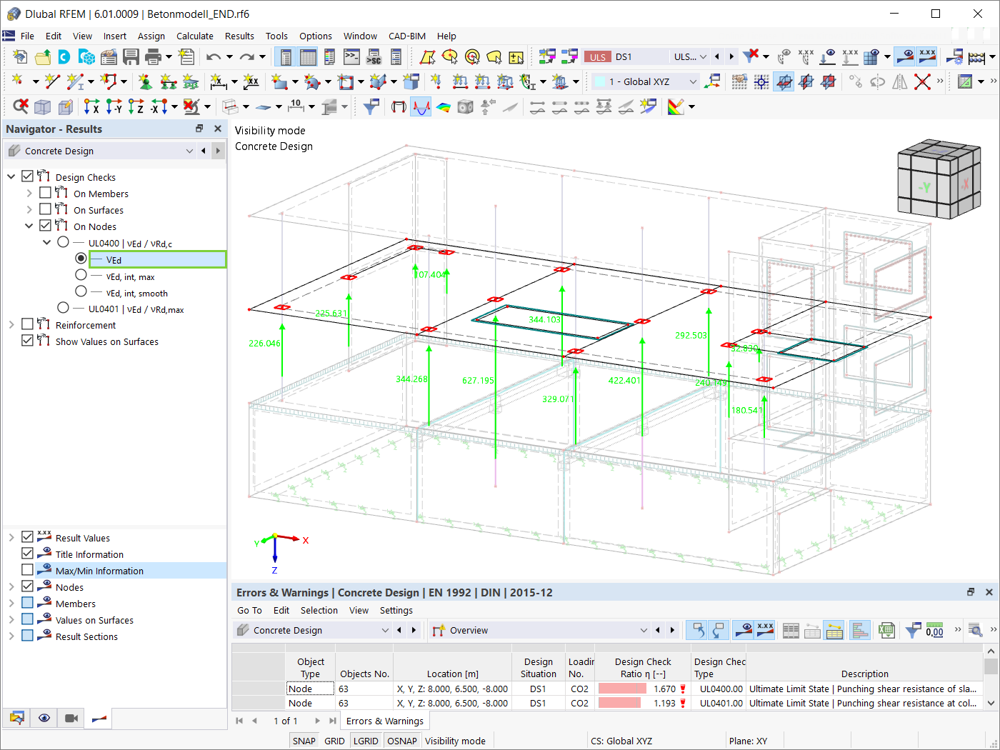
Detalles de la comprobación del diseño de punzonamiento
Definición de armadura longitudinal adicional
Armadura de superficie adicional mostrada gráficamente
Armadura necesaria en términos de punzonamiento
Carga de punzonamiento
Perímetro crítico alrededor del pilar considerando una abertura
Casilla de verificación del diseño de punzonamiento
Selección de nudos de punzonamiento mediante tablas
Cálculo de hormigón - Configuraciones
Parámetros de diseño de punzonamiento
Distribución de tensiones cortantes completamente plásticas
Armadura de superficie proporcionada para la comprobación inicial de la capacidad de cortante
Resistencia al punzonamiento basada en la armadura longitudinal existente
Detalles de la comprobación del diseño de punzonamiento
Definición de armadura longitudinal adicional
Armadura de superficie adicional mostrada gráficamente
Armadura necesaria en términos de punzonamiento
Carga de punzonamiento
30-05-2024
027065
  • RFEM 6
  • Estructuras de hormigón

Perímetro crítico alrededor del pilar considerando una abertura

Usado en
  • Cálculo de punzonamiento en RFEM 6
Compartir
30-05-2024
027066
  • RFEM 6
  • Estructuras de hormigón
Casilla de verificación del diseño de punzonamiento
Usado en
  • Cálculo de punzonamiento en RFEM 6
Compartir
30-05-2024
027067
  • RFEM 6
  • Estructuras de hormigón
Selección de nudos de punzonamiento mediante tablas
Usado en
  • Cálculo de punzonamiento en RFEM 6
Compartir
30-05-2024
027128
  • RFEM 6
Cálculo de hormigón - Configuraciones
Usado en
  • Cálculo de punzonamiento en RFEM 6
Compartir
30-05-2024
027129
  • RFEM 6
  • Estructuras de hormigón
Parámetros de diseño de punzonamiento
Usado en
  • Cálculo de punzonamiento en RFEM 6
Compartir
30-05-2024
027138
  • RFEM 6
  • Estructuras de hormigón
Distribución de tensiones cortantes completamente plásticas
Usado en
  • Cálculo de punzonamiento en RFEM 6
Compartir
30-05-2024
027130
  • RFEM 6
  • Estructuras de hormigón
Armadura de superficie proporcionada para la comprobación inicial de la capacidad de cortante
Usado en
  • Cálculo de punzonamiento en RFEM 6
Compartir
30-05-2024
027131
  • RFEM 6
  • Estructuras de hormigón
Resistencia al punzonamiento basada en la armadura longitudinal existente
Usado en
  • Cálculo de punzonamiento en RFEM 6
Compartir
30-05-2024
027132
  • RFEM 6
  • Estructuras de hormigón
Detalles de la comprobación del diseño de punzonamiento
Usado en
  • Cálculo de punzonamiento en RFEM 6
Compartir
30-05-2024
027133
  • RFEM 6
  • Estructuras de hormigón
Definición de armadura longitudinal adicional
Usado en
  • Cálculo de punzonamiento en RFEM 6
Compartir
30-05-2024
027134
  • RFEM 6
  • Estructuras de hormigón
Armadura de superficie adicional mostrada gráficamente
Usado en
  • Cálculo de punzonamiento en RFEM 6
Compartir
30-05-2024
027135
  • RFEM 6
  • Estructuras de hormigón
Armadura necesaria en términos de punzonamiento
Usado en
  • Cálculo de punzonamiento en RFEM 6
Compartir
30-05-2024
027136
  • RFEM 6
  • Estructuras de hormigón
Carga de punzonamiento
Usado en
  • Cálculo de punzonamiento en RFEM 6
Compartir