11139x
001728
23-12-2021

Cálculo de punzonamiento en RFEM 6

El cálculo de punzonamiento, según EN 1992-1-1, se debería realizar para losas con una carga o reacción concentrada. El nudo donde se realiza el cálculo de la resistencia al punzonamiento (es decir, donde hay un problema de punzonamiento) se llama nudo de punzonamiento. La carga concentrada en estos nudos se puede introducir mediante pilares, una fuerza concentrada o apoyos en nudos. El final de la introducción de la carga lineal en las losas también se considera como una carga puntual y, por lo tanto, también se debe controlar la resistencia a cortante en los extremos y esquinas de los muros, y en los extremos o esquinas de las cargas lineales y apoyos lineales.

Perímetro de control

La comprobación de punzonamiento se realiza en el perímetro de control básico, donde se comprueba si el esfuerzo cortante actuante vEd excede la resistencia vRd. Según el capítulo 6.4.2 del EC 2 [1], el perímetro de control para las losas está a una distancia del doble del canto útil (d) de la losa desde el punto de aplicación de la carga.

Las dimensiones del pilar, así como las aberturas de la losa, afectan a la geometría del perímetro de control y se deben considerar hasta la distancia de 6 d de la superficie de carga. Es importante que defina todas las aberturas de antemano (es decir, durante el análisis por el MEF), para que el programa pueda reconocerlas automáticamente y tenerlas en cuenta para el diseño de punzonamiento, como se muestra en la Imagen 1.

Parámetros de diseño de punzonamiento en RFEM 6

Suponiendo que el complemento Cálculo de hormigón ya se ha activado, el cálculo de punzonamiento en RFEM 6 se puede inicializar marcando la casilla Cálculo de punzonamiento en las propiedades de cálculo del nudo de punzonamiento (imagen 2). Es posible seleccionar todos los nudos donde se ha producido un problema de punzonamiento y activar el cálculo de punzonamiento simultáneamente para todos ellos. Alternativamente, los nudos con punzonamiento se pueden seleccionar para el cálculo en los Datos de entrada de la tabla de Cálculo de hormigón (Imagen 3).


Los parámetros de diseño de punzonamiento para los nudos seleccionados se pueden definir en la Configuración del estado límite último para el cálculo de hormigón (Imagen 4). Por lo tanto, la carga de punzonamiento, el factor de incremento de carga β para considerar la distribución asimétrica del esfuerzo cortante en el perímetro de control y la separación mínima de armadura se pueden establecer en la pestaña Punzonamiento de la configuración última (Imagen 5).


La carga de punzonamiento para muros es el esfuerzo cortante (suavizado o sin suavizar) sobre el perímetro crítico, mientras que para pilares, la carga de punzonamiento puede ser el esfuerzo cortante (suavizado o sin suavizar) sobre el perímetro crítico o una fuerza simple del pilar, carga, o apoyo en nudo.

El factor de incremento de carga según EN 1992-1-1 [1] se puede estimar considerando la distribución de cortante plástica total como se muestra en la imagen 6 o por medio de factores constantes. También puede ser determinado por un modelo de sector o definido por el usuario.

Cálculo de punzonamiento en RFEM 6

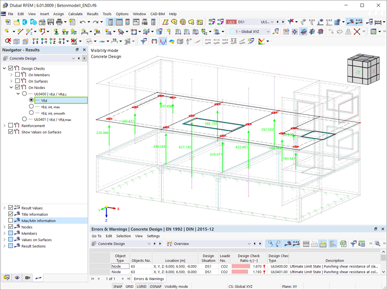
Suponiendo que se han definido los parámetros de cálculo del punzonamiento, se puede realizar el cálculo del hormigón (incluido el punzonamiento). Primero, el cálculo se puede realizar teniendo en cuenta solo la armadura longitudinal, que ya se ha proporcionado a la superficie (Imagen 7). Una vez que se realiza el cálculo del hormigón considerando solo esta armadura, las razones de cálculo en términos de resistencia a punzonamiento para todos los nudos de interés están disponibles tanto gráficamente como en las tablas (Imagen 8).


Las razones de tensiones en los nudos de punzonamiento son, de hecho, una comparación entre la resistencia a punzonamiento sin armadura de cortante vRd,c determinada según 6.4.4 (1) [1], y la tensión tangencial máxima aplicada vEd calculada de acuerdo con el capítulo 6.4.3 (3), ecuación (38). Estas ecuaciones, así como todo el procedimiento de cálculo, se pueden encontrar en los Detalles de comprobación de diseño que se muestran en la Imagen 9.

El esfuerzo cortante por punzonamiento sin armadura de punzonamiento adicional se cumple si vEd ≤ vRd,c ; de lo contrario, se debe definir la armadura adicional. En este último caso, es posible definir una armadura longitudinal adicional en el lado traccionado de la losa.

Para la losa en este ejemplo, esto se hará definiendo una armadura longitudinal adicional en el lado superior, como se muestra en la Imagen 10. La armadura definida se puede asignar a un nudo, luego se puede copiar fácilmente a todos los nudos de punzonamiento utilizando la función común "copiar" (Imagen 11). La armadura asignada de esta manera se considerará automáticamente para la determinación de la capacidad a cortante.


Una vez más, los resultados están disponibles tanto gráficamente como en la tabla de Cálculo de hormigón. Si aún no se cumple el cálculo de la resistencia a punzonamiento sin armadura de punzonamiento adicional, el usuario puede aumentar la armadura longitudinal aplicando la cuantía de armadura longitudinal máxima admisible ρ. Sin embargo, si el cálculo de la resistencia a punzonamiento es imposible sin armadura de punzonamiento (vRd,cvEd ), se calcula la resistencia máxima a punzonamiento vRd,max y se realiza la comprobación de diseño automáticamente.

La cantidad de armadura necesaria en términos de punzonamiento se puede mostrar a través de la pestaña Resultados del navegador (Imagen 12). Si el usuario también está interesado en la carga de punzonamiento utilizada para el cálculo, se puede mostrar a través de la pestaña Resultados del navegador como se muestra en la Imagen 13.


Observaciones finales

El cálculo de punzonamiento en RFEM 6 se incluye en el complemento Cálculo de hormigón y se puede inicializar marcando la casilla Cálculo de punzonamiento en la ventana de edición de los nudos de punzonamiento. La activación de las propiedades de cálculo permitirá que los parámetros de cálculo de punzonamiento tales como la carga de punzonamiento, el factor de incremento de carga β y la separación mínima de armaduras se definan en la Configuración del estado límite último para el cálculo del hormigón.

El cálculo del hormigón se puede realizar sobre la base de la armadura longitudinal proporcionada para los otros tipos de cálculo. Si no se cumple el cálculo de la resistencia a punzonamiento sin armadura de punzonamiento adicional (vRd,c ≤ vEd ), se puede asignar una armadura longitudinal adicional en el lado traccionado de la losa. De esta forma, se calcula la resistencia máxima a punzonamiento vRd,max y se realiza la comprobación de diseño automáticamente.


Autor

La Sra. Kirova es responsable de la creación de artículos técnicos y proporciona soporte técnico a los clientes de Dlubal.

Enlaces
Referencias


;