Ejemplo de verificación 1024 | rasante en la junta entre hormigones
Ejemplo de verificación 1024 | rasante en la junta entre hormigones
13-08-2024
042002
  • RFEM 6

Ejemplo de verificación 1024 | rasante en la junta entre hormigones

Usado en
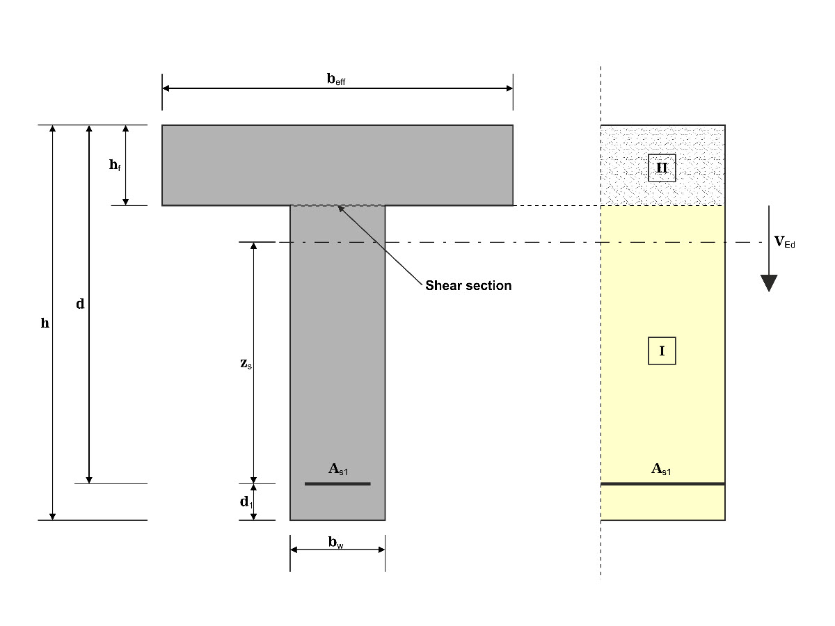
  • VE 1024 | Cortante en la junta entre hormigones moldeados segĂșn DIN EN 1992-1-1
Compartir