Descripción del trabajo
En este ejemplo, el cortante en la interfaz entre el hormigón colado en diferentes momentos y la armadura correspondiente se determina según DIN EN 1992-1-1. Los resultados obtenidos con RFEM 6 se compararán con el cálculo manual a continuación.
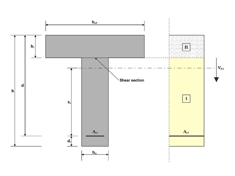
El modelo consta de una viga en T de 2.812 m, fijada en un extremo. La sección de cortante se muestra en la figura siguiente.
| Material | Hormigón C25/30 | Módulo de elasticidad | E | 31000 | N/mm2 |
| Valor de cálculo de la resistencia a compresión del hormigón | fcd | 14,167 | N/mm2 | ||
| Acero de armadura B500S (A) | Límite elástico característico | fyk | 500,000 | N/mm2 | |
| Valor de cálculo del límite elástico | fyd | 434,783 | N/mm2 | ||
| Geometría | Viga en T | Altitud | h | 1350 | mm |
| Canto útil | d | 1280 | mm | ||
| Altura del ala | hf | 290 | mm | ||
| Anchura del ala | beff | 2500 | mm | ||
| Anchura del alma | bw | 400 | mm | ||
| Carga | Cargas permanentes | Carga en nudo | 800,0 | kN |
La viga en T se modela en RFEM 6 utilizando el tipo de barra Nervio.
Solución analítica
Los esfuerzos internos al final del voladizo se resumen en la siguiente tabla:
| Fuerzas internas | |||
| Tipo | Símbolo | Unidad | Resultado |
| Esfuerzo cortante de cálculo | VEd | [kN] | 800 |
| Momento flector de cálculo | MED | [kNm] | 2250 |
El área de la armadura de tracción se calcula utilizando tablas de dimensiones:
A continuación, se determinan el esfuerzo cortante de cálculo vEdi y la resistencia a cortante de cálculo vRd, c :
vEdi es superior a vRd, c. Por lo tanto, se requiere una armadura de cortante:
Configuración de RFEM
- En la configuración Nervio, se activa la junta de cortante entre el ala y el alma.
- La clasificación de rugosidad se establece en Sangría
Resultados
| Designación | Variable | Unidad | Resultado de RFEM | Solución analítica | Razón |
| Factor de rugosidad c | c | [-] | 0.5 | 0.5 | 1,0 |
| Factor de rugosidad | μ | [-] | 0,9 | 0,9 | 1,0 |
| Coeficiente de reducción de la resistencia para hormigón fisurado en cortante para juntas | ν | [-] | 0,7 | 0,7 | 1,0 |
| Brazo mecánico interior | z | [m] | 1,179 | 1,152 | 1,02 |
| Razón entre el esfuerzo longitudinal en el nuevo área de hormigón y el esfuerzo longitudinal total | β | [-] | 1,0 | 1,0 | 1,0 |
| Ángulo | α | [°] | 90 | 90 | 1,0 |
| Valor de cálculo de la tensión tangencial en la junta | vEd,i | [N/mm2 ] | 1,695 | 1,736 | 0.98 |
| Máxima resistencia al cortante de cálculo en la interfaz | vRd,i,máx. | [N/mm2 ] | 4,958 | 4,958 | 1,0 |
| Resistencia de cálculo a cortante en la interfaz sin armadura de cortante | vRd,i | [N/mm2 ] | 0,510 | 0,510 | 1,0 |
| Armadura de cortante necesaria en la interfaz | asw,i,nec | [cm2/m] | 10,10 | 10,44 | 0,97 |
Resultados
Los resultados de RFEM 6 obtenidos son muy precisos. Las ligeras desviaciones observadas se derivan principalmente del cálculo del brazo de palanca interior, z. En la solución analítica, z se considera simplemente como el 90% de la profundidad eficaz, mientras que RFEM lo calcula con precisión.