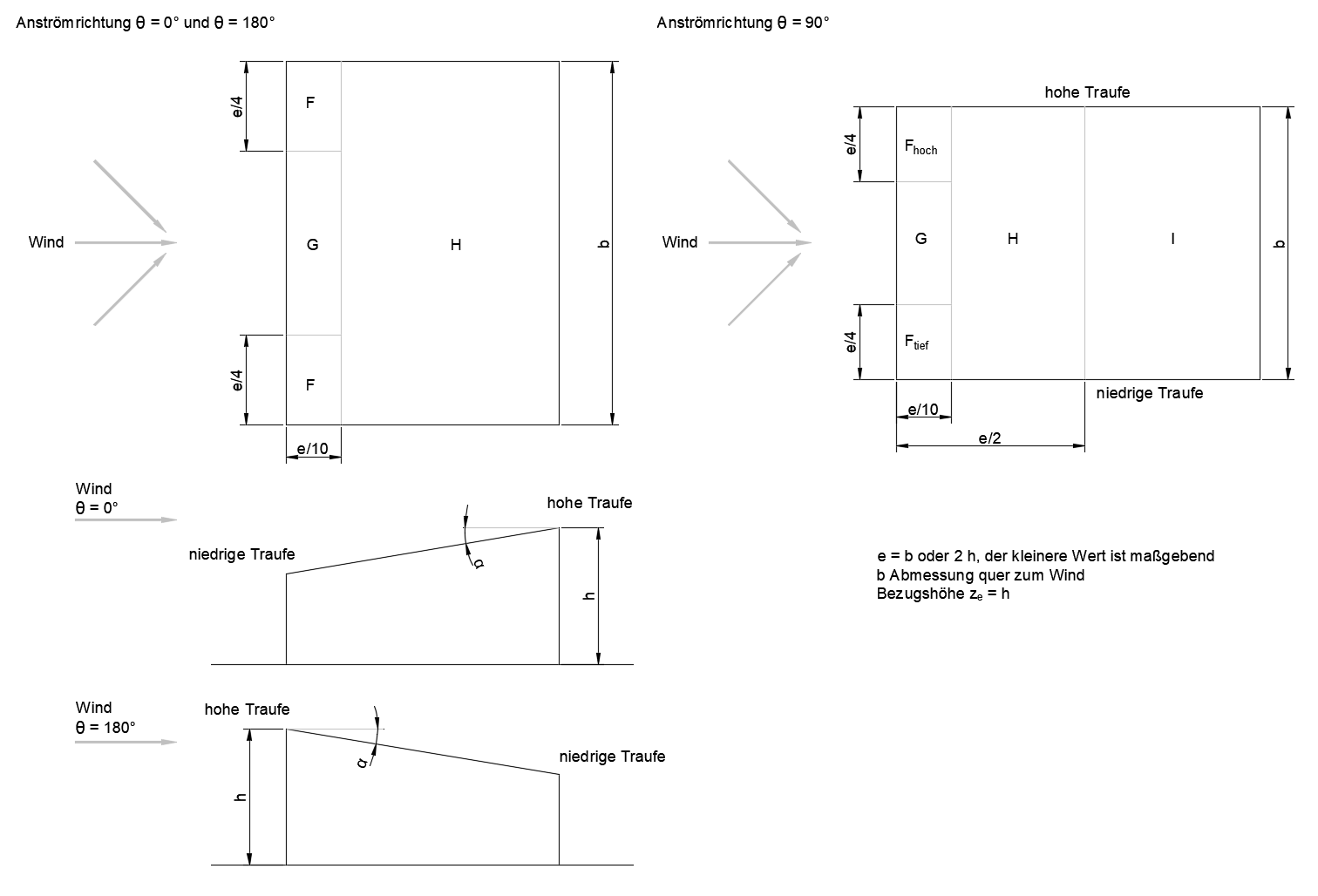
Einteilung der Dachflächen beim Pultdach
Einteilung der Dachflächen beim Pultdach
30.05.2024
009021
  • RFEM 5
  • RSTAB 8
  • RX-TIMBER Glued-Laminated Beam 2
    • Toiture RX-TIMBER 2
    • Poutre continue RX-TIMBER 2
    • Panne RX-TIMBER 2
    • Châssis RX-TIMBER 2
    • RX-TIMBER colonne 2
    • Contreventement RX-TIMBER 2
    • Structures en béton
    • Structures en acier
    • Structures bois
    • Bâtiments
    • Conception et calcul de structure
    • Eurocode 0
    • Eurocode 1

Einteilung der Dachflächen beim Pultdach

Utilisé dans
  • Charge de vent sur les toitures à un ou deux versants en Allemagne
Partager