Le vent est naturellement une action variable dans le temps sur une structure située à l'extérieur. Afin de combiner cette charge avec d'autres actions (charge d'exploitation, neige, etc.) dans des situations de calcul définies selon la norme de combinaison DIN EN 1990, l'action du vent est classée comme une action variable libre. Les modifications des coefficients aérodynamiques dues à d'autres actions (neige, circulation ou glace) et à des modifications de la structure doivent être prises en compte lors de la construction. Cependant, les fenêtres et les portes sont supposées fermées en cas de charges de vent. Les ouvertures inévitables de portes et de fenêtre doivent être considérées comme des situations de projet accidentelles.
La charge de vent dynamique doit être affichée de manière simplifiée sous forme de pression ou de force du vent équivalente à l'action maximale du vent turbulent. Le vent agit sur les surfaces extérieures dans le cas de structures fermées et sur les surfaces intérieures dans le cas de structures perméables ou ouvertes. L'action doit être appliquée perpendiculairement aux surfaces considérées. Dans le cas de grandes surfaces soumises à la circulation du vent, une composante de friction doit être considérée en plus, parallèle à la surface.
La norme de vent DIN EN 1991-1-4 avec l'Annexe nationale de l'Allemagne spécifie la charge de vent comme une valeur caractéristique. Cette valeur est déterminée par une vitesse de base du vent avec une probabilité de dépassement annuelle de 2 % et une période de retour moyenne de 50 ans.
La charge de vent résultante dans le cas de bâtiments suffisamment rigides et non sensible aux vibrations peut être décrite comme une force statique équivalente qui dépend de la vitesse de pointe. En revanche, pour les bâtiments sensibles aux vibrations, la vitesse de pointe est en outre modifiée par un facteur de structure pour déterminer la charge statique équivalente [1], [2].
En termes simples, les structures ne sont pas considérées comme sensibles aux vibrations si la déformation sous la charge de vent causée par la résonance du vent en rafales n'est pas augmentée de plus de 10 %. Ce critère s'applique aux bâtiments typiques d'une hauteur allant jusqu'à 25 m qui ne sont pas sensibles aux vibrations. Dans tous les autres cas, le critère de classification suivant peut être utilisé [3] :
où
xS = est le déplacement de tête en m dû au poids propre appliqué dans la direction du vent
h = hauteur du bâtiment en m ; hréf = 25 m
b = largeur du bâtiment perpendiculaire à la direction du vent en m
δ = décrément logarithmique de l'amortissement selon la DIN EN 1991-1-4, Annexe F
| Type de structure | Amortissement du bâtiment δmin |
|---|---|
| Bâtiment en béton armé | 0,1 |
| Bâtiment en acier | 0,05 |
| Structure mixte (acier et béton) | 0,08 |
Pression dynamique extrême en fonction de l'altitude
La charge de vent sur un bâtiment non sujet aux vibrations dépend de la pression dynamique extrême qp. Cette valeur résulte de la vitesse d'une rafale de vent d'une durée de deux à quatre secondes en tenant compte des conditions du terrain environnant. Pour déterminer la charge à un endroit donné, l'Annexe nationale de l'Allemagne contient une carte des zones de vent avec les valeurs de base correspondantes des vitesses de référence du vent vb,0, les valeurs de base des pressions dynamiques de référence qb,0 et une spécification de divers types de terrain (catégories I - IV) [1], [2], [3].
Si la zone de vent augmente, la valeur de base de la vitesse de référence du vent augmente également.
La catégorie de terrain augmente avec la rugosité du terrain.
| Terrain | Description |
|---|---|
| Catégorie de terrain I | Mer, lac ou plan d'eau parcourus par le vent sur une distance d'au moins 5 km |
| Catégorie de terrain II | Site avec des haies, des fermes individuelles, des maisons ou des arbres (zone agricole, par exemple) |
| Catégorie de terrain III | Banlieues ; zones industrielles ou commerciales ; forêts |
| Catégorie de terrain IV | Zones urbaines dans lesquelles les bâtiments occupent au moins 15 % de la surface et ont une hauteur moyenne supérieure à 15 m. |
| Côte à profil mixte | Zone de transition entre les catégories de terrain I et II |
| Profil mixte à l'intérieur des terres | Zone de transition entre les catégories de terrain II et III |
La pression dynamique extrême vb,0 peut être déterminée en définissant la valeur de base de la vitesse de référence du vent qp et le type de terrain.
| Pression dynamique extrême qp en kN/m² [3] | Méthode 1 Tableau NA-B.1 | Méthode 2 NA.B.3.3 | Méthode 3 NA.B.3.2 | |||||||
|---|---|---|---|---|---|---|---|---|---|---|
| Influence du niveau de la mer NNmod | Moins de 800 m d'altitude | 1,0 | ||||||||
| Entre 800 m et 1 100 m d'altitude | 0,2 + Hs/1 000 | |||||||||
| Plus de 1 100 m d'altitude | Considérations spéciales requises | |||||||||
| Zone de vent | 1 | 2 | 3 | 4 | 1 | 2 | 3 | 4 | ||
| Valeur de base de la vitesse de référence du vent vb,0 en m/s | 22,5 | 25,0 | 27,5 | 30,0 | - | - | - | - | ||
| Facteur de direction cdir | 1,0 | - | - | - | - | |||||
| Coefficient de saison cseason | 1,0 | - | - | - | - | |||||
| Valeur de base de la pression dynamique qb en kN/m² | 0,32 | 0,39 | 0,47 | 0,56 | - | - | - | - | ||
| Catégorie de terrain | Hauteur du bâtiment | qp en kN/m² | ||||||||
| qp(z) en kN/m² | ||||||||||
| Catégorie de terrain I | Jusqu'à 2 m | 1,90 ⋅ qb ⋅ NNmod- | - | - | - | - | ||||
| 2 m à 300 m | 2,60 ⋅ qb ⋅ (z/10)0,19 ⋅ NNmod | |||||||||
| Catégorie de terrain II | Jusqu'à 4 m | 1,70 ⋅ qb ⋅ NNmod- | - | - | - | - | ||||
| 4 m à 300 m | 2,10 ⋅ qb ⋅ (z/10)0,24 ⋅ NNmod | |||||||||
| Catégorie de terrain III | Jusqu'à 8 m | 1,50 ⋅ qb ⋅ NNmod- | - | - | - | - | ||||
| 8 m à 300 m | 1,60 ⋅ qb ⋅ (z/10)0,31 ⋅ NNmod | |||||||||
| Catégorie de terrain IV | Jusqu'à 16 m | 1,30 ⋅ qb ⋅ NNmod- | - | - | - | - | ||||
| 16 m à 300 m | 1,10 ⋅ qb ⋅ (z/10)0,40 ⋅ NNmod | |||||||||
| Îles de la mer du Nord I | Jusqu'à 2 m | 1,10 ⋅ NNmod | - | - | - | - | ||||
| 2 m à 300 m | 1,50 ⋅ (z/10)0,19 ⋅ NNmod | |||||||||
| Zones côtières et îles de la mer Baltique I - II | Jusqu'à 4 m | 1,80 ⋅ qb ⋅ NNmod | - | - | - | - | ||||
| 4 m à 50 m | 2,30 ⋅ qb ⋅ (z/10)0,27 ⋅ NNmod | |||||||||
| 50 m à 300 m | 2,60 ⋅ qb ⋅ (z/10)0,19 ⋅ NNmod | |||||||||
| Zones à l'intérieur des terres II - III | Jusqu'à 7 m | 1,50 ⋅ qb ⋅ NNmod | - | - | - | - | ||||
| 7 m à 50 m | 1,70 ⋅ qb ⋅ (z/10)0,37 ⋅ NNmod | |||||||||
| 50 m à 300 m | 2,10 ⋅ qb ⋅ (z/10)0,24 ⋅ NNmod | |||||||||
| Arrière-pays | Jusqu'à 10 m | - | - | 0,50 ⋅ NNmod | 0,65 ⋅ NNmod | 0,80 ⋅ NNmod | 0,95 ⋅ NNmod | |||
| 10 m à 18 m | 0,65 ⋅ NNmod | 0,80 ⋅ NNmod | 0,95 ⋅ NNmod | 1,15 ⋅ NNmod | ||||||
| 18 m à 25 m | 0,75 ⋅ NNmod | 0,90 ⋅ NNmod | 1,10 ⋅ NNmod | 1,30 ⋅ NNmod | ||||||
| Côtes et Îles de la mer Baltique | Jusqu'à 10 m | - | - | - | 0,85 ⋅ NNmod | 1,05 ⋅ NNmod | - | |||
| 10 m à 18 m | - | 1,00 ⋅ NNmod | 1,20 ⋅ NNmod | - | ||||||
| 18 m à 25 m | - | 1,10 ⋅ NNmod | 1,30 ⋅ NNmod | - | ||||||
| Côtes de la mer du Nord et de la mer Baltique et îles de la mer Baltique | Jusqu'à 10 m | - | - | - | - | - | 1,25 ⋅ NNmod | |||
| 10 m à 18 m | - | - | - | 1,40 ⋅ NNmod | ||||||
| 18 m à 25 m | - | - | - | 1,55 ⋅ NNmod | ||||||
| Îles de la mer du Nord | Jusqu'à 10 m | - | - | - | - | - | 1,40 ⋅ NNmod | |||
| 10 m à 18 m | - | - | - | Selon l'approche 2 | ||||||
| 18 m à 25 m | - | - | - | Selon l'approche 2 | ||||||
Détermination de la pression dynamique locale du vent avec le service en ligne Dlubal
Le service en ligne Dlubal Zones de charge de neige, zones de vent et zones sismiques combine les spécifications des normes avec les technologies numériques. Ce service superpose la carte de la zone respective avec la carte de Google Maps en fonction du type de charge choisi (neige, vent, sismicité) et les normes spécifiques au pays. Entrez l'emplacement, les coordonnées géographiques ou les conditions locales dans la fonction de recherche pour obtenir les données pertinentes. L'outil détermine ensuite la charge ou la vitesse caractéristique à cet emplacement selon l'altitude exacte au-dessus du niveau de la mer et les données disponibles sur cette zone. Si le site du projet n'est pas encore associé à une adresse précise, la carte peut être agrandie afin d'obtenir les informations sur la zone voulue en déplaçant le marqueur. Le calcul est en effet ajusté à la nouvelle altitude et les charges correspondantes affichées lorsqu'une nouvelle localisation est sélectionnée.
Ce service en ligne est disponible sur le site web de Dlubal Software dans Solutions → Services en ligne.
Les paramètres suivants doivent être entrés :
1. type de charge = vent
2. norme = EN 1991-1-4
3. Annexe = Allemagne | DIN EN 1991-1-4
4. Adresse = 11 rue de Cambrai, 75019 Paris
On obtient alors les résultats suivants :
5. La zone de vent
6. Éventuelles informations complémentaires
7. Valeur de base de la vitesse de référence du vent vb,0
8. Pression dynamique de référence qb
Si vous sélectionnez une position au-dessus de 1 100 m, le service en ligne s'affiche au point 6. « Aucune charge de vent définie au-dessus de 1 100 m | NCI A.2 (3) ». Aucune charge ne peut être déterminée selon la règle existante et des considérations particulières sont requises pour cet emplacement.
Pression du vent sur les surfaces
La pression de la charge de vent agissant sur une surface est le produit de la pression dynamique extrême déterminante multipliée par le coefficient aérodynamique [1], [2].
Pour les surfaces externes :
we =qp(ze) ⋅ cpe
où
qp(ze ) = pression dynamique extrême
ze = hauteur de référence pour la pression extérieure
cpe = coefficient aérodynamique pour la pression extérieure
Pour les surfaces internes :
wi =qp(zi) ⋅ cpi
où
qp(zi ) = pression dynamique de pointe
zi = hauteur de référence pour la pression interne
cpi = coefficient aérodynamique pour la pression interne
La charge résultante de pression externe et interne est la charge de pression nette sur une surface. La pression sur une surface est alors considérée comme positive et la pression (suction) hors de la surface comme négative.
Pression nette :
wnet = we + wi
Coefficients aérodynamiques sélectionnés
Les charges de pression et de succion sont appliquées aux surfaces d'une structure exposée au flux de vent. L'ampleur de l'action sur les surfaces externes dépend de la zone d'application de la charge. Une zone d'application de charge est la surface qui absorbe activement la charge de vent bidimensionnelle et la transmet de manière concentrée à la structure sous-jacente. Pour ce type d'analyse, la norme contient des coefficients de pression externe aérodynamique qui dépendent de la surface d'introduction de la charge [1], [2].
| Zone d'application de la charge A [3] | Aérodynamique Coefficient de pression externe cpe | Description |
|---|---|---|
| <1 m² | cpe,1 | Calcul de petits composants structurels et de leurs ancrages (par exemple, enrobage ou éléments de toiture) |
| 1 m² à 10 m² | cpe,1 - (cpe,1 - cpe,10) ⋅ log10(A) | |
| > 10 m² | cpe,10 | Calcul de l'ensemble de la structure |
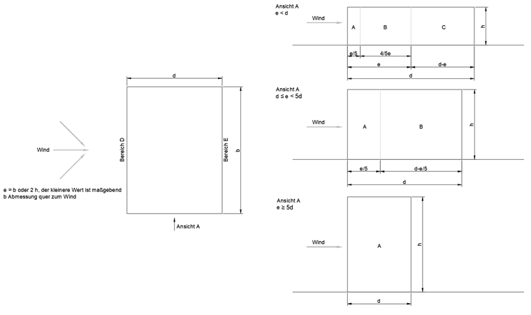
Murs verticaux des bâtiments à plan rectangulaire
La vitesse du vent augmente naturellement de manière non linéaire avec la hauteur par rapport au sol. Pour la surface du bâtiment exposée au vent (zone au vent D), la pression dynamique extrême résultante peut être appliquée de manière simplifiée et ajustée en fonction du rapport entre la hauteur h et la largeur b du bâtiment [1], [2].
Les charges de succion des murs des surfaces restantes du bâtiment sous le vent et parallèles au vent (zones A, B, C et E) dépendent de l'aérodynamisme du bâtiment. Les coefficients aérodynamiques finaux pour les surfaces externes peuvent être déterminés et appliqués à l'échelle, en fonction du rapport entre la hauteur h et la profondeur d du bâtiment.
| Zone | A | B | C | D | E | |||||
|---|---|---|---|---|---|---|---|---|---|---|
| h/j | cpe,10 | cpe,1 | cpe,10 | cpe,1 | cpe,10 | cpe,1 | cpe,10 | cpe,1 | cpe,10 | cpe,1 |
| ≥5 | -1,4 | -1,7 | -0,8 | -1,1 | -0,5 | -0,7 | +0,8 | +1,0 | -0,5 | -0,7 |
| 1 | -1,2 | -1,4 | -0,8 | -1,1 | -0,5 | +0,8 | +1,0 | -0,5 | ||
| 0,25 | -1,2 | -1,4 | -0,8 | -1,1 | -0,5 | +0,8 | +1,0 | -0,3 | -0,5 | |
| Des forces d'aspiration plus importantes peuvent se produire dans la zone d'aspiration pour les bâtiments isolés en terrain ouvert. L'interpolation linéaire des valeurs intermédiaires est autorisée. Pour les bâtiments où h/d > 5, la charge de vent totale doit être déterminée à l'aide des valeurs de force selon la DIN EN 1991-1-4 ainsi que les chapitres 7.6 à 7.8 et 7.9.2 de l'Annexe nationale de l'Allemagne. | ||||||||||
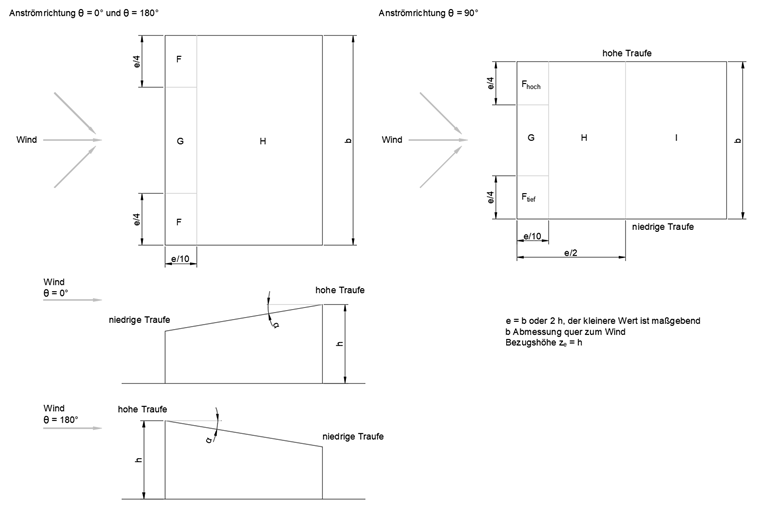
Toiture à un seul versant
Tout comme les dimensions du bâtiment, la forme de la toiture a également un effet aérodynamique sur les surfaces extérieures de la toiture. Une toiture avec une inclinaison supérieure à 5° avec des avant-toits hauts et bas distinctifs est appelée une toiture à un seul versant. En raison de l'aérodynamisme, les charges de vent agissent sur les surfaces d'application des charges, en fonction de l'inclinaison de la toiture [1], [2].
| Zone | F | G | H | I | ||||||
|---|---|---|---|---|---|---|---|---|---|---|
| Direction du vent θ = 0°2) | ||||||||||
| Angle d'inclinaison α1) | cpe,10 | cpe,1 | cpe,10 | cpe,1 | cpe,10 | cpe,1 | cpe,10 | cpe,1 | ||
| 5° | -1,7 | -2,5 | -1,2 | -2,0 | -0,6 | -1,2 | - | - | ||
| +0,0 | +0,0 | +0,0 | ||||||||
| 15° | -0,9 | -2,0 | -0,8 | -1,5 | -0,3 | - | - | |||
| +0,2 | +0,2 | +0,2 | ||||||||
| 30° | -0,5 | -1,5 | -0,5 | -1,5 | -0,2 | - | - | |||
| +0,7 | +0,7 | +0,4 | ||||||||
| 45° | -0,0 | -0,0 | -0,0 | - | - | |||||
| +0,7 | +0,7 | +0,6 | ||||||||
| 60° | +0,7 | +0,7 | +0,7 | - | - | |||||
| 75° | +0,8 | +0,8 | +0,8 | - | - | |||||
| Direction du vent θ = 180° | ||||||||||
| 5° | -2,3 | -2,5 | -1,3 | -2,0 | -0,8 | -1,2 | - | - | ||
| 15° | -2,5 | -2,8 | -1,3 | -2,0 | -0,9 | -1,2 | - | - | ||
| 30° | -1,1 | -2,3 | -0,8 | -1,5 | -0,8 | - | - | |||
| 45° | -0,6 | -1,3 | -0,5 | -0,7 | - | - | ||||
| 60° | -0,5 | -1,0 | -0,5 | -0,5 | - | - | ||||
| 75° | -0,5 | -1,0 | -0,5 | -0,5 | - | - | ||||
| Direction du vent θ = 90° | ||||||||||
| félevée | ffaible | |||||||||
| cpe,10 | cpe,1 | cpe,10 | cpe,1 | |||||||
| 5° | -2,1 | -2,6 | -2,1 | -2,4 | -1,8 | -2,0 | -0,6 | -1,2 | -0,5 | |
| 15° | -2,4 | -2,9 | -1,6 | -2,4 | -1,9 | -2,5 | -0,8 | -1,2 | -0,7 | -1,2 |
| 30° | -2,1 | -2,9 | -1,3 | -2,0 | -1,5 | -2,0 | -1,0 | -1,3 | -0,8 | -1,2 |
| 45° | -1,5 | -2,4 | -1,3 | -2,0 | -1,4 | -2,0 | -1,0 | -1,3 | -0,9 | -1,2 |
| 60° | -1,2 | -2,0 | -1,2 | -2,0 | -1,2 | -2,0 | -1,0 | -1,3 | -0,7 | -1,2 |
| 75° | -1,2 | -2,0 | -1,2 | -2,0 | -1,2 | -2,0 | -1,0 | -1,3 | -0,5 | |
| 1) L'interpolation linéaire des valeurs intermédiaires est autorisée à condition que le signe ne change pas. La valeur de 0,0 est donnée pour l'interpolation. 2) Pour la direction du vent θ = 0° et les angles d'inclinaison α = +5° à +45°, la pression change très rapidement entre les valeurs positives et négatives. Par conséquent, le coefficient de pression externe positif et négatif est indiqué pour cette zone. Pour de telles toitures, les deux cas (pression et succion) doivent être considérés séparément en considérant d'abord les valeurs positives (pression) et les valeurs négatives (succion). | ||||||||||
Toiture à deux versants
Une forme de toiture composée de deux surfaces de toiture inclinées dans des directions opposées, qui se coupent au niveau du bord horizontal supérieur du faîte, est appelée toiture à deux versants. Cette géométrie a ses propres effets aérodynamiques sur les zones d'application de charge [1], [2].
| Zone | F | G | H | I | J | ||||||
|---|---|---|---|---|---|---|---|---|---|---|---|
| Direction du vent θ = 0°2) | |||||||||||
| Angle d'inclinaison α1) | cpe,10 | cpe,1 | cpe,10 | cpe,1 | cpe,10 | cpe,1 | cpe,10 | cpe,1 | cpe,10 | cpe,1 | |
| 5° | -1,7 | -2,5 | -1,2 | -2,0 | -0,6 | -1,2 | -0,6 | +0,2 | |||
| +0,0 | +0,0 | +0,0 | -0,6 | ||||||||
| 15° | -0,9 | -2,0 | -0,8 | -1,5 | -0,3 | -0,4 | -1,0 | -1,5 | |||
| +0,2 | +0,2 | +0,2 | +0,0 | +0,0 | +0,0 | ||||||
| 30° | -0,5 | -1,5 | -0,5 | -1,5 | -0,2 | -0,4 | -0,5 | ||||
| +0,7 | +0,7 | +0,4 | +0,0 | +0,0 | |||||||
| 45° | -0,0 | -0,0 | -0,0 | -0,2 | -0,3 | ||||||
| +0,7 | +0,7 | +0,6 | +0,0 | +0,0 | |||||||
| 60° | +0,7 | +0,7 | +0,7 | -0,2 | -0,3 | ||||||
| 75° | +0,8 | +0,8 | +0,8 | -0,2 | -0,3 | ||||||
| Direction du vent θ = 90° | |||||||||||
| 5° | -1,6 | -2,2 | -1,3 | -2,0 | -0,7 | -1,2 | -0,6 | - | - | ||
| 15° | -1,3 | -2,0 | -1,3 | -2,0 | -0,6 | -1,2 | -0,5 | - | - | ||
| 30° | -1,1 | -1,5 | -1,4 | -2,0 | -0,8 | -1,2 | -0,5 | - | - | ||
| 45° | -1,1 | -1,5 | -1,4 | -2,0 | -0,9 | -1,2 | -0,5 | - | - | ||
| 60° | -1,1 | -1,5 | -1,2 | -2,0 | -0,8 | -1,0 | -0,5 | - | - | ||
| 75° | -1,1 | -1,5 | -1,2 | -2,0 | -0,8 | -1,0 | -0,5 | - | - | ||
| 1) Pour la direction du vent θ = 0° et les angles d'inclinaison α = -5° à +45°, la pression change très rapidement entre les valeurs positives et négatives. La valeur positive et la valeur négative sont donc indiquées. Pour de telles toitures, quatre cas doivent être considérés, dans lesquels la valeur la plus petite ou la plus grande pour les zones F, G et H est combinée avec les valeurs les plus petites ou les plus grandes pour les zones I et J. Les valeurs positives et négatives ne peuvent pas être mélangées sur une surface de toiture. 2) Pour les inclinaisons de toiture comprises entre les valeurs indiquées, l'interpolation linéaire est autorisée, à condition que le signe des coefficients de pression ne change pas. Pour les inclinaisons comprises entre α = +5° et -5°, les valeurs pour les toitures-terrasses doivent être utilisées selon la norme DIN EN 1991-1-4 plus le chapitre 7.2.3 de l'Annexe nationale de l'Allemagne. La valeur zéro est donnée pour l'interpolation. | |||||||||||