Section
Distribution des contraintes
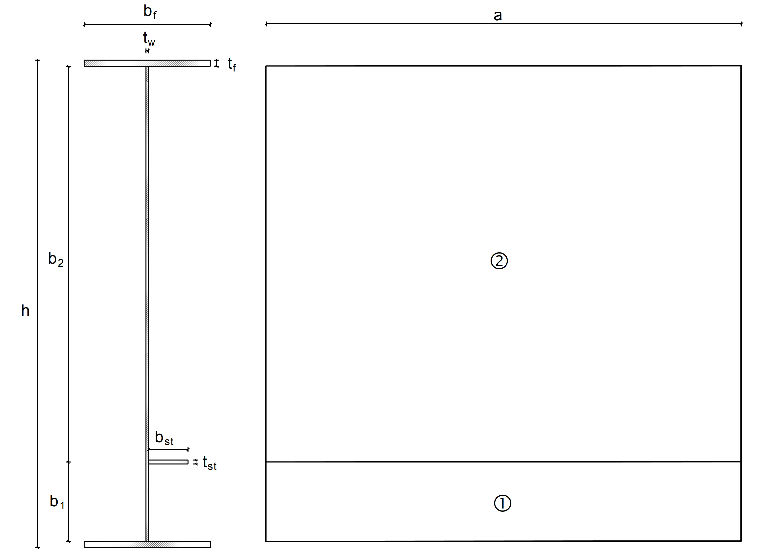
Section brute de la barre équivalente comprimée
Section brute et efficace dues au flambement local
Barre de compression équivalente et raidisseur : Espacements e1, e2
Section efficace due au flambement local et global
Paramètres de calcul
Parties de la section pour la classification
Raidisseurs
Panneaux de flambement
Résultats
Section
Distribution des contraintes
Section brute de la barre équivalente comprimée
Section brute et efficace dues au flambement local
Barre de compression équivalente et raidisseur : Espacements e1, e2
Section efficace due au flambement local et global
Paramètres de calcul
Parties de la section pour la classification
Raidisseurs
Panneaux de flambement
Résultats
30.05.2024
009113
  • SHAPE-THIN 8
  • Structures en acier
  • Analyse des contraintes
    • Analyse de stabilité
    • Eurocode 3

Section

Utilisé dans
  • Panneaux avec raidisseurs longitudinaux selon EN 1993-1-5, section 4.5
Partager
30.05.2024
009114
  • SHAPE-THIN 8
  • Structures en acier
  • Analyse des contraintes
    • Analyse de stabilité
    • Eurocode 3
Distribution des contraintes
Utilisé dans
  • Panneaux avec raidisseurs longitudinaux selon EN 1993-1-5, section 4.5
Partager
30.05.2024
009115
  • SHAPE-THIN 8
  • Structures en acier
  • Analyse des contraintes
    • Analyse de stabilité
    • Eurocode 3
Section brute de la barre équivalente comprimée
Utilisé dans
  • Panneaux avec raidisseurs longitudinaux selon EN 1993-1-5, section 4.5
Partager
30.05.2024
009116
  • SHAPE-THIN 8
  • Structures en acier
  • Analyse des contraintes
    • Analyse de stabilité
    • Eurocode 3
Section brute et efficace dues au flambement local
Utilisé dans
  • Panneaux avec raidisseurs longitudinaux selon EN 1993-1-5, section 4.5
Partager
30.05.2024
009117
  • SHAPE-THIN 8
  • Structures en acier
  • Analyse des contraintes
    • Analyse de stabilité
    • Eurocode 3
Barre de compression équivalente et raidisseur : Espacements e1, e2
Utilisé dans
  • Panneaux avec raidisseurs longitudinaux selon EN 1993-1-5, section 4.5
Partager
30.05.2024
009118
  • SHAPE-THIN 8
  • Structures en acier
  • Analyse des contraintes
    • Analyse de stabilité
    • Eurocode 3
Section efficace due au flambement local et global
Utilisé dans
  • Panneaux avec raidisseurs longitudinaux selon EN 1993-1-5, section 4.5
Partager
30.05.2024
009119
  • SHAPE-THIN 8
  • Structures en acier
  • Analyse des contraintes
    • Analyse de stabilité
    • Eurocode 3
Paramètres de calcul
Utilisé dans
  • Panneaux avec raidisseurs longitudinaux selon EN 1993-1-5, section 4.5
Partager
30.05.2024
009120
  • SHAPE-THIN 8
  • Structures en acier
  • Analyse des contraintes
    • Analyse de stabilité
    • Eurocode 3
Parties de la section pour la classification
Utilisé dans
  • Panneaux avec raidisseurs longitudinaux selon EN 1993-1-5, section 4.5
Partager
30.05.2024
009121
  • SHAPE-THIN 8
  • Structures en acier
  • Analyse des contraintes
    • Analyse de stabilité
    • Eurocode 3
Raidisseurs
Utilisé dans
  • Panneaux avec raidisseurs longitudinaux selon EN 1993-1-5, section 4.5
Partager
30.05.2024
009122
  • SHAPE-THIN 8
  • Structures en acier
  • Analyse des contraintes
    • Analyse de stabilité
    • Eurocode 3
Panneaux de flambement
Utilisé dans
  • Panneaux avec raidisseurs longitudinaux selon EN 1993-1-5, section 4.5
Partager
30.05.2024
009123
  • SHAPE-THIN 8
  • Structures en acier
  • Analyse des contraintes
    • Analyse de stabilité
    • Eurocode 3
Résultats
Utilisé dans
  • Panneaux avec raidisseurs longitudinaux selon EN 1993-1-5, section 4.5
Partager