Plaques avec raidisseurs longitudinaux selon EN 1993-1-5, section 4.5

Article technique

Avec SHAPE-THIN, il est possible de calculer les plaques avec raidisseurs longitudinaux selon la section 4.5 de l'EN 1993-1-5. Pour les plaques avec raidisseurs longitudinaux, les aires efficaces résultant du voilement local des différents panneaux secondaires entre les raidisseurs et les aires efficaces du voilement global du panneau raidi doivent être prises en compte.

L'aire de section efficace de chaque panneau secondaire est d'abord déterminée à l'aide d'un coefficient de réduction selon la section 4.4 de l'EN 1993-1-5 [1] afin de tenir compte du voilement local. La vérification du voilement global de la plaque raidie est ensuite déterminée en prenant en compte un comportement au voilement similaire à celui des celui des barres. Les largeurs efficaces des différents panneaux secondaires sont réduites à nouveau à l'aide du coefficient réducteur pour le voilement d'ensemble de la plaque raidie. On obtient ainsi une section efficace qui peut être traitée comme une section de classe 3.

Exemple

L'exemple suivant est tiré du Stahlbau-Kalender 2015 [2]. La poutre se compose d'une section en I dont l'âme est raidie par des raidisseurs transversaux et un raidisseur longitudinal. Les raidisseurs transversaux sont positionnés à 3 000 m de distance les uns des autres et le raidisseur longitudinal est soudé à 500 m de la semelle inférieure. Les soudures ne sont pas prises en compte. Une force de compression axiale NEd = 4 000 kN s'exerce.

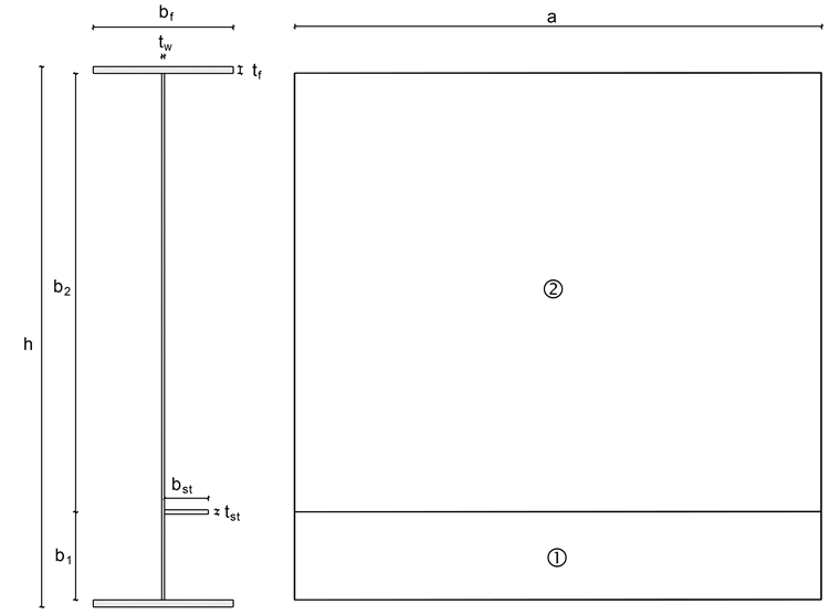
Figure 01 - Section

Matériau :
S355 J0
fy = 35,5 kN/cm² (pour t ≤ 3 mm et t ≤ 16 mm)
fy = 34,5 kN/cm² (pour t >16 mm et t ≤ 40 mm)
E = 21 000 kN/cm²
G = 8 076,92 kN/cm²
γM0 = 1,0

a = 3 000 mm
b1 = 500 mm
b2 = 2 500 mm
bf = 800 mm
bst = 250 mm
tw = 15 mm
tf = 40 mm
tst = 25 mm
h = 3 080 mm

Section transversale brute et répartition des contraintes 

Les contraintes sont calculées comme suit :

${\mathrm\sigma}_1\;=\;{\mathrm\sigma}_\mathrm{sl}\;=\;{\mathrm\sigma}_2\;=\;\frac{{\mathrm N}_\mathrm{Ed}}{\mathrm A}\;=\;\frac{4 000}{1 152,5}\;=\;3,47\;\mathrm{kN}/\mathrm{cm}²$

La section transversale brute et la répartition des contraintes sont indiquées sur la Figure 02.

Figure 02 - Répartition des contraintes

Classification de la section

Lors de la classification d'une section, il doit être déterminé si l'analyse du voilement des panneaux secondaires est nécessaire. Si un panneau secondaire est une section de classe 3 au moins, le voilement local ne s'applique pas.

Semelle

$\begin{array}{l}{\mathrm c}_\mathrm f\;=\;\frac{{\mathrm b}_\mathrm f\;-\;{\mathrm t}_\mathrm w}2\;=\;\frac{800\;-\;15}2\;=\;392,5\;\mathrm{mm}\\\frac{\displaystyle{\mathrm c}_\mathrm f}{\displaystyle{\mathrm t}_\mathrm f}\;=\;\frac{\displaystyle392,5}{\displaystyle40}\;=\;9,8\end{array}$

Le rapport λi de c/t maximal est déterminé selon le Tableau 5.2. de l'EN 1993-1-1 [3]

$\begin{array}{l}\mathrm\varepsilon\;=\;\sqrt{235\;/\;{\mathrm f}_\mathrm y}\;=\;\sqrt{235\;/\;345}\;=\;0,825\\{\mathrm\lambda}_1\;=\;9\;\cdot\;\mathrm\varepsilon\;=\;9\;\cdot\;0,825\;=\;7,4\;<\;\frac{{\mathrm c}_\mathrm f}{{\mathrm t}_\mathrm f}\;=\;9,8\\{\mathrm\lambda}_2\;=\;10\;\cdot\;\mathrm\varepsilon\;=\;10\;\cdot\;0,825\;=\;8,2\;<\;\frac{{\mathrm c}_\mathrm f}{{\mathrm t}_\mathrm f}\;=\;9,8\\{\mathrm\lambda}_3\;=\;14\;\cdot\;\mathrm\varepsilon\;=\;14\;\cdot\;0,825\;=\;11,6\;>\;\frac{{\mathrm c}_\mathrm f}{{\mathrm t}_\mathrm f}\;=\;9,8\end{array}$

La semelle doit être assignée à une section de classe 3. Ainsi, le voilement local ne s'exerce pas et il n'est donc pas nécessaire de réduire les panneaux secondaires de la semelle.

Âme

$\begin{array}{l}{\mathrm c}_1\;=\;{\mathrm b}_1\;-\;\frac{{\mathrm t}_\mathrm{st}}2\;=\;500\;-\;\frac{25}2\;=\;487,5\;\mathrm{mm}\\\frac{\displaystyle{\mathrm c}_1}{\displaystyle{\mathrm t}_\mathrm w}\;=\;\frac{\displaystyle487,5}{\displaystyle15}\;=\;32,5\end{array}$

Le rapport λi de c/t maximal est déterminé selon le Tableau 5.2 de [3].

$\begin{array}{l}\mathrm\varepsilon\;=\;\sqrt{235\;/\;{\mathrm f}_\mathrm y}\;=\;\sqrt{235\;/\;355}\;=\;0,814\\{\mathrm\lambda}_1\;=\;33\;\cdot\;\mathrm\varepsilon\;=\;33\;\cdot\;0,814\;=\;26,8\;<\;\frac{{\mathrm c}_1}{{\mathrm t}_\mathrm w}\;=\;32,5\\{\mathrm\lambda}_2\;=\;38\;\cdot\;\mathrm\varepsilon\;=\;38\;\cdot\;0,814\;=\;30,9\;<\;\frac{{\mathrm c}_1}{{\mathrm t}_\mathrm w}\;=\;32.5\\{\mathrm\lambda}_3\;=\;42\;\cdot\;\mathrm\varepsilon\;=\;42\;\cdot\;0,814\;=\;34,2\;>\;\frac{{\mathrm c}_1}{{\mathrm t}_\mathrm w}\;=\;32,5\end{array}$

La plaque 1 doit être assignée à une section de classe 3. Ainsi, le voilement local ne s'exerce pas et il n'est donc pas nécessaire de réduire cette plaque.

$\begin{array}{l}{\mathrm c}_2\;=\;{\mathrm b}_2\;-\;\frac{{\mathrm t}_\mathrm{st}}2\;=\;2 500\;-\;\frac{25}2\;=\;2 487,5\;\mathrm{mm}\\\frac{\displaystyle{\mathrm c}_2}{\displaystyle{\mathrm t}_\mathrm w}\;=\;\frac{\displaystyle2 487,5}{\displaystyle15}\;=\;165,8\end{array}$

Le rapport λi de c/t maximal est déterminé selon le Tableau 5.2 de [3].

$\begin{array}{l}\mathrm\varepsilon\;=\;\sqrt{235\;/\;{\mathrm f}_\mathrm y}\;=\;\sqrt{235\;/\;355}\;=\;0,814\\{\mathrm\lambda}_1\;=\;33\;\cdot\;\mathrm\varepsilon\;=\;33\;\cdot\;0,814\;=\;26,8\;<\;\frac{{\mathrm c}_2}{{\mathrm t}_\mathrm w}\;=\;165,8\\{\mathrm\lambda}_2\;=\;38\;\cdot\;\mathrm\varepsilon\;=\;38\;\cdot\;0,814\;=\;30,9\;<\;\frac{{\mathrm c}_2}{{\mathrm t}_\mathrm w}\;=\;165,8\\{\mathrm\lambda}_3\;=\;42\;\cdot\;\mathrm\varepsilon\;=\;42\;\cdot\;0,814\;=\;34,2\;<\;\frac{{\mathrm c}_2}{{\mathrm t}_\mathrm w}\;=\;165,8\end{array}$

La plaque 2 doit être assignée à une section de classe 4. Ainsi, le voilement local s'exerce sur cette plaque et il est donc nécessaire de réduire celle-ci.

Raidisseur

$\begin{array}{l}{\mathrm b}_\mathrm{st}\;=\;250\;\mathrm{mm}\\\frac{\displaystyle{\mathrm b}_\mathrm{st}}{\displaystyle{\mathrm t}_\mathrm{st}}\;=\;\frac{\displaystyle250}{\displaystyle25}\;=\;10\end{array}$

Le rapport λi de c/t maximal est déterminé selon le Tableau 5.2 de [3].

$\begin{array}{l}\mathrm\varepsilon\;=\;\sqrt{235\;/\;{\mathrm f}_\mathrm y}\;=\;\sqrt{235\;/\;345}\;=\;0,825\\{\mathrm\lambda}_1\;=\;9\;\cdot\;\mathrm\varepsilon\;=\;9\;\cdot\;0,825\;=\;7,4\;<\;\frac{\displaystyle{\mathrm b}_\mathrm{st}}{\displaystyle{\mathrm t}_\mathrm{st}}\;=\;10\\{\mathrm\lambda}_2\;=\;10\;\cdot\;\mathrm\varepsilon\;=\;10\;\cdot\;0,825\;=\;8,2\;<\;\frac{\displaystyle{\mathrm b}_\mathrm{st}}{\displaystyle{\mathrm t}_\mathrm{st}}\;=\;10\\{\mathrm\lambda}_3\;=\;14\cdot\;\mathrm\varepsilon\;=\;14\;\cdot0.825\;=\;11,6\;>\;\frac{\displaystyle{\mathrm b}_\mathrm{st}}{\displaystyle{\mathrm t}_\mathrm{st}}\;=\;10\end{array}$

L'âme doit être assignée à une section de classe 3. Ainsi, le voilement local ne s'exerce pas et il n'est donc pas nécessaire de réduire cette plaque.

Largeurs efficaces

La plaque 1 est assignée à une section de classe 3, le voilement local ne s'applique donc pas. Les valeurs efficaces de la section correspondent à celle de la section transversale brute. Selon le Tableau 4.1 de [1], les largeurs efficaces suivantes en résultent :

$\begin{array}{l}{\mathrm b}_{1,\mathrm{eff}}\;=\;{\mathrm c}_1\;=\;487,5\;\mathrm{mm}\\{\mathrm b}_{1,\mathrm{edge},\mathrm{eff}}\;=\;{\mathrm b}_{1,\mathrm{edge}}\;=\;0,5\;\cdot\;{\mathrm c}_1\;=\;0,5\;\cdot\;487,5\;=\;243,8\;\mathrm{mm}\\{\mathrm b}_{1,\inf,\mathrm{eff}}\;=\;{\mathrm b}_{1,\inf}\;=\;0,5\;\cdot\;{\mathrm c}_1\;=\;0,5\;\cdot\;487,5\;=\;243,8\;\mathrm{mm}\end{array}$

La plaque 2 est assignée à une section de classe 4, le voilement local s'applique donc. Les largeurs efficaces de la plaque 2 doivent être déterminées selon [1], section 4.4.

La répartition des contraintes au niveau de la plaque 2 est uniforme. Il en résulte le rapport de contraintes ψ = 1 et, selon le Tableau 4.1, une valeur de voilement kσ= 4.0. Pour l'élancement ${\overline{\mathrm\lambda}}_{\mathrm p2}$, on obtient le résultat suivant selon la section 4.4 (2) de [1] :

${\overline{\mathrm\lambda}}_{\mathrm p2}\;=\;\frac{\displaystyle\frac{{\mathrm c}_2}{{\mathrm t}_\mathrm w}}{28,4\;\cdot\;\mathrm\varepsilon\;\cdot\;\sqrt{{\mathrm k}_\mathrm\sigma}}\;=\;\frac{165,8}{28,4\;\cdot\;0,814\;\cdot\;\sqrt4}\;=\;3,588$$>\;0,5\;+\;\sqrt{0.085\;-\;0,055\;\cdot\;\mathrm\psi}$
 $>\;0,5\;+\;\sqrt{0.085\;-\;0.055\;\cdot\;1}\;=\;0,673$

Le facteur ρ de réduction locale est déterminé selon l'Équation (4.2) de [1] :

${\mathrm\rho}_2\;=\;\frac{{\overline{\mathrm\lambda}}_{\mathrm p2}\;-\;0.055\;\cdot\;\left(3\;+\;\mathrm\psi\right)}{\overline{\mathrm\lambda}_{\mathrm p2}^2}\;=\;\frac{3,588\;-\;0,055\;\cdot\;\left(3\;+\;1\right)}{3,588^2}\;=\;0,262\;<\;1$

Les largeurs efficaces de la plaque 2 sont calculées selon le Tableau 4.1 de [1], en prenant en compte le voilement local :

$\begin{array}{l}{\mathrm b}_{2,\mathrm{eff}}\;=\;{\mathrm\rho}_2\;\cdot\;{\mathrm c}_2\;=\;0,262\;\cdot\;2 487,5\;=\;650,7\;\mathrm{mm}\\{\mathrm b}_{2,\mathrm{edge},\mathrm{eff}}\;=\;0,5\;\cdot\;{\mathrm b}_{2,\mathrm{eff}}\;=\;0,5\;\cdot\;650,7\;=\;325,4\;\mathrm{mm}\\{\mathrm b}_{2,\sup,\mathrm{eff}}\;=\;0,5\;\cdot\;{\mathrm b}_{2,\mathrm{eff}}\;=\;0,5\;\cdot\;650,7\;=\;325,4\;\mathrm{mm}\end{array}$

Avec les largeurs de la section transversale brute, on obtient :

$\begin{array}{l}{\mathrm b}_{2,\mathrm{edge}}\;=\;0,5\;\cdot\;{\mathrm c}_2\;=\;0,5\;\cdot\;2 487,5\;=\;1 243,8\;\mathrm{mm}\\{\mathrm b}_{2,\sup}\;=\;0,5\;\cdot\;{\mathrm c}_2\;=\;0,5\;\cdot\;2 487,5\;=\;1 243,8\;\mathrm{mm}\end{array}$

Comportement des plaques

La contrainte critique de flambement du raidisseur σcr,sl est calculée selon l'Annexe A.2.2 de [1]. Il faut tout d'abord calculer la longueur efficace de la plaque raidie ac :

${\mathrm a}_\mathrm c\;=\;4,33\;\cdot\;\sqrt[4]{\frac{{\mathrm I}_{\mathrm{sl},1}\;\cdot\;\mathrm b_1^2\;\cdot\;\mathrm b_2^2}{\mathrm t^3\;\cdot\;\mathrm b}}\;=\;4,33\;\cdot\;\sqrt[4]{\frac{11 900\;\cdot\;50^2\;\cdot\;250^2}{1,5^3\;\cdot\;\left(50\;+\;250\right)}}\;=\;896,4\;\mathrm{cm}\;>\;\mathrm a\;=\;300\;\mathrm{cm}$

La contrainte critique de flambement du raidisseur σcr,sl se traduit comme suit lorsque a < ac :

$\begin{array}{l}{\mathrm\sigma}_{\mathrm{cr},\mathrm{sl}}\;=\;\frac{\mathrm\pi^2\;\cdot\;\mathrm E\;\cdot\;{\mathrm I}_{\mathrm{sl},1}}{{\mathrm A}_{\mathrm{sl},1}\;\cdot\;\mathrm a^2}\;+\;\frac{\mathrm E\;\cdot\;\mathrm t^3\;\cdot\;\mathrm b\;\cdot\;\mathrm a^2}{4\;\cdot\;\mathrm\pi^2\;\cdot\;\left(1\;-\;\mathrm\nu^2\right)\;\cdot\;{\mathrm A}_{\mathrm{sl},1}\;\cdot\;\mathrm b_1^2\;\cdot\;\mathrm b_2^2}\;\mathrm{pour}\;\mathrm a\;<\;{\mathrm a}_\mathrm c\\{\mathrm\sigma}_{\mathrm{cr},\mathrm{sl}}\;=\;\frac{\mathrm\pi^2\;\cdot\;21 000\;\cdot\;11 900}{289,4\;\cdot\;300^2}+\frac{21,000\;\cdot\;1,5^3\;\cdot\;\left(50\;+\;250\right)\;\cdot\;300^2}{4\;\cdot\;\mathrm\pi^2\;\cdot\;\left(1\;-\;0.3^2\right)\;\cdot\;289,4\;\cdot\;50^2\;\cdot\;250^2}\;=\;95,9\;\mathrm{kN}/\mathrm{cm}^2\end{array}$

Isl,1 et Asl,1 représentent ici l’inertie de la section brute et l'aire brute de la section transversale de la barre comprimée conformément à [1], A.2.1 (2) par rapport à la flexion hors plan de la plaque alors que b1 et b2 sont les distances entre les raidisseurs et les bords longitudinaux (b1 + b2 = b).

La répartition des contraintes est uniforme. Par conséquent, la contrainte critique de voilement σcr,p correspond à la contrainte critique de flambement σcr,sl.

${\mathrm\sigma}_{\mathrm{cr},\mathrm p}\;=\;{\mathrm\sigma}_{\mathrm{cr},\mathrm{sl}}\;=\;95,9\;\mathrm{kN}/\mathrm{cm}^2$

Figure 03 - Barre équivalente comprimée de la section transversale brute

L'aire de la section transversale brute Ac de la plaque avec raidisseurs longitudinaux (en négligeant les plaques de bordure soutenues par un composant de plaque adjacent) et l'aire de la section efficace Ac,eff,loc,p de l'aire décrite ci-dessus sont calculées comme suit :

${\mathrm A}_\mathrm c\;=\;\left({\mathrm b}_{1,\inf}\;+\;{\mathrm b}_{2,\sup}\;+\;{\mathrm t}_\mathrm{st}\right)\;\cdot\;{\mathrm t}_\mathrm w\;+\;{\mathrm b}_\mathrm{st}\;\cdot\;{\mathrm t}_\mathrm{st}\;=\;\left(24,38\;+\;124,38\;+\;2,5\right)\;\cdot\;1,5\;+\;25\;\cdot\;2,5\;=\;289,4\;\mathrm{cm}^2$

Le raidisseur est assigné à une section de classe 3. Ainsi, l'aire de la section efficace du raidisseur correspond à l'aire de la section transversale brute du raidisseur.

${\mathrm A}_{\mathrm c,\mathrm{eff},\mathrm{loc},\mathrm p}\;=\;\left({\mathrm b}_{1,\inf,\mathrm{eff}}\;+\;{\mathrm b}_{2,\sup,\mathrm{eff}}\;+\;{\mathrm t}_\mathrm{st}\right)\;\cdot\;{\mathrm t}_\mathrm w\;+\;{\mathrm b}_{\mathrm{st},\mathrm{eff}}\;\cdot\;{\mathrm t}_\mathrm{st}\;=\;\left(24,38\;+\;32,54\;+\;2,5\right)\;\cdot\;1,5\;+\;25\;\cdot\;2,5\;=\;151,6\;\mathrm{cm}^2$

Les valeurs de la section sont indiquées sur la Figure 04.

Figure 04 - Section transversale brute et efficace due au voilement local

Le facteur de réduction βa,c,p est calculé comme suit selon la section 4.5.2 de [1] :

$\begin{array}{l}{\mathrm\beta}_{\mathrm a,\mathrm c,\mathrm p}\;=\;\frac{{\mathrm A}_{\mathrm c,\mathrm{eff},\mathrm{loc},\mathrm p}}{{\mathrm A}_\mathrm c}\\{\mathrm\beta}_{\mathrm a,\mathrm c,\mathrm p}\;=\;\frac{151,6}{289,4}\;=\;0,524\end{array}$

Selon l'Équation (4.7) de [1], on obtient l'élancement réduit ${\overline{\mathrm\lambda}}_\mathrm p$ de la plaque avec raidisseurs comme suit :

${\overline{\mathrm\lambda}}_\mathrm p\;=\;\sqrt{\frac{{\mathrm\beta}_{\mathrm a,\mathrm c,\mathrm p}\;\cdot\;{\mathrm f}_\mathrm y}{{\mathrm\sigma}_{\mathrm{cr},\mathrm p}}}=\sqrt{\frac{0,524\;\cdot\;35,5}{95,9}}\;=\;0,440$$<\;0,5\;+\;\sqrt{0,085\;-\;0,055\;\cdot\;\mathrm\psi}$
 $<\;0,5\;+\;\sqrt{0,085\;-\;0,055\;\cdot\;1}\;=\;0,673$

L'élancement ${\overline{\mathrm\lambda}}_\mathrm p$ est inférieur à la valeur limite 0,673 selon [1], 4.4 (2). Par conséquent, aucune réduction due au comportement de la plaque n'est nécessaire, c'est-à-dire que ρp = 1,0.

Comportement du voilement de plaque

La contrainte critique de flambement σcr,c est déterminée selon la section 4.5.3 (3) de [1]. La contrainte critique de flambement σcr,c,sl du raidisseur positionné le plus proche du bord le plus comprimé est d'abord déterminée selon l'Équation (4.9) de [1].

${\mathrm\sigma}_{\mathrm{cr},\mathrm c,\mathrm{sl}}\;=\;\frac{\mathrm\pi^2\;\cdot\;\mathrm E\;\cdot\;{\mathrm I}_\mathrm{sl}}{{\mathrm A}_\mathrm{sl}\;\cdot\;\mathrm a^2}\;=\;\frac{\mathrm\pi^2\;\cdot\;21 000\;\cdot\;11 900}{289,4\;\cdot\;300^2}\;=\;94,7\;\mathrm{kN}/\mathrm{cm}^2$

La répartition des contraintes est uniforme. La contrainte critique de flambement σcr,c correspond donc à la contrainte critique de flambement σcr,c,sl du raidisseur positionné le plus proche du bord le plus comprimé.

σcr,c = σcr,c,sl = 94,7 kN/cm²

Le facteur de réduction βa,c,p est calculé comme suit selon la section 4.5.3 (4) de [1] :

${\mathrm\beta}_{\mathrm a,\mathrm c,\mathrm c}\;=\;\frac{{\mathrm A}_{\mathrm{sl},\mathrm{eff}}}{{\mathrm A}_\mathrm{sl}}\;=\;\frac{151,6}{289,4}\;=\;0,524$

Selon l'Équation (4.11) de [1], on obtient l'élancement ${\overline{\mathrm\lambda}}_\mathrm c$ de la barre comprimée comme suit :

${\overline{\mathrm\lambda}}_\mathrm c\;=\;\sqrt{\frac{{\mathrm\beta}_{\mathrm a,\mathrm c,\mathrm c}\;\cdot\;{\mathrm f}_\mathrm y}{{\mathrm\sigma}_{\mathrm{cr},\mathrm c}}}\;=\;\sqrt{\frac{0,524\;\cdot\;35,5}{94,7}}\;=\;0,443$

Selon la section 4.5.3 (5) de [1], le rayon de giration i est calculé comme suit :

$\mathrm i\;=\;\sqrt{\frac{{\mathrm I}_\mathrm{sl}}{{\mathrm A}_\mathrm{sl}}}\;=\;\sqrt{\frac{11 900}{28,4}}\;=\;6,41\;\mathrm{cm}$

La distance e est la plus grande des deux distances selon la Figure A.1 de [1] : soit la distance e1 du centre de gravité du raidisseur à l'axe neutre de l'élément comprimé efficace, ou la distance e2 du centre de gravité de la plaque jusqu'à l'axe neutre de l'élément comprimé efficace. Ces distances sont indiquées sur la Figure 05.

Figure 05 - Barre comprimée équivalente et raidisseur : distances e1, e2

e = max (e1, e2) = max (10,39 cm, 2,86 cm) = 10,39 cm

Le facteur d'imperfection αe est déterminé comme suit selon l'Équation (4.12) de [1] avec α = 0,49 pour les sections ouvertes avec raidisseurs :

${\mathrm\alpha}_\mathrm e\;=\;\mathrm\alpha\;+\;\frac{0,09}{\mathrm i\;/\;\mathrm e}\;=\;0,49\;+\;\frac{0,09}{6,41\;/\;10,39}\;=\;0,636$

Le facteur de réduction χc est déterminé selon [3], 6.3.1.2 :

$\begin{array}{l}\mathrm\phi\;=\;0,5\;\cdot\;\left(1,0\;+\;{\mathrm\alpha}_\mathrm e\;\cdot\;\left({\overline{\mathrm\lambda}}_\mathrm c\;-\;0,2\right)\;+\;\overline{\mathrm\lambda}_\mathrm c^2\right)\;=\;0,5\;\cdot\;\left(1,0\;+\;0,636\;\cdot\;\left(0,443\;-\;0,2\right)\;+\;0,443^2\right)\;=\;0,675\\{\mathrm\chi}_\mathrm c\;=\;\frac1{\mathrm\phi\;+\;\sqrt{\mathrm\phi^2\;-\;\overline{\mathrm\lambda}_\mathrm c^2}}\;=\;\frac1{0,675\;+\;\sqrt{0,675^2\;-\;0,443^2}}\;=\;0,844\;<\;1\end{array}$

Interpolation entre le voilement de plaque et le flambement

Le comportement structurel de la plaque entière est déterminé à l'aide du facteur ξ, selon la Section 4.5.4 (1) [1] :

$\begin{array}{l}\mathrm\xi\;=\;\frac{{\mathrm\sigma}_{\mathrm{cr},\mathrm p}}{{\mathrm\sigma}_{\mathrm{cr},\mathrm c}}\;-\;1\;\mathrm{but}\;0\;\leq\;\mathrm\xi\;\leq\;1\\\mathrm\xi\;=\;\frac{95,9}{94,7}\;-\;1\;=\;0,013\end{array}$

Le coefficent de réduction final ρc est déterminé à l'aide de l'équation d'interpolation selon l'Équation (4.13) [1] :

${\mathrm\rho}_\mathrm c\;=\;({\mathrm\rho}_\mathrm p\;-\;{\mathrm\chi}_\mathrm c)\;\cdot\;\mathrm\xi\;\cdot\;(2\;-\;\mathrm\xi)\;+\;{\mathrm\chi}_\mathrm c\;=\;\left(1\;-\;0,844\right)\;\cdot\;0,013\;\cdot\;\left(2\;-\;0,013\right)\;+\;0,844\;=\;0,848$

Valeurs des aires de section efficaces

L'aire de la section efficace de la zone comprimée Ac,eff de la plaque raidie est calculée selon l'Équation (4.5) de [1] :

${\mathrm A}_{\mathrm c,\mathrm{eff}}\;=\;{\mathrm\rho}_\mathrm c\;\cdot\;{\mathrm A}_{\mathrm c,\mathrm{eff},\mathrm{loc},\mathrm p}\;+\;{\textstyle\sum}{\mathrm b}_{\mathrm{edge},\mathrm{eff}}\;\cdot\;\mathrm t\;=\;0,848\;\cdot\;151,6\;+\;24,38\;\cdot\;1,5\;+\;32,54\;\cdot\;1,5\;=\;214,1\;\mathrm{cm}²$

L'aire de la section efficace Aeff  est :

${\mathrm A}_\mathrm{eff}\;=\;{\mathrm A}_{\mathrm c,\mathrm{eff}}\;+\;2\;\cdot\;{\mathrm b}_\mathrm f\;\cdot\;{\mathrm t}_\mathrm f\;=\;214,1\;+\;2\;\cdot\;80\;\cdot\;4\;=\;854,1\;\mathrm{cm}²$

Figure 06 - Section efficace due au voilement local et global

Calcul des plaques avec raidisseurs

Les axes du centre de gravité de la section transversale brute et de la section efficace ne coïncident pas. Les moments fléchissants agissants additionnels dus au déplacement de l'axe du centre de gravité de la section efficace lié à l'axe du centre de gravité de la section brute doivent donc être pris en compte. Ces moments fléchissants additionnels sont calculés comme suit :

$\begin{array}{l}{\mathrm e}_\mathrm y\;=\;0,82\;-\;0,72\;=\;0,10\;\mathrm{cm}\\{\mathrm e}_\mathrm z\;=\;164,97\;-\;157,42\;=\;7,55\;\mathrm{cm}\\{\mathrm M}_\mathrm y\;=\;\mathrm N\;\cdot\;{\mathrm e}_\mathrm z\;=\;\:4 000\;\cdot\;7,55\;=\;30 202,4\;\mathrm{kNcm}\\{\mathrm M}_\mathrm z\;=\;\mathrm N\;\cdot\;{\mathrm e}_\mathrm y\;=\;-4 000\;\cdot\;0,10\;=\;-414,3\;\mathrm{kNcm}\\{\mathrm M}_\mathrm u\;=\;30 203,7\;\mathrm{KNcm}\\{\mathrm M}_\mathrm v\;=\;-306,4\;\mathrm{KNcm}\end{array}$

La contrainte maximale est la suivante :

${\mathrm\sigma}_\mathrm{eff}\;=\;\frac{\mathrm N}{{\mathrm A}_\mathrm{eff}}\;+\;\frac{{\mathrm M}_\mathrm u\;\cdot\;{\mathrm e}_\mathrm v}{{\mathrm I}_{\mathrm u,\mathrm{eff}}}\;-\;\frac{{\mathrm M}_\mathrm v\;\cdot\;{\mathrm e}_\mathrm u}{{\mathrm I}_{\mathrm v,\mathrm{eff}}}\;=\;\frac{4 000}{854,1}\;+\;\frac{30 203,7\;\cdot\;165,12}{17 466 764}\;-\;\frac{-306,4\;\cdot\;40,23}{352 626}\;=\;5,01\;\mathrm{kN}/\mathrm{cm}²$

Le calcul est effectué comme suit selon l'Équation (4.15) de [1] :

${\mathrm\eta}_1\;=\;\frac{{\mathrm\sigma}_\mathrm{eff}}{\displaystyle\frac{{\mathrm f}_\mathrm y}{{\mathrm\gamma}_{\mathrm M0}}}\;=\;\frac{5,01}{\displaystyle\frac{34,5}{1,0}}\;=\;0,15$

Calcul du flambement par torsion

Selon la Section 9.2.1 (8) de [1], le critère suivant doit être respecté de manière générale pour éviter le flambement par torsion des raidisseurs à sections ouvertes :

$\begin{array}{l}{\mathrm\eta}_1\;=\;\frac{5,3\;\cdot\;{\mathrm f}_\mathrm y\;\cdot\;{\mathrm I}_\mathrm p}{\mathrm E\;\cdot\;{\mathrm I}_{\mathrm{St}.\;\mathrm{Ven}}}\;\leq\;1\\{\mathrm\eta}_1\;=\;\frac{5,3\;\cdot\;34,5\;\cdot\;13 053}{21 000\;\cdot\;122}\;=\;0,93\;\leq\;1\end{array}$

Ip et ISt.Ven décrivent le moment d'inertie polaire et l'inertie de torsion de Saint-Venant du raidisseur seul, calculé par rapport au bord fixé à la plaque.

Si la rigidité de gauchissement est prise en compte, la contrainte de voilement critique par torsion σcr doit d'abord être déterminée. Celle-ci est calculée selon les Équations (2.119) et (2.120) de [4] comme suit :

$\begin{array}{l}{\mathrm\sigma}_{\mathrm{cr}1}\;=\;\frac1{{\mathrm I}_\mathrm p}\;\cdot\;\left(\frac{\mathrm\pi^2\;\cdot\;\mathrm E\;\cdot\;{\mathrm I}_\mathrm\omega}{\mathrm l^2}\;+\;\mathrm G\;\cdot\;{\mathrm I}_{\mathrm{St}.\;\;\mathrm{Ven}}\right)\;\mathrm{for}\;\mathrm l\;<\;\mathrm L\;_\mathrm{cr}\\{\mathrm\sigma}_{\mathrm{cr}2}\;=\;\frac1{{\mathrm I}_\mathrm p}\;\cdot\;\left(2\;\cdot\;\sqrt{{\mathrm C}_\mathrm\theta\;\cdot\;\mathrm E\;\cdot\;{\mathrm I}_\mathrm\omega}\;+\;\mathrm G\;\cdot\;{\mathrm I}_{\mathrm{St}.\;\;\mathrm{Ven}}\right)\;\mathrm{for}\;\mathrm l\;>\;{\mathrm L}_\mathrm{cr}\end{array}$

La rigidité présente une constante de gauchissement Iω = 0 cm6. La critique de flambement par torsion σcr est alors simplifiée comme suit :

$\begin{array}{l}{\mathrm\sigma}_{\mathrm{cr}1}\;=\;{\mathrm\sigma}_{\mathrm{cr}2}\;=\;\frac1{{\mathrm I}_\mathrm p}\;\cdot\;\mathrm G\;\cdot\;{\mathrm I}_{\mathrm{St}.\;\;\mathrm{Ven}}\\{\mathrm\sigma}_{\mathrm{cr}1}\;=\;{\mathrm\sigma}_{\mathrm{cr}2}\;=\;\frac1{13 053}\;\cdot\;8 077\;\cdot\;122\;=\;75,5\;\mathrm{kN}/\mathrm{cm}²\end{array}$

Ip and ISt.Ven décrivent le moment d'inertie polaire et l'inertie de torsion de Saint-Venant du raidisseur seul, calculé au niveau du point de raccord avec la plaque.

Selon la Section 9.2.1 (9) de [1], le critère dans 9.2.1(8) ou le critère suivant ne doit généralement pas être négligé lorsque l’on tient compte de la rigidité au gauchissement :

$\begin{array}{l}{\mathrm\eta}_2\;=\;\frac{\mathrm\theta\;\cdot\;{\mathrm f}_\mathrm y}{{\mathrm\sigma}_{\mathrm{cr}1}}\;\leq\;1\\{\mathrm\eta}_3\;=\;\frac{\mathrm\theta\;\cdot\;{\mathrm f}_\mathrm y}{{\mathrm\sigma}_{\mathrm{cr}2}}\;\leq\;1\end{array}$

À l'aide d'un facteur assurant le comportement élastique selon la section de classe 3 d'après [5] équivalant à θ = 2 f pour les raidisseurs présentant une faible rigidité au gauchissement (une barre plate ou un acier plat à boudin), on obtient :

${\mathrm\eta}_2\;=\;{\mathrm\eta}_3\;=\;\frac{2\;\cdot\;34,5}{75.5}\;=\;0,91\;\leq\;1$

La vérification du voilement de la plaque est donc achevée.

SHAPE-THIN

Avec SHAPE-THIN, il est possible de calculer les plaques avec raidisseurs longitudinaux selon la section 4.5 de [1]. Le panneau de commande « Parties c/t et propriétés efficaces des sections » doit être activé dans les données générales. Il faut ensuite sélectionner « EN 1993-1-1 et EN 1993-1-5 » dans les paramètres de calcul. Le panneau de commande « Section efficace selon EN 1993-1-5, section 4.5 » doit également être sélectionné. Les largeurs efficaces doivent être déterminées par un processus itératif selon la Section 4.4 (3) de [1]. Dans cet exemple, une seule itération doit être utilisée pour le calcul dans SHAPE-THIN (voir la Figure 07).

Figure 07 - Paramètres de calcul

Les éléments de la section doivent d'abord avoir été saisis. Les parties c/t sont habituellement générées automatiquement en fonction des conditions géométriques. Elles peuvent cependant être définies par l'utilisateur dans le Tableau « 1.7 Partie de la section pour la classification selon EN 1993-1 » (voir la Figure 08) ou dans la boîte de dialogue correspondante.

Figure 08 - Parties de la section pour la classification

Les raidisseurs peuvent être définis dans le Tableau « 1.8 Raidisseurs » ou dans la boîte de dialogue correspondante (voir la Figure 09).

Figure 09 - Raidisseurs

De plus, la plaque raidie doit être spécifiée dans le Tableau « 1.9 Plaques raidies » (voir la Figure 10) ou la boîte de dialogue correspondante. Les éléments du panneau raidi doivent être sélectionnés et la distance des raidisseurs transversaux doit être saisie. Si aucune distance n'est définie pour les raidisseurs transversaux, la valeur a = 10 000 mm est appliquée pour le calcul. Les raidisseurs situés dans la plaque raidie sont automatiquement identifiés. Les extrémités de la plaque raidie doivent être soutenues, ce qui signifie qu'un appui est nécessaire.

Figure 10 - Plaques avec raidisseurs

Les résultats de la section efficace peuvent être affichés à l'aide du bouton « Longueurs efficaces ».

Figure 11 - Résultats

Mots-Clés

Voilement de panneau secondaire Voilement du panneau raidi

Littérature

[1]   Eurocode 3: Design of steel structures - Part 1-5: General rules - Plated structural elements; EN 1993-1-5:2006 + AC:2009
[2]   Kuhlmann, U.: Stahlbau-Kalender 2015 - Eurocode 3 - Grundnorm, Leichtbau. Berlin: Ernst & Sohn, 2015
[3]   Eurocode 3: Design of steel structures - Part 1‑1: General rules and rules for buildings; EN 1993‑1‑1:2010‑12
[4]   Beg, D.; Kuhlmann, U.; Davaine, L.; Braun, B.: Design of Plated Structures. Eurocode 3: Design of Steel Structures. Part 1-5 Design of Plated Structures. Berlin: Ernst & Sohn, 2011
[5]   Johansson, B.; Maquoi, R.; Sedlacek, G.; Müller, C.; Beg, D.: Commentary and Worked Examples to EN 1993-1-5, Plated Structural Elements. Luxemburg: Office for Official Publications of the European Communities, 2007

Téléchargements

Liens

Propriétés de sections Sections à parois minces
SHAPE-THIN 8.xx

Logiciel pour les sections

Propriétés de section, analyses des contraintes et vérification plastique des sections ouvertes et fermées à parois minces

Prix de la première licence
1 000,00 EUR
;