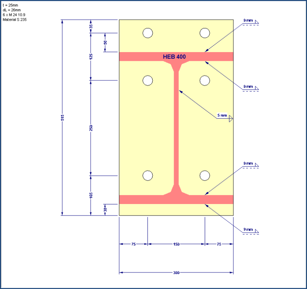
Exemple de calcul
Paramètres des longueurs efficaces (Source : [1])
Détermination de la valeur α (Source: [1])
Capacités portantes des rangées de boulons et des bras de levier correspondants
État limite ultime dans RF-/FRAME-JOINT Pro
Exemple de calcul
Paramètres des longueurs efficaces (Source : [1])
Détermination de la valeur α (Source: [1])
Capacités portantes des rangées de boulons et des bras de levier correspondants
État limite ultime dans RF-/FRAME-JOINT Pro
30.05.2024
009326
  • RFEM 5
  • RSTAB 8
  • RF-FRAME-JOINT Pro 5
    • FRAME-JOINT Pro 8
    • Structures en acier
    • Connexions métalliques
    • Eurocode 3

Exemple de calcul

Utilisé dans
  • Exemple de calcul d’une attache rigide par platine d’about selon EN 1993-1-8
Partager
30.05.2024
009327
  • RFEM 5
  • RSTAB 8
  • RF-FRAME-JOINT Pro 5
    • FRAME-JOINT Pro 8
    • Structures en acier
    • Connexions métalliques
    • Eurocode 3
Paramètres des longueurs efficaces (Source : [1])
Utilisé dans
  • Exemple de calcul d’une attache rigide par platine d’about selon EN 1993-1-8
Partager
30.05.2024
009328
  • RFEM 5
  • RSTAB 8
  • RF-FRAME-JOINT Pro 5
    • FRAME-JOINT Pro 8
    • Structures en acier
    • Connexions métalliques
    • Eurocode 3
Détermination de la valeur α (Source: [1])
Utilisé dans
  • Exemple de calcul d’une attache rigide par platine d’about selon EN 1993-1-8
Partager
30.05.2024
009329
  • RFEM 5
  • RSTAB 8
  • RF-FRAME-JOINT Pro 5
    • FRAME-JOINT Pro 8
    • Structures en acier
    • Connexions métalliques
    • Eurocode 3
Capacités portantes des rangées de boulons et des bras de levier correspondants
Utilisé dans
  • Exemple de calcul d’une attache rigide par platine d’about selon EN 1993-1-8
Partager
30.05.2024
009330
  • RFEM 5
  • RSTAB 8
  • RF-FRAME-JOINT Pro 5
    • FRAME-JOINT Pro 8
    • Structures en acier
    • Connexions métalliques
    • Eurocode 3
État limite ultime dans RF-/FRAME-JOINT Pro
Utilisé dans
  • Exemple de calcul d’une attache rigide par platine d’about selon EN 1993-1-8
Partager