21439x
001497
12.12.2017

Exemple de calcul d’une attache rigide par platine d’about selon EN 1993-1-8

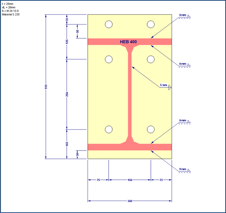
Dans cet exemple, la résistance de calcul d’une platine d’about selon l’EN 1993-1-8 [1] doit être déterminée, les autres composants ne sont pas décrits ici. Les cotations de l’assemblage IH 3.1 B 30 24 des assemblages types [2] ont été utilisées pour la vérification des résultats. Un matériau S 235 et des boulons avec une résistance de 10,9 sont utilisés.

Détermination des longueurs efficaces

Tout d’abord, il est nécessaire de déterminer les longueurs efficaces des semelles de tronçon selon le tableau 6.6. La rangée de boulons inférieure n’a que peu d’effet sur la semelle comprimée en raison du très petit bras de levier et est donc négligée. Les deux rangées de boulons supérieures étant divisées par la semelle tendue de la poutre, les rangées de boulons ne doivent être considérées que séparément. Vous pouvez ainsi éviter la rupture groupée des rangées de boulons. Le calcul des longueurs efficaces requiert les paramètres e, m, ex, mx , m2 , bp , w.

Pour cet exemple, les valeurs suivantes ont été calculées :

Dans le cas des longueurs efficaces, une distinction est faite entre les lignes de fluage circulaires et non circulaires. La configuration de la ligne de rupture linéaire requiert la valeur de la Figure 6.11. Les valeurs d’entrée sont basées sur la relation entre les bras de levier et l’âme de la poutre (λ1) ou entre la semelle de la poutre (λ2) et la largeur totale de la semelle de tronçon en T. Les valeurs de α entre deux diagrammes de la Figure 6.11 peuvent être interpolées linéairement.

À l’aide de ces valeurs d’entrée, les longueurs efficaces sont déterminées comme suit selon le Tableau 6.6.

Configuration de lignes de fluage circulaire pour la rangée de boulons extérieure :

Configuration de lignes de fluage circulaire pour la rangée de boulons intérieure :
leff,cp,i = 2 ∙ π ∙ 62,6 = 393,3 mm

Configuration de lignes de fluage non circulaire pour la rangée de boulons extérieure :

Configuration de lignes de fluage non circulaire pour la rangée de boulons intérieure :
leff,nc,i = 6,65 ∙ 62,6 = 416,3 mm

Pour déterminer la résistance de calcul en mode de défaillance 1, c’est-à-dire avec une élasticité de semelle pure, la longueur la plus courte des deux configurations de lignes de fluage est utilisée. Lors de la détermination de la résistance de calcul en mode de rupture 2, c’est-à-dire une rupture de boulon avec plastification simultanée de la semelle, seule la ligne de rupture non circulaire est possible.

On obtient ainsi les longueurs efficaces suivantes.

Rangée de boulons extérieure :
leff,1,a = 150 mm
leff,2,a = 150 mm

Rangée de boulons intérieure :
leff1,i = 393,3 mm
leff2,i = 416,3 mm

Vérifier si des forces de levier peuvent se développer

Avant de déterminer la résistance de calcul de la platine d’about en mode de défaillance 1, il faut vérifier si des forces de levier peuvent se développer. Comme cela vous permet d’obtenir des valeurs de résistance de calcul plus élevées, les cotations et l’épaisseur du paquet de prise doivent toujours être choisies ou modifiées de manière à ce que l’équation Lb < Lb* soit remplie. Lb est la longueur d’allongement du boulon, égale à la longueur de la prise (épaisseur totale du matériau et des rondelles), plus la moitié de la somme de la hauteur de la tête de boulon et de la hauteur de l’écrou.

La longueur de prise, en supposant qu’un assemblage de poutre symétrique est appliqué, donne :
Lb = 2 ∙ 25 + 2 ∙ 4 + 0,5 ∙ 19 + 0,5 ∙ 15 = 75 mm

Lb* doit être déterminé séparément pour les rangées de boulons extérieures et intérieures.

Rangée de boulons extérieure :

Rangée de boulons intérieure :

Par conséquent, des forces de levier peuvent se développer dans les deux rangées de boulons.

Résistance de calcul des semelles de tronçons en T

Pour le mode de défaillance « Fluage complet de la semelle », la Méthode 1 de l’EN 1993-1-8 est utilisée dans cet exemple. La résistance en traction des deux semelles de tronçon en T est déterminée comme suit.

Mode de défaillance « Rupture du boulon avec fluage de la semelle » :

Détermination de la résistance de calcul des semelles de tronçon en T

Le mode de défaillance 2 est déterminant pour les deux rangées de boulons.

Rangée de boulons extérieure : 385,12 kN

Rangée de boulons intérieure : 499,24 kN

Moment résistant de l’assemblage

Les valeurs de résistance de calcul calculées pour les rangées de boulons individuelles doivent maintenant être multipliées par le bras de levier respectif jusqu’au point de compression.

Les bras de levier sont
438 mm pour la rangée de boulons extérieure,
313 mm pour la rangée de boulons intérieure.

Ainsi, le moment résistant de calcul de l’assemblage donne
MRd = 385,12 ∙ 0,438 + 499,24 ∙ 0,313 = 324,95 kNm.

Comparaison des résultats

Si cet assemblage est calculé comme un assemblage de portique rigide dans RF-/FRAME-JOINT Pro, la résistance de calcul résultante de la platine d’about est de 319,79 kNm. D’après les assemblages types [2], la résistance de calcul est de 331,3 kNm, ce qui correspond relativement bien au calcul manuel.


Auteur

Monsieur Frölich fournit de l'assistance technique à nos clients, il est aussi responsable du développement produit pour les structures acier.

Liens
Références
Téléchargements


;