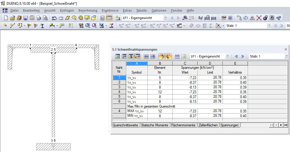
Tableau 5.1 Contraintes de soudure
Tableau 5.1 Contraintes de soudure
30.05.2024
009454
  • SHAPE-THIN 8
  • Structures en acier
  • Assemblages acier
    • Eurocode 3

Tableau 5.1 Contraintes de soudure

Utilisé dans
  • Vérification des soudures d’angle selon EN 1993-1-8
Partager