Système
Propriétés des sections
Efforts tranchant dans les murs
Système
Propriétés des sections
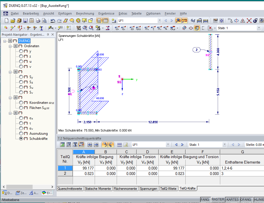
Efforts tranchant dans les murs
30.05.2024
009631
  • RFEM 5
  • SHAPE-THIN 8

Système

Utilisé dans
  • Contreventement des structures
Partager
30.05.2024
009632
  • RFEM 5
  • SHAPE-THIN 8
Propriétés des sections
Utilisé dans
  • Contreventement des structures
Partager
30.05.2024
009633
  • RFEM 5
  • SHAPE-THIN 8
Efforts tranchant dans les murs
Utilisé dans
  • Contreventement des structures
Partager