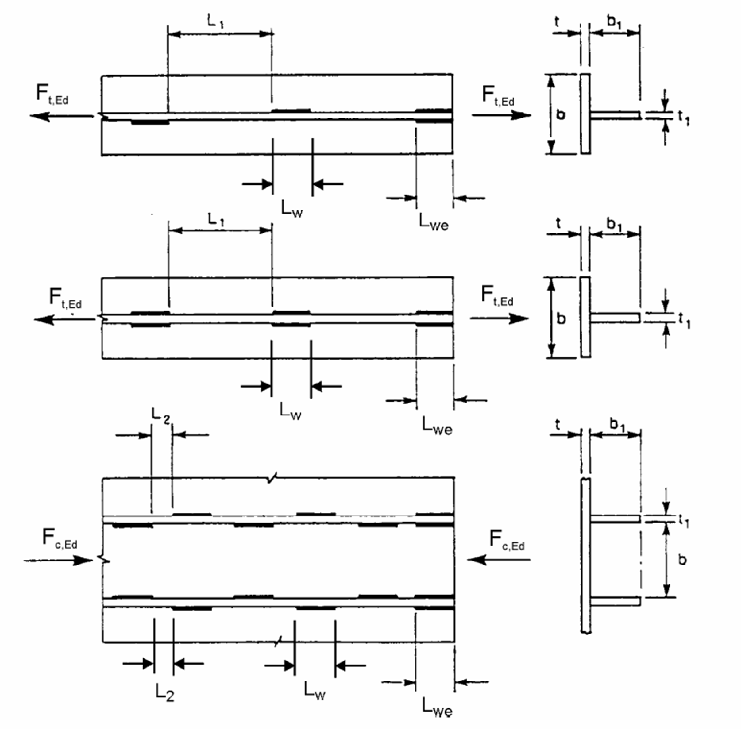
Options de disposition
Soudure continue
DIN EN 1993-6 Tab. 5.1
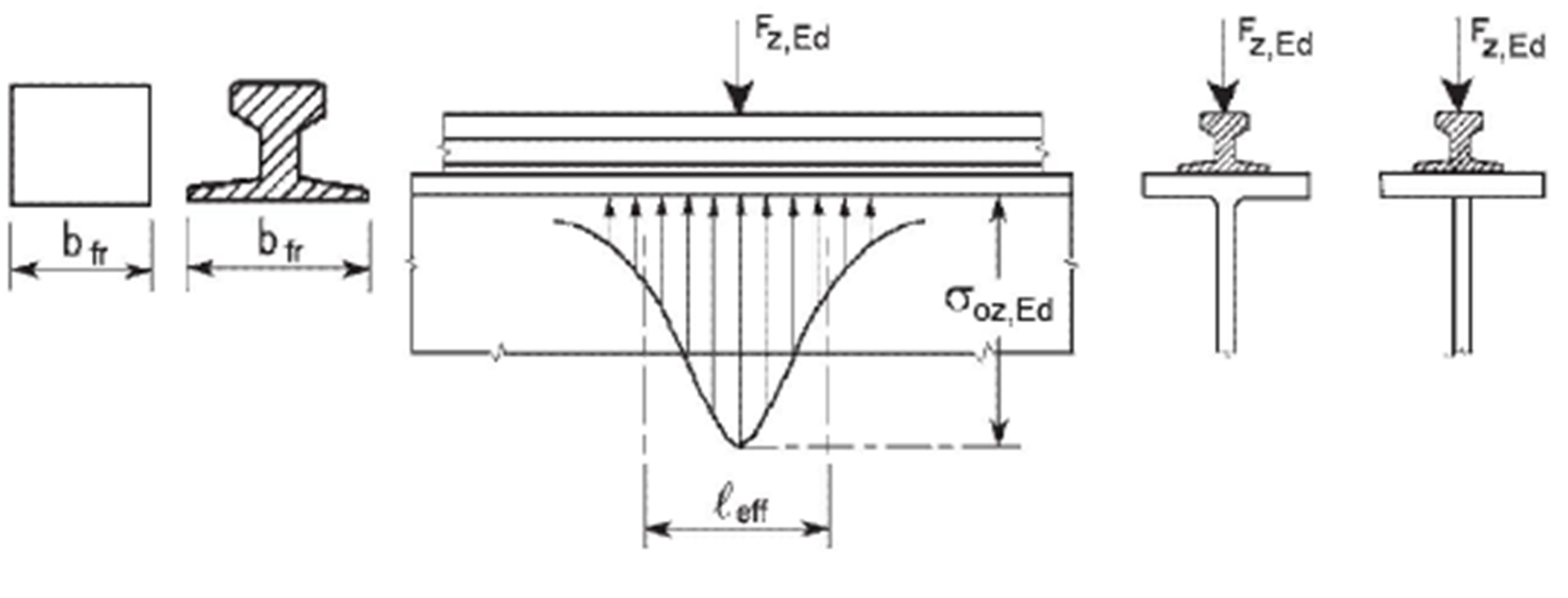
Longueur efficace de propagation de charge
Contraintes à l’état limite ultime
Sections de soudure d’angle
Contraintes à l’état limite ultime interrompue sur le côté opposé
Contraintes intermittentes à l’état limite ultime interrompues
Options de disposition
Soudure continue
DIN EN 1993-6 Tab. 5.1
Longueur efficace de propagation de charge
Contraintes à l’état limite ultime
Sections de soudure d’angle
Contraintes à l’état limite ultime interrompue sur le côté opposé
Contraintes intermittentes à l’état limite ultime interrompues
30.05.2024
009717
  • CRANEWAY 8
  • Grues et ponts roulants
  • Eurocode 3

Options de disposition

Utilisé dans
  • Vérification à l’état limite ultime des cordons de soudures des rails des chemins de roulement selon l’EN 1993-6
Partager
30.05.2024
009718
  • CRANEWAY 8
  • Grues et ponts roulants
  • Eurocode 3
Soudure continue
Utilisé dans
  • Vérification à l’état limite ultime des cordons de soudures des rails des chemins de roulement selon l’EN 1993-6
Partager
30.05.2024
009719
  • CRANEWAY 8
  • Grues et ponts roulants
  • Eurocode 3
DIN EN 1993-6 Tab. 5.1
Utilisé dans
  • Vérification à l’état limite ultime des cordons de soudures des rails des chemins de roulement selon l’EN 1993-6
Partager
30.05.2024
009720
  • CRANEWAY 8
  • Grues et ponts roulants
  • Eurocode 3
Longueur efficace de propagation de charge
Utilisé dans
  • Vérification à l’état limite ultime des cordons de soudures des rails des chemins de roulement selon l’EN 1993-6
Partager
30.05.2024
009721
  • CRANEWAY 8
  • Grues et ponts roulants
  • Eurocode 3
Contraintes à l’état limite ultime
Utilisé dans
  • Vérification à l’état limite ultime des cordons de soudures des rails des chemins de roulement selon l’EN 1993-6
Partager
30.05.2024
009722
  • CRANEWAY 8
  • Grues et ponts roulants
  • Eurocode 3
Sections de soudure d’angle
Utilisé dans
  • Vérification à l’état limite ultime des cordons de soudures des rails des chemins de roulement selon l’EN 1993-6
Partager
30.05.2024
009723
  • CRANEWAY 8
  • Grues et ponts roulants
  • Eurocode 3
Contraintes à l’état limite ultime interrompue sur le côté opposé
Utilisé dans
  • Vérification à l’état limite ultime des cordons de soudures des rails des chemins de roulement selon l’EN 1993-6
Partager
30.05.2024
009724
  • CRANEWAY 8
  • Grues et ponts roulants
  • Eurocode 3
Contraintes intermittentes à l’état limite ultime interrompues
Utilisé dans
  • Vérification à l’état limite ultime des cordons de soudures des rails des chemins de roulement selon l’EN 1993-6
Partager