12811x
001402
13.02.2017

Vérification à l’état limite ultime des cordons de soudures des rails des chemins de roulement selon l’EN 1993-6

Si les poutres de roulement sont conçues avec les rails en acier, les soudures des rails sont toujours un détail important à calculer. Vous pouvez généralement choisir entre des soudures d’angle continues et intermittentes comme fixation de rail. Cet article suivant donne un aperçu des processus de calcul et de leurs spécificités, en particulier lors de l’application de l’EN 1993-6.

Options de disposition des soudures d’angle du rail

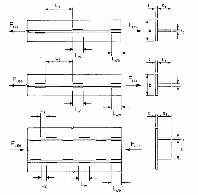
Il existe deux variantes d’assemblage intermittent par soudure d’angle. Ces variantes sont illustrées dans la figure suivante issue de [2].

Les sections de soudure peuvent être disposées sur des côtés opposés ou en quinconce. La disposition en quinconce a le désavantage pour le calcul qu’une seule soudure peut être utilisée pour le transfert des charges horizontales. La troisième option, non représentée ci-dessus, est bien entendu une soudure d’angle continue sur toute la longueur du rail.

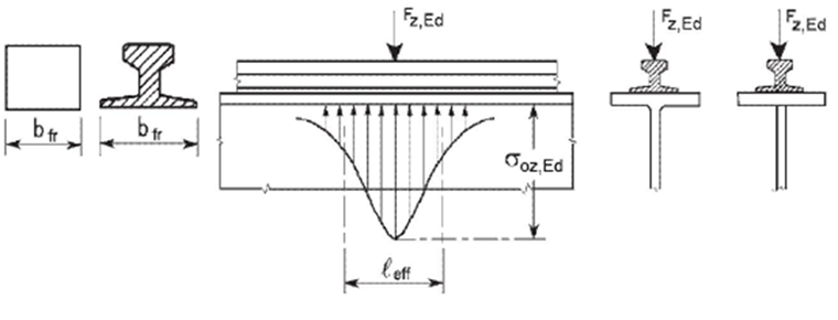
Longueur efficace chargée

La détermination des contraintes de soudure correspondantes nécessite le calcul des longueurs efficaces chargées. L’EN 1993-6 distingue trois options et fournit les formules correspondantes pour le calcul de leff dans le Tableau 5.1.

Dans ce cas, leff fait référence à la face inférieure de la semelle supérieure. Cependant, la surface supérieure de la semelle supérieure est déterminante pour la vérification de la soudure. Par conséquent, leff est réduit par l’épaisseur de la double semelle tf.

Vérification à l’ELU

Les contraintes de soudure de rail sont calculées selon la méthode directionnelle spécifiée dans [2]. Dans ce cas, les contraintes se rapportent à la surface bissectrice de la soudure d’angle. Selon [2], (AN) clause 4.5.2, les épaisseurs minimales de structure doivent être observées pour la soudure. La norme exige une soudure d’une épaisseur minimale d’au moins 3 mm ou l’application de la formule suivante :

La charge excentrée de galets de 1/4 de la largeur du champignon du rail n’est pas prise en compte à l’état limite ultime selon l’EN 1993-6. Par conséquent, la vérification due au chargement de galet est toujours effectuée.

Cas 1 : Soudure continue des rails

Pour les soudures d’angle intermittentes, il est nécessaire de vérifier si la longueur de soudure lw est inférieure à la longueur sous charge calculée leff. En règle générale, le minimum des deux valeurs est déterminant pour la vérification.

Cas 2 : Soudure intermittente des rails sur les côtés opposés

Cas 3 : Soudure intermittente des rails en quinconce

Étant donné que la charge horizontale n’est appliquée à une section de soudure que dans le cas d’une disposition en quinconce des soudures, le diviseur 2 est omis en termes de HEd.


Liens
Références


;