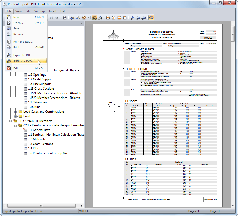
Exporter en PDF
Exporter en PDF
30.05.2024
016290
  • RFEM 5
  • RSTAB 8

Exporter en PDF

Utilisé dans
  • Fichier PDF du rapport d’impression
Partager