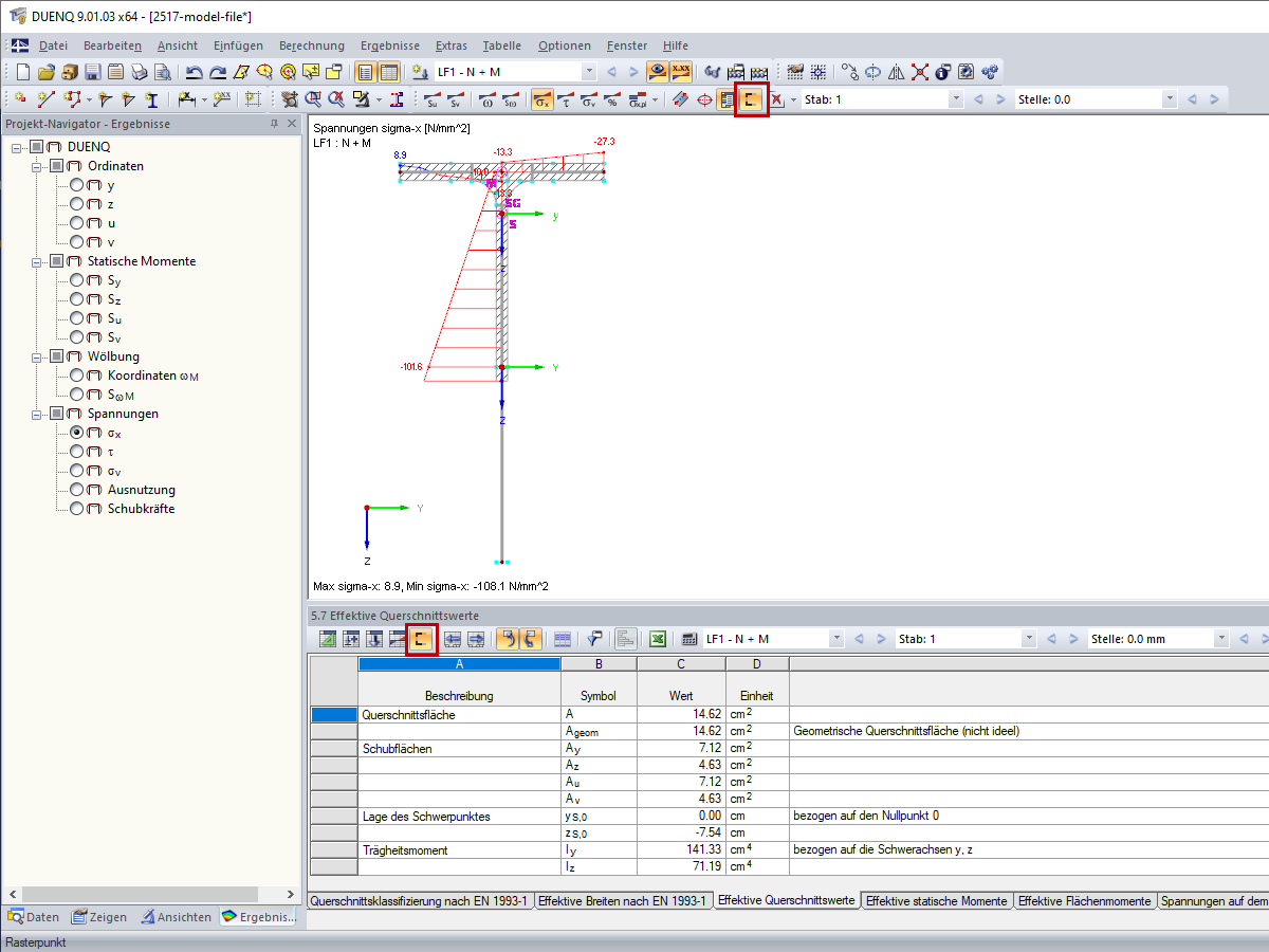
Propriétés de la section efficace
Propriétés de la section efficace
30.05.2024
016838
  • SHAPE-THIN 8
  • SHAPE-THIN 9
  • Eurocode 3
    • Eurocode 9
    • DIN 18800

Propriétés de la section efficace

Utilisé dans
  • Détermination des propriétés de section efficaces selon l'EC 3 ou l'EC 9 dans SHAPE-THIN
Partager