1963x
002517
26.02.2019

Détermination des propriétés de section efficaces selon l'EC 3 ou l'EC 9 dans SHAPE-THIN

Comment déterminer les propriétés de section efficace selon l'EC 3 ou l'EC 9 avec SHAPE-THIN ?


Réponse:

Activez l’option « Parties c/t et propriétés de section efficace » dans les Données de base de la section. Cliquez ensuite sur le bouton « Paramètres de calcul » pour ouvrir la boîte de dialogue du même nom. Dans le deuxième onglet, vous pouvez préciser la norme souhaitée (Figure 01).

Insérez ensuite les éléments de la section. Les parties c/t sont en principe générées automatiquement à partir des conditions géométriques; cependant, elles peuvent être définies par l’utilisateur dans le Tableau 1.7 Parties de section pour la classification ou dans la boîte de dialogue correspondante.

Définissez ensuite un cas de charge dans le Tableau 2.1 Cas de charge (Figure 03) ou dans la boîte de dialogue « Modifier les cas de charge et les combinaisons » et les efforts internes dans le Tableau 3.1 ou dans la boîte de dialogue « Modifier la position x » (Figure 04).


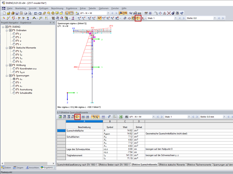
Après le calcul, les résultats de la section efficace sont disponibles en cliquant sur le bouton « Longueurs efficaces » (Figure 5).


Auteur

Mme von Bloh fournit une assistance technique à nos utilisateurs et est également responsable du développement du programme SHAPE-THIN et de la construction en acier et en aluminium.

Téléchargements


;