Remarque dans RF-/JOINTS Steel DSTV
  • Visionneuse 3D
  • Visionneuse 3D | Babylon
  • Réalité virtuelle
Remarque dans RF-/JOINTS Steel DSTV
30.05.2024
019084
  • JOINTS Steel (version anglaise) | DSTV 8
  • RF-JOINTS Steel | DSTV 5
  • Structures en acier
    • Connexions métalliques
    • Eurocode 3

Remarque dans RF-/JOINTS Steel DSTV

Utilisé dans
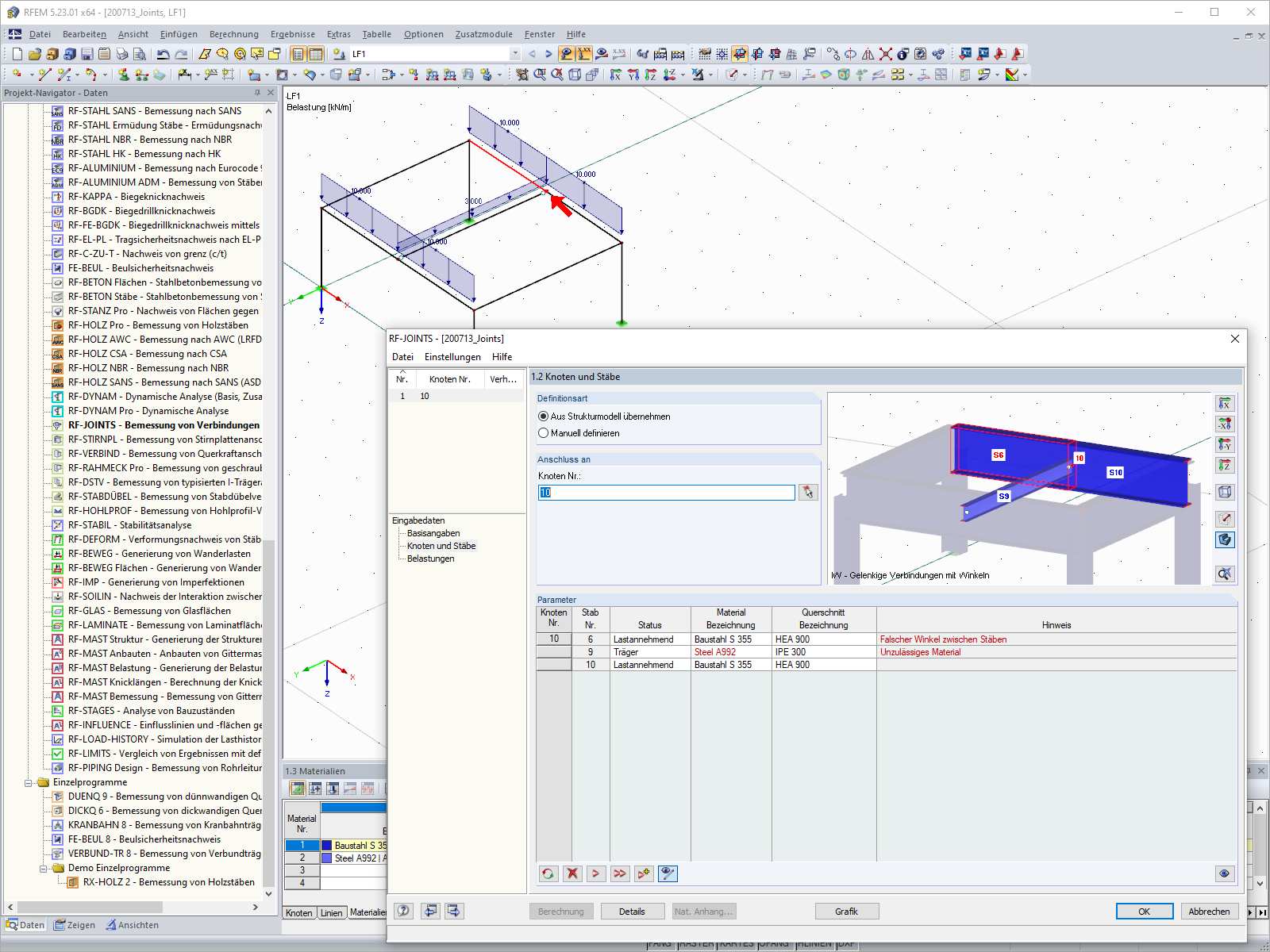
  • Message d'erreur « Géométrie incorrecte » et « Matériau non valide » dans RF-/JOINTS Steel - DSTV
Modèle 3D
En savoir plus sur le modèle 3D
  • Poutre en T,
Spécifications
Nombre de nœuds 9
Nombre de lignes 12
Nombre de barres 2
Nombre de surfaces 4
Nombre de solides 0
Nombre de cas de charge 1
Nombre de combinaisons de charges 0
Nombre de combinaisons de résultats 0
Poids total 85,500 t
Dimensions (métrique) 15,000 x 0,000 x 12,000 m
Dimensions (impériales) 49.21 x 0 x 39.37 feet
Partager