1778x
004507
13.07.2020

Message d'erreur « Géométrie incorrecte » et « Matériau non valide » dans RF-/JOINTS Steel - DSTV

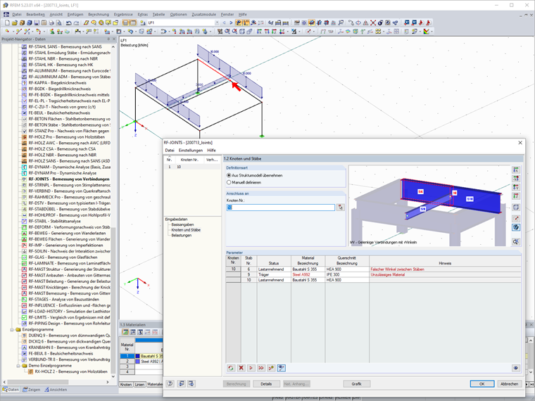
Dans RF-/JOINTS Steel - DSTV, les avertissements « Géométrie incorrecte » et « Matériau non valide » s'affichent. Quelles entrées dois-je ajuster ?


Réponse:

Les assemblages dans le module RF-/JOINTS Steel - DSTV sont des assemblages acier typiques pour la transmission ou l'introduction de moments et d'efforts tranchants.

Si le message « Géométrie incorrecte » s'affiche, vérifiez si la géométrie de l'assemblage répond aux exigences des assemblages types. Cela peut également être dû à des incohérences dans l'entrée du modèle. Dans l'exemple, un petit écart dans les coordonnées de l'axe Y entraîne une géométrie de modèle incorrecte.

Si le message « Matériau non valide » s'affiche, vérifiez si le matériau est prévu pour l'assemblage type. Pour les sections et les tôles, vous pouvez sélectionner le matériau S 235 ou S 355 pour ces assemblages.


Auteur

Stefan apporte son soutien au support client pour les questions techniques. Même pour des sujets plus complexes, il procède de manière structurée et veille à obtenir des résultats compréhensibles.

Téléchargements


;