Périmètre critique autour du poteau avec une ouverture
Case à cocher pour la vérification du poinçonnement
Sélection des nœuds de poinçonnement à l’aide de tableaux
Vérification du béton - Configurations
Paramètres de calcul du poinçonnement
Répartition entièrement plastique des contraintes de cisaillement
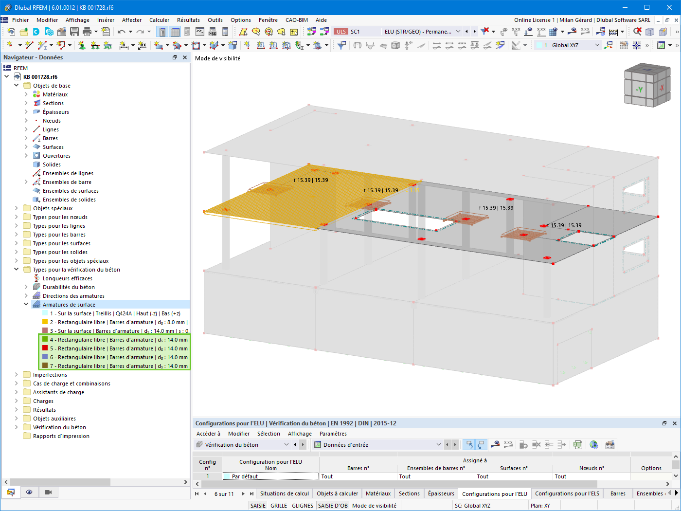
Armatures de surface prévues pour le contrôle initial de la capacité de cisaillement
Résistance au poinçonnement basée sur les armatures longitudinales prévues
Détails de vérification du calcul au poinçonnement
Définition des armatures longitudinales additionnelles
Armatures surfaciques additionnelles affichées graphiquement
Armatures requises en termes de poinçonnement
Charge de poinçonnement
Périmètre critique autour du poteau avec une ouverture
Case à cocher pour la vérification du poinçonnement
Sélection des nœuds de poinçonnement à l’aide de tableaux
Vérification du béton - Configurations
Paramètres de calcul du poinçonnement
Répartition entièrement plastique des contraintes de cisaillement
Armatures de surface prévues pour le contrôle initial de la capacité de cisaillement
Résistance au poinçonnement basée sur les armatures longitudinales prévues
Détails de vérification du calcul au poinçonnement
Définition des armatures longitudinales additionnelles
Armatures surfaciques additionnelles affichées graphiquement
Armatures requises en termes de poinçonnement
Charge de poinçonnement
30.05.2024
027065
  • RFEM 6
  • Structures en béton

Périmètre critique autour du poteau avec une ouverture

Utilisé dans
  • Vérification de la résistance au poinçonnement dans RFEM 6
Partager
30.05.2024
027066
  • RFEM 6
  • Structures en béton
Case à cocher pour la vérification du poinçonnement
Utilisé dans
  • Vérification de la résistance au poinçonnement dans RFEM 6
Partager
30.05.2024
027067
  • RFEM 6
  • Structures en béton
Sélection des nœuds de poinçonnement à l’aide de tableaux
Utilisé dans
  • Vérification de la résistance au poinçonnement dans RFEM 6
Partager
30.05.2024
027128
  • RFEM 6
Vérification du béton - Configurations
Utilisé dans
  • Vérification de la résistance au poinçonnement dans RFEM 6
Partager
30.05.2024
027129
  • RFEM 6
  • Structures en béton
Paramètres de calcul du poinçonnement
Utilisé dans
  • Vérification de la résistance au poinçonnement dans RFEM 6
Partager
30.05.2024
027138
  • RFEM 6
  • Structures en béton
Répartition entièrement plastique des contraintes de cisaillement
Utilisé dans
  • Vérification de la résistance au poinçonnement dans RFEM 6
Partager
30.05.2024
027130
  • RFEM 6
  • Structures en béton
Armatures de surface prévues pour le contrôle initial de la capacité de cisaillement
Utilisé dans
  • Vérification de la résistance au poinçonnement dans RFEM 6
Partager
30.05.2024
027131
  • RFEM 6
  • Structures en béton
Résistance au poinçonnement basée sur les armatures longitudinales prévues
Utilisé dans
  • Vérification de la résistance au poinçonnement dans RFEM 6
Partager
30.05.2024
027132
  • RFEM 6
  • Structures en béton
Détails de vérification du calcul au poinçonnement
Utilisé dans
  • Vérification de la résistance au poinçonnement dans RFEM 6
Partager
30.05.2024
027133
  • RFEM 6
  • Structures en béton
Définition des armatures longitudinales additionnelles
Utilisé dans
  • Vérification de la résistance au poinçonnement dans RFEM 6
Partager
30.05.2024
027134
  • RFEM 6
  • Structures en béton
Armatures surfaciques additionnelles affichées graphiquement
Utilisé dans
  • Vérification de la résistance au poinçonnement dans RFEM 6
Partager
30.05.2024
027135
  • RFEM 6
  • Structures en béton
Armatures requises en termes de poinçonnement
Utilisé dans
  • Vérification de la résistance au poinçonnement dans RFEM 6
Partager
30.05.2024
027136
  • RFEM 6
  • Structures en béton
Charge de poinçonnement
Utilisé dans
  • Vérification de la résistance au poinçonnement dans RFEM 6
Partager