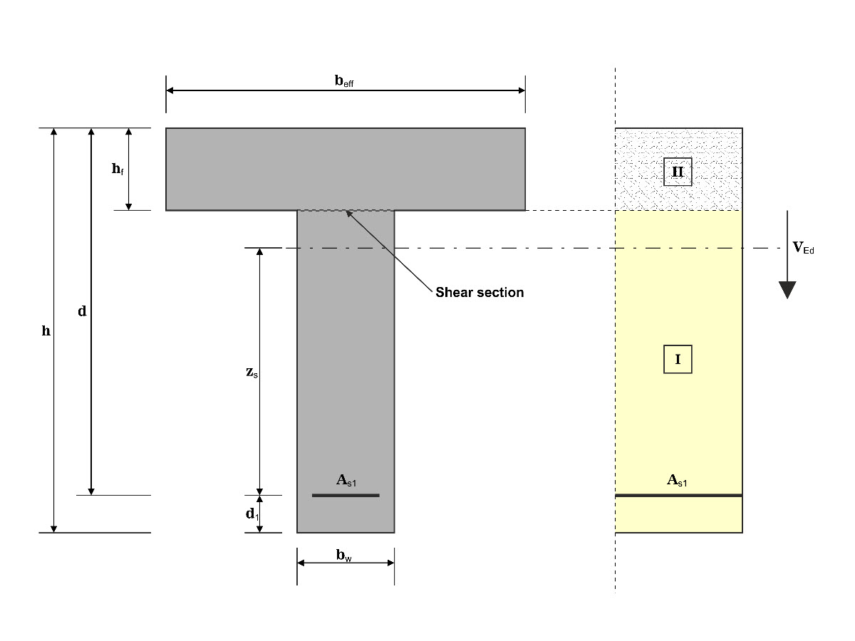
Exemple de vérification 1024 | Cisaillement à l'interface entre le béton à différents moments
Exemple de vérification 1024 | Cisaillement à l'interface entre le béton à différents moments
13.08.2024
042002
  • RFEM 6

Exemple de vérification 1024 | Cisaillement à l'interface entre le béton à différents moments

Utilisé dans
  • VE 1024 | Cisaillement sur la jonction entre le béton coulé selon DIN EN 1992-1-1
Partager