Interface de présentation des données d’entrée pour la vérification du béton à l’aide du logiciel Dlubal.
Interface de présentation des données d’entrée pour la vérification du béton à l’aide du logiciel Dlubal.
21.11.2024
054023
  • RFEM 6

Vérification du béton : données d’entrée

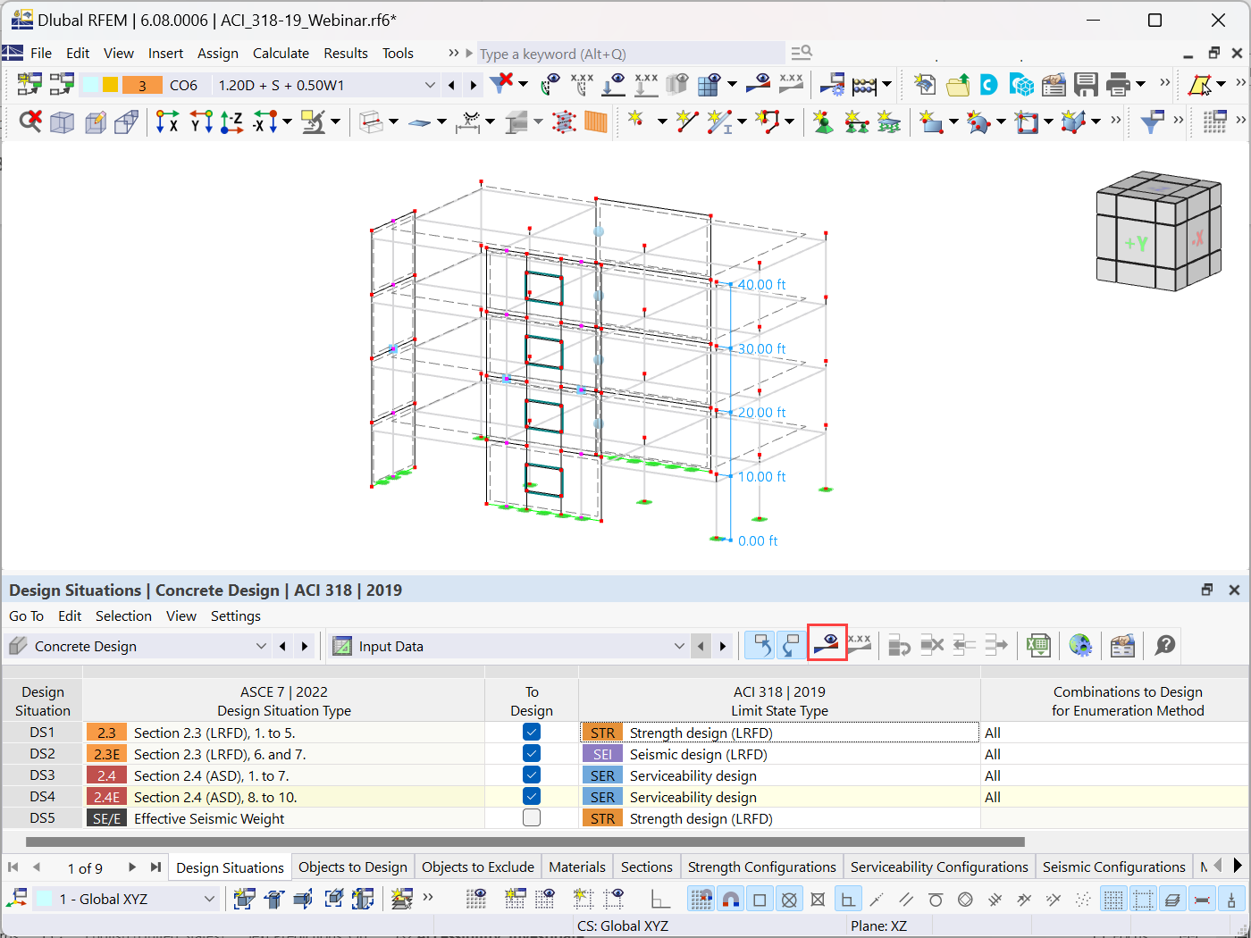
Interface de présentation des données d’entrée pour la vérification du béton à l’aide du logiciel Dlubal.

L’image présente une interface du logiciel Dlubal axée sur les données d’entrée pour la vérification du béton. Le logiciel Dlubal aide les ingénieurs structure à gérer et analyser efficacement les paramètres de conception du béton. Cette interface spécifique permet aux utilisateurs de saisir et d'ajuster les données de conception cruciales nécessaires pour réaliser des analyses approfondies des structures en béton. En utilisant ce logiciel, les ingénieurs peuvent relever efficacement les défis de conception, en assurant la conformité aux normes pertinentes et en améliorant la sécurité globale des structures. Ses fonctionnalités complètes soutiennent diverses tâches d'ingénierie, rationalisant les flux de travail des projets et optimisant les résultats de vérification.
  • Vérification du béton
  • Ingénierie des structure
  • Dlubal Software
  • Logiciel de calcul de structure
  • Outils de génie civil
Utilisé dans
  • Vérification des voiles de cisaillement en béton dans RFEM 6 : Guide pas-à-pas
Partager