2889x
001919
21.11.2024

Vérification des voiles de cisaillement en béton dans RFEM 6 : Guide pas-à-pas

Dans cet article, nous vous expliquons étape par étape la vérification des voiles de cisaillement dans RFEM 6.

Les structures que nous vérifions sont exposées à diverses charges, y compris les forces latérales telles que le vent, les séisme et autres impacts horizontaux, particulièrement difficiles pour les bâtiments de grande hauteur. Ces forces agissent horizontalement sur la stabilité et l’intégrité des structures, il est donc essentiel de s’assurer que les bâtiments peuvent les supporter sans mouvement ni endommagement excessif. À cet égard, l’analyse latérale est un aspect crucial du génie civil, car il permet de prévoir les déplacements latéraux, les efforts internes et le comportement global du bâtiment soumis à de telles charges.

Pour résister aux forces latérales telles que le vent et les séismes, les structures s’appuient sur des éléments spécifiques conçus pour la stabilité, la résistance et la flexibilité. Ces composants fonctionnent de manière combinée pour maintenir l’intégrité du bâtiment, contrôler le défaut d’aplomb et limiter l’endommagement. Les voiles de cisaillement sont l’un des éléments les plus importants pour résister aux efforts latéraux. Dans cet article, nous allons montrer comment calculer des voiles de cisaillement dans RFEM 6 à l’aide des voiles du bâtiment de plusieurs étages illustrés dans la Figure 1.

Vérification des voiles de cisaillement dans RFEM 6 à l’aide du module complémentaire Modèle de bâtiment

Le bâtiment de la Figure 1 est un bâtiment de plusieurs étages avec des voiles de cisaillement. Le module complémentaire Modèle de bâtiment permet de vérifier de tels bâtiments dans RFEM 6. Cet outil puissant vous permet de définir votre bâtiment étage par étage et d’ajuster les étages si nécessaire. Il prend également en charge l’intégration des éléments de voiles de cisaillement et de linteaux et permet d’assigner des diaphragmes aux étages, plusieurs types de diaphragmes étant disponibles. Ces éléments sont essentiels pour l’analyse latérale, car ils créent un système cohésif conçu pour résister efficacement aux efforts latéraux.

Ce texte traite principalement de la vérification des voiles de cisaillement, spécifiquement ceux illustrés dans la Figure 1. Les trois voiles s’étendent du rez-de-chaussée au dernier étage, deux d’entre eux (les murs 1 et 2) étant reliés par des éléments de linteau. L’activation de « cellules de surface » en tant qu’objets spéciaux dans le navigateur peut être très avantageuse dans de tels scénarios. Cette fonctionnalité permet au logiciel de reconnaître automatiquement les cellules de surface, ce qui facilite la distinction entre les voiles de cisaillement et les éléments de linteau qui les relient, comme illustré sur la Figure 2.

Vous pouvez commencer à définir les voiles de cisaillement par un clic droit sur le dossier « Voile de cisaillement » du navigateur pour ouvrir la fenêtre correspondante (voir la Figure 3). Commencez par sélectionner les surfaces ou les cellules de surface à l’aide de l’entrée dans le coin supérieur droit de la fenêtre. Cela peut être fait graphiquement. Pour le premier voile, sélectionnez les quatre cellules de surface situées à gauche des ouvertures pour définir un voile de cisaillement continu s’étendant de la base au sommet de la structure (voir la Figure 2). Répétez ce processus pour le voile de cisaillement du côté droit de l’ouverture (voile 2) et pour le voile 3, illustré ci-dessus dans la Figure 1. Notez que le voile 3 est défini uniquement à l’aide de surfaces, car il n’y a pas d’ouvertures.

Une fois les voiles définis, vous pouvez définir les paramètres de calcul pour chaque voile individuellement ou sélectionner tous les voiles pour appliquer les mêmes paramètres à chacun d’entre eux. Commencez par activer l’option « Générer les coupes de résultats » (voir la Figure 3), qui vous permet de créer des coupes horizontales dans le voile de cisaillement et d’afficher les résultats, tels que les efforts internes additionnés, sous forme de tableau. Étant donné que vous vous concentrez sur le calcul des voiles, assurez-vous également de sélectionner « Propriétés de calcul », ce qui vous permet de renseigner les entrées de calcul nécessaires.

Une fois les « Propriétés de calcul » activées, des onglets supplémentaires apparaissent dans la fenêtre. Ces onglets permettent de préciser des détails tels que l’enrobage béton pour les voiles de cisaillement (voir la Figure 4) ou de définir les armatures longitudinales (voir la Figure 5).

Différents types de barres d’armatures sont disponibles pour les armatures longitudinales, notamment les barres symétriques, asymétriques, uniformément réparties, linéiques et simples. Dans cet exemple, le type « uniformément réparti » est choisi, avec 22 barres n°7 placées uniformément sur le contour des voiles 1 et 2 (voir la Figure 5). Cependant, pour le voile 3, 40 barres n°7 sont utilisées en raison de sa plus grande largeur.

De même que pour les armatures longitudinales, vous pouvez définir des armatures d’effort tranchant pour les voiles de cisaillement. Vous avez un contrôle sur les paramètres tels que le type de cadre, le matériau, la taille de barre, le diamètre, le nombre et l’espacement (Figure 6). De plus, vous pouvez activer les épingles en cochant la case correspondante, ce qui les positionnera sur les barres longitudinales. Si vous souhaitez exclure une épingle à un emplacement précis, il vous suffit de cliquer sur la barre longitudinale pour la désactiver. Vous pouvez également réactiver l’épingle en cliquant à nouveau sur la barre longitudinale.

Un appui de calcul peut être ajouté aux points de connexion entre le voile de cisaillement et les dalles/planchers (voir la Figure 7). Ces appuis peuvent être configurés dans la fenêtre correspondante (comme le montre la Figure 8). Dans cet exemple, les appuis de début et de fin du voile de cisaillement sont de type béton, d’une épaisseur de 20 cm, correspondant à l’épaisseur de la dalle qui enjambe le voile transversalement. Les appuis de calcul aux nœuds internes doivent être de type et d’épaisseur identiques, mais assurez-vous de sélectionner l’option « Appui interne » pour indiquer qu’il ne s’agit pas d’un appui d’extrémité dans ce cas (voir la Figure 8).

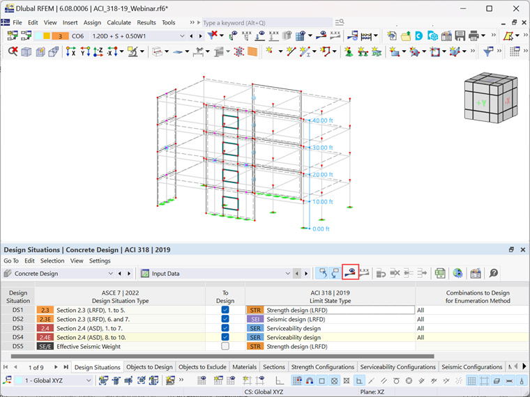
Une fois les paramètres de calcul configurés, vous pouvez sélectionner les données d’entrée pour le calcul dans le module complémentaire Vérification du béton (Figure 9). Ce processus implique le choix des situations de projet à considérer, la définition du type d’état limite pour chacune, la définition des objets à vérifier, etc.

Les résultats, y compris les détails des armatures et les ratios de vérification pour les voiles de cisaillement, sont affichés sous forme de tableau et de graphique, comme illustré sur la Figure 10. Ceci vous permet, par exemple, de superposer graphiquement les armatures prévues et les armatures requises pour vérifier si les armatures prévues dépassent la quantité requise. Si ce n’est pas le cas, les armatures non couvertes peuvent également être affichées pour une évaluation plus approfondie.

Pour les ratios de vérification, en plus de leur représentation tabulaire et graphique, des informations détaillées pour chaque vérification sont disponibles via le bouton correspondant, offrant une vue en profondeur des calculs de vérification (Figure 11).


Auteur

Elle est responsable de la création d'articles techniques et fournit un support technique aux clients de Dlubal Software.

Liens


;