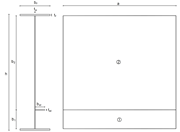
Sezione trasversale
distribuzioni delle tensioni
Sezione trasversale lorda dell'asta compressa equivalente
Sezione trasversale lorda ed efficace per instabilità locale
Asta di compressione equivalente e irrigidimento: Distanze e1, e2
Sezione trasversale efficace per instabilità locale e globale
Calcolo dei parametri
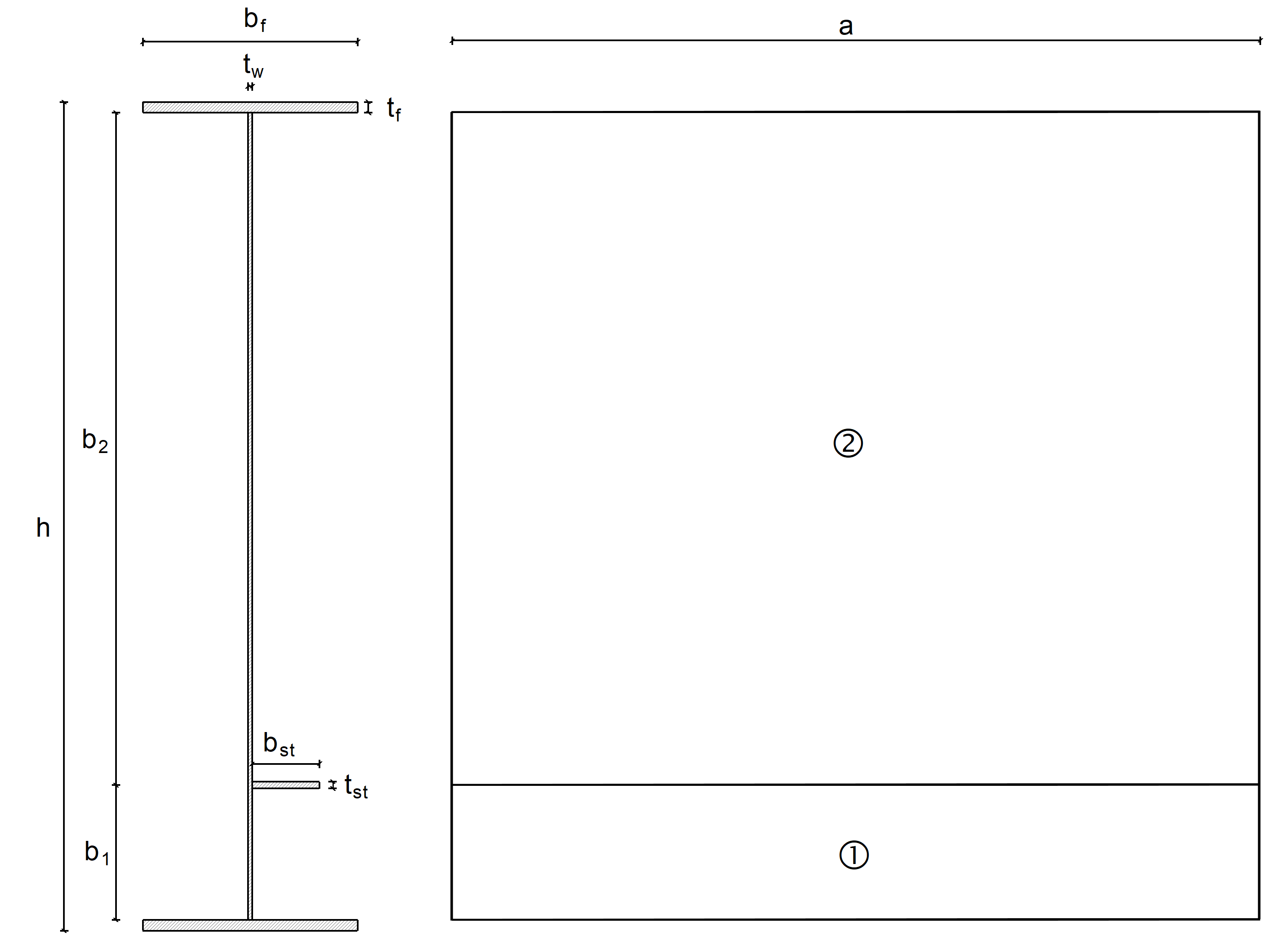
Parti della sezione trasversale per la classificazione
irrigidimenti
Pannelli
Ergebnisse
Sezione trasversale
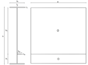
distribuzioni delle tensioni
Sezione trasversale lorda dell'asta compressa equivalente
Sezione trasversale lorda ed efficace per instabilità locale
Asta di compressione equivalente e irrigidimento: Distanze e1, e2
Sezione trasversale efficace per instabilità locale e globale
Calcolo dei parametri
Parti della sezione trasversale per la classificazione
irrigidimenti
Pannelli
Ergebnisse
2024-05-30
009113
  • SHAPE-THIN 8
  • Strutture in acciaio
  • Analisi delle tensioni
    • Analisi di stabilità
    • Eurocode 3

Sezione trasversale

Usato in
  • Pannelli irrigiditi secondo EN 1993-1-5, punto 4.5
Condividi
2024-05-30
009114
  • SHAPE-THIN 8
  • Strutture in acciaio
  • Analisi delle tensioni
    • Analisi di stabilità
    • Eurocode 3
distribuzioni delle tensioni
Usato in
  • Pannelli irrigiditi secondo EN 1993-1-5, punto 4.5
Condividi
2024-05-30
009115
  • SHAPE-THIN 8
  • Strutture in acciaio
  • Analisi delle tensioni
    • Analisi di stabilità
    • Eurocode 3
Sezione trasversale lorda dell'asta compressa equivalente
Usato in
  • Pannelli irrigiditi secondo EN 1993-1-5, punto 4.5
Condividi
2024-05-30
009116
  • SHAPE-THIN 8
  • Strutture in acciaio
  • Analisi delle tensioni
    • Analisi di stabilità
    • Eurocode 3
Sezione trasversale lorda ed efficace per instabilità locale
Usato in
  • Pannelli irrigiditi secondo EN 1993-1-5, punto 4.5
Condividi
2024-05-30
009117
  • SHAPE-THIN 8
  • Strutture in acciaio
  • Analisi delle tensioni
    • Analisi di stabilità
    • Eurocode 3
Asta di compressione equivalente e irrigidimento: Distanze e1, e2
Usato in
  • Pannelli irrigiditi secondo EN 1993-1-5, punto 4.5
Condividi
2024-05-30
009118
  • SHAPE-THIN 8
  • Strutture in acciaio
  • Analisi delle tensioni
    • Analisi di stabilità
    • Eurocode 3
Sezione trasversale efficace per instabilità locale e globale
Usato in
  • Pannelli irrigiditi secondo EN 1993-1-5, punto 4.5
Condividi
2024-05-30
009119
  • SHAPE-THIN 8
  • Strutture in acciaio
  • Analisi delle tensioni
    • Analisi di stabilità
    • Eurocode 3
Calcolo dei parametri
Usato in
  • Pannelli irrigiditi secondo EN 1993-1-5, punto 4.5
Condividi
2024-05-30
009120
  • SHAPE-THIN 8
  • Strutture in acciaio
  • Analisi delle tensioni
    • Analisi di stabilità
    • Eurocode 3
Parti della sezione trasversale per la classificazione
Usato in
  • Pannelli irrigiditi secondo EN 1993-1-5, punto 4.5
Condividi
2024-05-30
009121
  • SHAPE-THIN 8
  • Strutture in acciaio
  • Analisi delle tensioni
    • Analisi di stabilità
    • Eurocode 3
irrigidimenti
Usato in
  • Pannelli irrigiditi secondo EN 1993-1-5, punto 4.5
Condividi
2024-05-30
009122
  • SHAPE-THIN 8
  • Strutture in acciaio
  • Analisi delle tensioni
    • Analisi di stabilità
    • Eurocode 3
Pannelli
Usato in
  • Pannelli irrigiditi secondo EN 1993-1-5, punto 4.5
Condividi
2024-05-30
009123
  • SHAPE-THIN 8
  • Strutture in acciaio
  • Analisi delle tensioni
    • Analisi di stabilità
    • Eurocode 3
Ergebnisse
Usato in
  • Pannelli irrigiditi secondo EN 1993-1-5, punto 4.5
Condividi