9471x
001536
2018-09-12

Pannelli irrigiditi secondo EN 1993-1-5, punto 4.5

In SHAPE-THIN, il calcolo dei pannelli irrigiditi può essere eseguito secondo la sezione 4.5 della EN 1993-1-5. Per i pannelli irrigiditi, devono essere considerate le superfici efficaci dovute all'instabilità locale dei singoli pannelli nella piastra e negli irrigidimenti, nonché le superfici efficaci dall'instabilità dell'intero pannello dell'intero pannello irrigidito.

Prima di tutto, le superfici efficaci dei singoli pannelli sono determinate utilizzando il coefficiente di riduzione secondo EN 1993-1-5 [1] , Sezione 4.4 per tenere conto dell'instabilità dei singoli pannelli. Nella seconda fase, la sicurezza all'instabilità dell'intero pannello è determinata tenendo conto del comportamento all'instabilità simile a quello di una delle aste instabili. Con il coefficiente di riduzione dell'instabilità globale del pannello, le larghezze efficaci dei singoli pannelli si riducono. Ciò si traduce in una sezione trasversale efficace che può essere gestita come appartenente alla classe di sezione trasversale 3.

Esempio

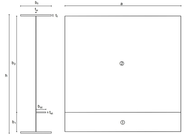
Il seguente esempio è tratto dall'Annuario delle strutture in acciaio 2015 [2]. La sezione trasversale è costituita da una trave a I di cui l'anima è irrigidita da irrigidimenti trasversali rigidi e da un irrigidimento longitudinale. Gli irrigidimenti trasversali sono disposti ad una distanza di 3.000 mm l'uno dall'altro e l'irrigidimento longitudinale è saldato ad una distanza di 500 mm dall'ala inferiore. Si trascurano le saldature. Una forza assiale di compressione di NEd = 4.000 kN agisce.

Materiale:
S355 J0
fy = 35,5 kN/cm² (per t ≤ 3 mm e t ≤ 16 mm)
fy = 34,5 kN/cm² (per t >16 mm e t ≤ 40 mm)
E = 21.000 kN/cm²
G = 8.076,92 kN/cm²
γM0 = 1.0

a = 3.000 mm
b1 = 500 mm
b2 = 2.500 mm
bf = 800 mm
bst = 250 mm
tw = 15 mm
tf = 40 mm
tst = 25 mm
h = 3.080 mm

Sezione trasversale lorda e distribuzione delle tensioni

Le tensioni sono calcolate come segue:

La sezione trasversale lorda è la distribuzione delle tensioni sono mostrate in figura 02.

Classificazione della sezione

Durante una classificazione della sezione trasversale, viene eseguita una valutazione per accertare se è necessario un progetto di instabilità per i singoli pannelli. Se il singolo pannello è almeno di classe 3, l'instabilità locale non è determinante.

corrente

Il rapporto c/t massimo λi è determinato secondo EN 1993-1-1 [3] , Tabella 5.2.

La flangia deve essere assegnata alla classe 3 L'instabilità locale quindi non è determinante e non è necessaria alcuna riduzione dei singoli pannelli dell'ala.

anima

Il rapporto c/t massimo λi è determinato secondo [3] , Tabella 5.2.

Il singolo pannello 1 deve essere assegnato alla classe 3. L'instabilità locale quindi non è determinante e non è necessaria alcuna riduzione dei singoli pannelli dell'ala.

Il rapporto c/t massimo λi è determinato secondo [3] , Tabella 5.2.

Il singolo pannello 2 deve essere assegnato alla classe 4. L'instabilità locale determina quindi per questo singolo pannello ed è necessaria una riduzione di questo singolo pannello.

Rinforzo

Il rapporto c/t massimo λi è determinato secondo [3] , Tabella 5.2.

L'anima deve essere assegnata alla classe 3. L'instabilità locale quindi non è determinante e non è necessaria alcuna riduzione di questo singolo pannello.

Larghezze efficaci

Il singolo pannello 1 è assegnato alla classe di sezione trasversale 3 in modo che l'instabilità locale non sia determinante. I valori della sezione trasversale efficace corrispondono ai valori della sezione trasversale lorda. Secondo [1] , Tabella 4.1, ciò risulta nelle seguenti larghezze efficaci:

Il singolo pannello 2 è assegnato alla classe di sezione trasversale 4 in modo che l'instabilità locale non sia determinante. Le larghezze efficaci del singolo pannello 2 devono essere determinate secondo [1] , Sezione 4.4.

La distribuzione delle tensioni nel singolo pannello 2 è uniforme. Ciò si traduce in un rapporto di tensione di ψ = 1 e, secondo la Tabella 4.1, in un valore di instabilità di kσ = 4.0. Secondo [1] , Sezione 4.4(2), il risultato per il rapporto di snellezza λp2 è:

 

Il coefficiente di riduzione locale ρ è determinato secondo [1] , equazione (4.2):

Le larghezze efficaci del singolo pannello 2, tenendo conto dell'instabilità locale, sono calcolate secondo [1] , Tabella 4.1:

Le larghezze della sezione trasversale lorda risultano:

Comportamento simile a una soletta

La tensione critica elastica della rigidezza σcr,sl è calcolata secondo [1] , Appendice A.2.2. La lunghezza efficace della rigidezza ac deve essere calcolata prima:

La tensione critica elastica della rigidezza σcr,sl risulta in a < ac in:

Isl,1 e Asl,1 rappresentano qui il secondo momento dell'area della sezione trasversale lorda e l'area della sezione trasversale lorda dell'asta equivalente compressa secondo [1] ; A.2.1(2) per instabilità perpendicolare al piano della piastra e b1 e b2 descrivono le distanze degli irrigidimenti dai bordi longitudinali (b1 + b2 = b).

La distribuzione delle tensioni è uniforme. Pertanto, la tensione di instabilità della piastra elastica σcr,p corrisponde alla tensione di instabilità critica σcr,sl.

L'area della sezione trasversale lorda Ac del pannello della piastra irrigidito longitudinalmente è calcolata come segue, senza tenere conto delle piastre laterali supportate da una componente della piastra adiacente e dell'area della sezione trasversale efficace Ac,eff,loc,p dell'area sopra descritto:

La rigidezza appartiene alla classe della sezione trasversale 3, quindi l'area della sezione trasversale efficace della rigidezza corrisponde all'area della sezione trasversale lorda della rigidezza.

I valori della sezione trasversale sono mostrati in Figura 04.

Il coefficiente di riduzione βa,c,p è calcolato secondo [1] , Sezione 4.5.2 come segue:

La snellezza globale λp della piastra irrigidita secondo [1] , equazione (4.7), risulta in:

 

Secondo [1] , 4.4(2), il rapporto di snellezza λp è inferiore al valore limite 0,673. Pertanto, non è necessaria alcuna riduzione dovuta al comportamento della soletta; ad esempio, ρp = 1.0.

Comportamento all'instabilità della piastra

La tensione critica elastica σcr,c è determinata secondo [1] , Sezione 4.5.3(3). Prima di tutto, la tensione di instabilità σcr,c,sl dell'irrigidimento, che è posizionato sul bordo di compressione massimo caricato, è determinata secondo [1] , Equazione (4.9).

La distribuzione delle tensioni è uniforme. Pertanto, la tensione critica elastica σcr,c corrisponde alla tensione di instabilità elastica σcr,c,sl dell'irrigidimento, che è posizionato sul bordo di compressione massimo caricato.

σcr,c = σcr,c,sl = 94,7 kN/cm²

Il coefficiente di riduzione βa,c,c è calcolato secondo [1] , punto 4.5.3(4) come segue:

Il rapporto di snellezza λCdell'asta di compressione equivalente risulta, secondo [1] , equazione (4.11), in:

Secondo [1] , Sezione 4.5.3(5), il raggio di inerzia i è calcolato come segue:

La distanza e è la maggiore delle due distanze secondo [1] , Figura A.1; per esempio, la distanza e1 del singolo irrigidimento, regolata tra il baricentro e considerata indipendentemente dalla piastra, senza la larghezza efficace dall'asse baricentrico del pannello della piastra irrigidita, o la distanza e2 dell'asse baricentrico della piastra irrigidita pannello al piano centrale della piastra. Le distanze sono mostrate in Figura 05.

e = max (e1, e2 ) = max (10,39 cm, 2,86 cm) = 10,39 cm

Il coefficiente di imperfezione αe è determinato, secondo [1] , equazione (4.12) con α = 0.49, per sezioni trasversali di irrigidimento aperte come segue:

Il coefficiente di riduzione χc è determinato secondo [3] , 6.3.1.2:

Interazione tra l'instabilità della piastra e il comportamento della placca

Il comportamento strutturale dell'intero pannello è determinato con il coefficiente ξ, secondo [1] , Sezione 4.5.4(1):

Il coefficiente di riduzione finale ρc è determinato con l'equazione di interazione secondo [1] , equazione (4.13):

Proprietà della sezione efficace

La superficie efficace della zona di compressione Ac,eff del pannello a piastra irrigidita è calcolata secondo [1] , equazione (4.5):

L'area della sezione trasversale efficace Aeff risulta in:

Verifica del pannello irrigidito

Gli assi baricentrici della sezione trasversale lorda e della sezione trasversale efficace non coincidono, quindi momenti flettenti agenti aggiuntivi dovuti allo spostamento dell'asse baricentrico della sezione trasversale efficace rispetto all'asse baricentrico della sezione trasversale lorda devono essere considerati qui. I momenti flettenti aggiuntivi sono calcolati come segue:

La tensione massima risulta:

La verifica viene eseguita secondo [1] , equazione (4.15) come segue:

Verifica all'instabilità torsionale

Secondo [1] , Sezione 9.2.1(8) il seguente criterio deve essere soddisfatto in generale per evitare l'instabilità torsionale degli irrigidimenti con sezioni trasversali aperte:

Ip e ISt.Ven descrivono il momento di inerzia polare e il momento di inerzia di St. Venant della sola sezione trasversale di rigidezza (senza piastra), calcolati attorno al punto di collegamento alla piastra.

Se si considera la rigidezza da ingobbamento, è necessario determinare prima la tensione critica di instabilità torsionale σcr. È calcolato secondo [4] , Equazione (2.119) ed Equazione (2.120) come segue:

La rigidezza ha una costante di ingobbamento di Iω = 0 cm6. La tensione critica di instabilità torsionale σcr è quindi semplificata in:

Ip e ISt.Ven descrivono il momento di inerzia polare e il momento di inerzia di St. Venant della sola sezione trasversale di rigidezza (senza piastra), calcolati attorno al punto di collegamento alla piastra.

Secondo [1] , Sezione 9.2.1(9), il criterio in 9.2.1(8) o il seguente criterio deve essere generalmente considerato, quando si tiene conto della rigidezza di ingobbamento:

Il risultato è:

La verifica per instabilità torsionale è quindi soddisfatta.

SHAPE-THIN

In SHAPE-THIN, il calcolo dei pannelli irrigiditi può essere eseguito secondo [1] , Sezione 4.5. Il pannello di controllo "Parti c/t e proprietà della sezione trasversale efficace" deve essere attivato nei dati generali. Successivamente, "EN 1993-1-1 e EN 1993-1-5" deve essere selezionato nei parametri di calcolo; deve essere selezionato anche il pannello di controllo intitolato "Sezione trasversale efficace secondo EN 1993-1-5, sezione 4.5". La determinazione delle larghezze efficaci dovrebbe essere eseguita in un processo iterativo secondo [1] , Sezione 4.4(3). In questo esempio, per il calcolo deve essere utilizzata solo un'iterazione in modo che anche solo un'iterazione appaia in SHAPE-THIN (vedere la Figura 07).

È necessario inserire gli elementi della sezione trasversale. Le parti c/t sono generalmente generate automaticamente dalle condizioni geometriche; tuttavia, possono essere create come definite dall'utente nella tabella "1.7 Parti della sezione trasversale per la classificazione secondo EN 1993-1" (vedere la Figura 08) o nella finestra di dialogo corrispondente.

Gli irrigidimenti possono quindi essere definiti nella tabella "1.8 Irrigidimenti" o nella finestra di dialogo corrispondente (vedere la Figura 09).

Tuttavia, è necessario specificare il pannello irrigidito nella Tabella "1.9 Pannelli irrigiditi" (Figura 10) o nella finestra di dialogo corrispondente. È necessario selezionare gli elementi del pannello irrigidito e inserire la distanza dell'irrigidimento trasversale. Se non è definita la distanza dell'irrigidimento trasversale, per il calcolo sarà applicato il valore a = 10.000 mm. Gli irrigidimenti situati nel pannello irrigidito sono identificati automaticamente. Il pannello irrigidito deve essere vincolato all'inizio e alla fine, il che significa che è necessario un vincolo esterno.

I risultati della sezione trasversale efficace possono essere visti con il pulsante "Larghezze efficaci".


Autore

Sonja lavora nel Product Engineering e supporta inoltre nel Customer Support. Il suo focus è su RSECTION, nonché sulla costruzione in acciaio e alluminio, dove mette a frutto in modo mirato le sue conoscenze.

Link
Bibliografia
Download


;