Spessore della saldatura d'angolo a per la penetrazione normale (a) e per la penetrazione profonda (b)
Tensioni di saldatura nella sezione trasversale efficace della saldatura d'angolo
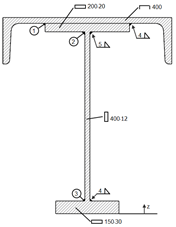
trave
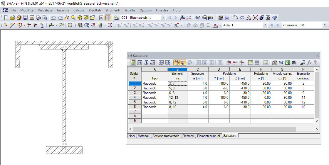
Tabella 1.6 Saldature
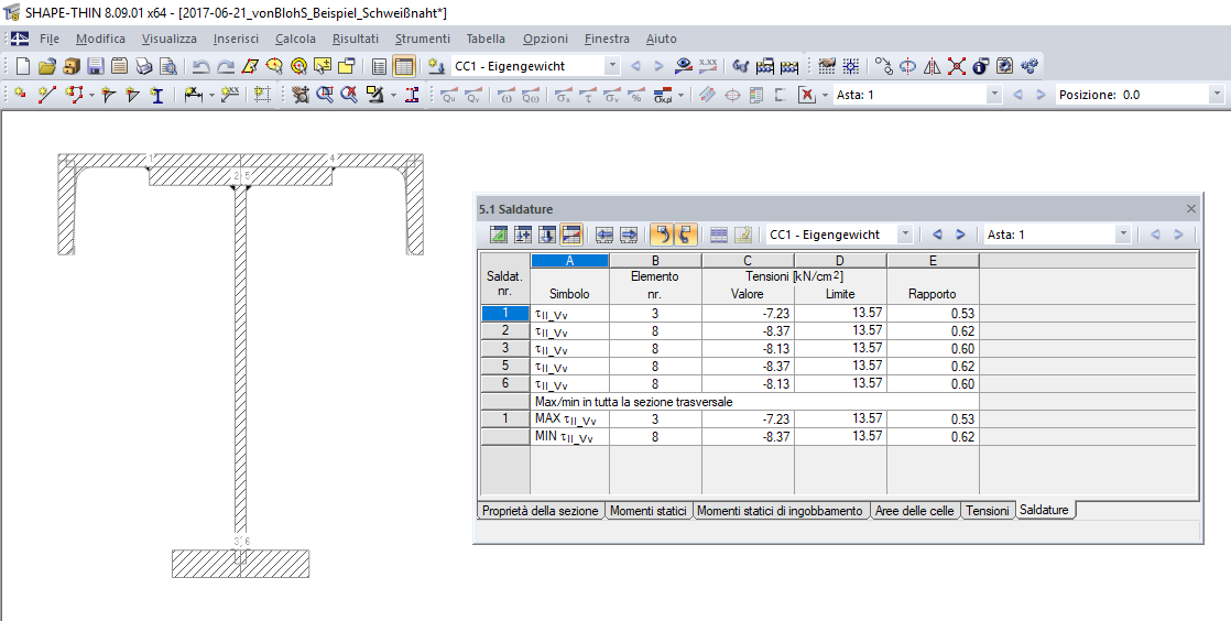
Tabella 5.1 Tensioni di saldatura
Spessore della saldatura d'angolo a per la penetrazione normale (a) e per la penetrazione profonda (b)
Tensioni di saldatura nella sezione trasversale efficace della saldatura d'angolo
trave
Tabella 1.6 Saldature
Tabella 5.1 Tensioni di saldatura
2024-05-30
009450
  • SHAPE-THIN 8
  • Strutture in acciaio
  • Collegamenti in acciaio
    • Eurocode 3

Spessore della saldatura d'angolo a per diverse penetrazioni. Spessore della saldatura d'angolo a per la penetrazione normale b Spessore della saldatura d'angolo per la penetrazione profonda

Spessore della saldatura d'angolo a per la penetrazione normale (a) e per la penetrazione profonda (b)

Usato in
  • Verifica delle saldature a cordone d’angolo secondo EN 1993-1-8
Condividi
2024-05-30
009451
  • SHAPE-THIN 8
  • Strutture in acciaio
  • Collegamenti in acciaio
    • Eurocode 3
Tensioni di saldatura nella sezione trasversale efficace della saldatura d'angolo
Usato in
  • Verifica delle saldature a cordone d’angolo secondo EN 1993-1-8
Condividi
2024-05-30
009452
  • SHAPE-THIN 8
  • Strutture in acciaio
  • Collegamenti in acciaio
    • Eurocode 3
trave
Usato in
  • Verifica delle saldature a cordone d’angolo secondo EN 1993-1-8
Condividi
2024-05-30
009453
  • SHAPE-THIN 8
  • Strutture in acciaio
  • Collegamenti in acciaio
    • Eurocode 3
Tabella 1.6 Saldature
Usato in
  • Verifica delle saldature a cordone d’angolo secondo EN 1993-1-8
Condividi
2024-05-30
009454
  • SHAPE-THIN 8
  • Strutture in acciaio
  • Collegamenti in acciaio
    • Eurocode 3
Tabella 5.1 Tensioni di saldatura
Usato in
  • Verifica delle saldature a cordone d’angolo secondo EN 1993-1-8
Condividi