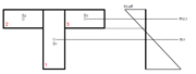
Teilquerschnitte mit Beispiel für Verteilung der mittleren Betonspannung
Opzioni per l'armatura minima nel modulo RF-CONCRETE Members
Anordnung der Mindestbewehrung
Selezione per la distribuzione delle tensioni, coefficiente kc
RF-CONCRETE Members: Risultati dell'armatura minima
RF-CONCRETE Members: Progettazione dell'armatura minima
RF-CONCRETE Members: Armatura longitudinale disposta
Teilquerschnitte mit Beispiel für Verteilung der mittleren Betonspannung
Opzioni per l'armatura minima nel modulo RF-CONCRETE Members
Anordnung der Mindestbewehrung
Selezione per la distribuzione delle tensioni, coefficiente kc
RF-CONCRETE Members: Risultati dell'armatura minima
RF-CONCRETE Members: Progettazione dell'armatura minima
RF-CONCRETE Members: Armatura longitudinale disposta
2024-05-30
009477
  • RFEM 5
  • RF-CONCRETE 5
  • Strutture in calcestruzzo
    • Eurocode 2

Teilquerschnitte mit Beispiel für Verteilung der mittleren Betonspannung

Usato in
  • Travi ribassate, nervature, travi a T: Armatura minima per le sezioni trasversali parziali secondo 7.3.2
Condividi
2024-05-30
009478
  • RFEM 5
  • RF-CONCRETE 5
  • Strutture in calcestruzzo
    • Eurocode 2
Opzioni per l'armatura minima nel modulo RF-CONCRETE Members
Usato in
  • Travi ribassate, nervature, travi a T: Armatura minima per le sezioni trasversali parziali secondo 7.3.2
Condividi
2024-05-30
009479
  • RFEM 5
  • RF-CONCRETE 5
  • Strutture in calcestruzzo
    • Eurocode 2
Anordnung der Mindestbewehrung
Usato in
  • Travi ribassate, nervature, travi a T: Armatura minima per le sezioni trasversali parziali secondo 7.3.2
Condividi
2024-05-30
009480
  • RFEM 5
  • RF-CONCRETE 5
  • Strutture in calcestruzzo
    • Eurocode 2
Selezione per la distribuzione delle tensioni, coefficiente kc
Usato in
  • Travi ribassate, nervature, travi a T: Armatura minima per le sezioni trasversali parziali secondo 7.3.2
Condividi
2024-05-30
009481
  • RFEM 5
  • RF-CONCRETE 5
  • Strutture in calcestruzzo
    • Eurocode 2
RF-CONCRETE Members: Risultati dell'armatura minima
Usato in
  • Travi ribassate, nervature, travi a T: Armatura minima per le sezioni trasversali parziali secondo 7.3.2
Condividi
2024-05-30
009482
  • RFEM 5
  • RF-CONCRETE 5
  • Strutture in calcestruzzo
    • Eurocode 2
RF-CONCRETE Members: Progettazione dell'armatura minima
Usato in
  • Travi ribassate, nervature, travi a T: Armatura minima per le sezioni trasversali parziali secondo 7.3.2
Condividi
2024-05-30
009483
  • RFEM 5
  • RF-CONCRETE 5
  • Strutture in calcestruzzo
    • Eurocode 2
RF-CONCRETE Members: Armatura longitudinale disposta
Usato in
  • Travi ribassate, nervature, travi a T: Armatura minima per le sezioni trasversali parziali secondo 7.3.2
Condividi