Strutture di acciaio
  • Visualizzatore 3D
  • 3D Viewer | Babylon
  • Realtà virtuale
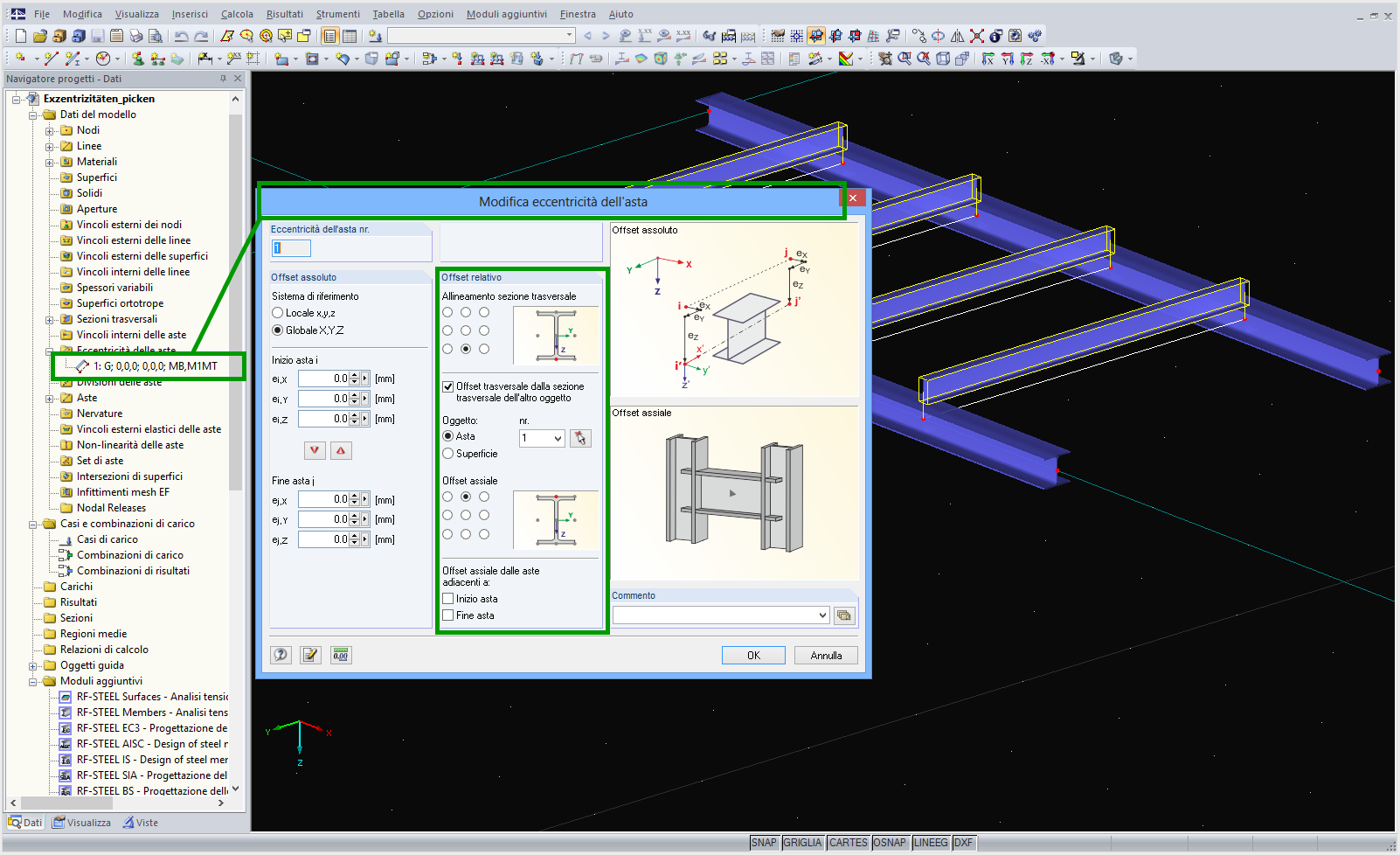
Impostazione delle eccentricità automatiche tramite la funzione "Seleziona"
  • Visualizzatore 3D
  • 3D Viewer | Babylon
  • Realtà virtuale
Strutture di acciaio
Impostazione delle eccentricità automatiche tramite la funzione "Seleziona"
2024-05-30
015073
  • RFEM 5
  • RSTAB 8

Strutture di acciaio

Usato in
  • Impostazione automatica delle eccentricità in RFEM 5 e RSTAB 8 tramite funzione "Seleziona"
Modello 3D
Ulteriori informazioni sul modello 3D
  • Struttura in acciaio
Specifiche
Numero di nodi 12
Numero di linee 14
Numero di aste 14
Numero di superfici 0
Numero di solidi 0
Numero di casi di carico 0
Nr. di combinazioni di carico 0
Nr. di combinazioni di risultati 0
Peso totale 1,070 t
Dimensioni (metriche) 7,000 x 0,000 x 3,000 m
Dimensioni (imperiali) 22.97 x 0 x 9.84 feet
Condividi
2024-05-30
010547
  • RFEM 5
  • RSTAB 8
Impostazione delle eccentricità automatiche tramite la funzione "Seleziona"
Usato in
  • Impostazione automatica delle eccentricità in RFEM 5 e RSTAB 8 tramite funzione "Seleziona"
Modello 3D
Ulteriori informazioni sul modello 3D
  • Struttura in acciaio
Specifiche
Numero di nodi 12
Numero di linee 14
Numero di aste 14
Numero di superfici 0
Numero di solidi 0
Numero di casi di carico 0
Nr. di combinazioni di carico 0
Nr. di combinazioni di risultati 0
Peso totale 1,070 t
Dimensioni (metriche) 7,000 x 0,000 x 3,000 m
Dimensioni (imperiali) 22.97 x 0 x 9.84 feet
Condividi