Progettazione con combinazione di carico
Progettazione con combinazione di carico
2024-05-30
017922
  • RFEM 5
  • RSTAB 8
  • RF-STEEL EC3 5
    • ACCIAIO EC3 8
    • Strutture in acciaio
    • Analisi e progettazione strutturale
    • Analisi di stabilità
    • Eurocode 3

Progettazione con combinazione di carico

Usato in
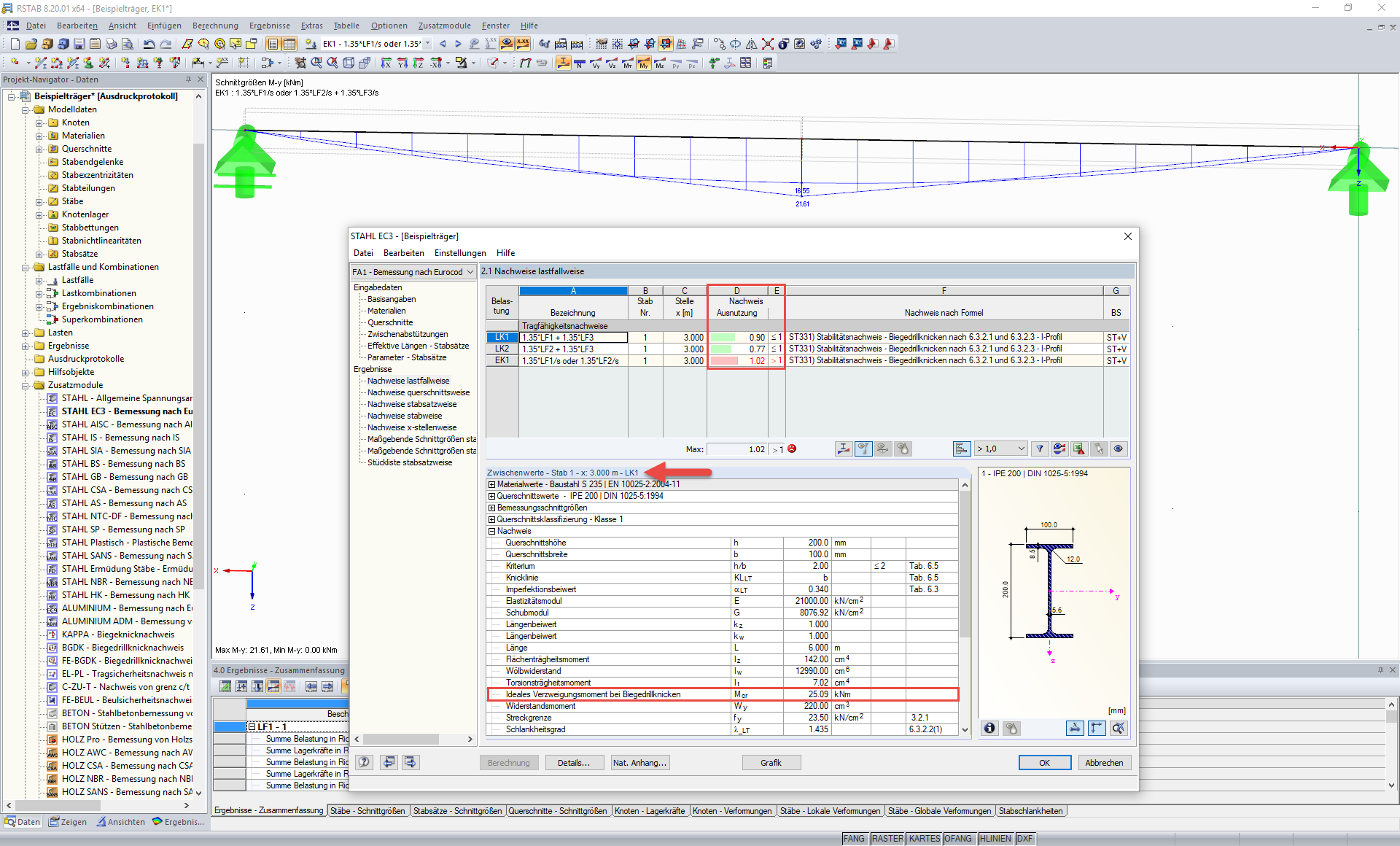
  • Risultati di progettazione diversi in STEEL EC3 per CO e RC a causa della distribuzione del momento
Condividi