1415x
003313
2019-07-22

Risultati di progettazione diversi in STEEL EC3 per CO e RC a causa della distribuzione del momento

Perché ottengo risultati di progettazione diversi per una combinazione di carico (CO) e una combinazione di risultati (RC) in STEEL EC3 nonostante abbia le stesse forze interne?


Risposta:

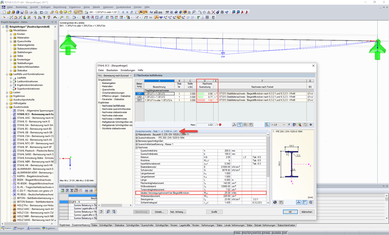
La differenza tra i progetti con RC e CO risiede principalmente nella distribuzione del momento applicata per il calcolo del momento critico elastico ideale Mcr. Bei einer Lastkombination (LK) kann für die vorliegende Laststellung der Momentenverlauf eindeutig angesetzt werden. Bei einer Ergebniskomination vom Typ "+" bzw. einer EK, welche nicht dem Typen "ständig/oder" entspricht, kann jedoch nur der umhüllende Momentenverlauf untersucht werden. Dabei wird dann der ungünstigere Verlauf (Max oder Min) angesetzt. Als Folge ergeben sich ungünstigere Werte für den Verzweigungslastfaktor.

Weiterhin ist beim Nachweis nach Abs. 6.3.3 EN 1993-1-1 anzumerken, dass die Momentenverlaufsbeiwerte zu 1,0 (konstanter Verlauf) gesetzt werden, sofern der Momentenverlauf nicht eindeutig bestimmbar ist, was auch zu konservativeren Ergebnissen führen kann.

Conclusione

Die zur Bemessung angesetzten Schnittgrößen können in LK und EK gleich sein, der Momentenverlauf in der Ergebniskombination wird zur Ermittlung des Verzweigungswertes allerdings ungünstiger angesetzt. Die EK liefert somit eine höhere Auslastung bei der Bemessung mit STAHL EC3.


Download


;