Nota in RF-/JOINTS Steel DSTV
  • Visualizzatore 3D
  • 3D Viewer | Babylon
  • Realtà virtuale
Nota in RF-/JOINTS Steel DSTV
2024-05-30
019084
  • JOINTS Steel | DSTV 8
  • RF-JOINTS Steel | DSTV 5
  • Strutture in acciaio
    • Collegamenti in acciaio
    • Eurocode 3

Nota in RF-/JOINTS Steel DSTV

Usato in
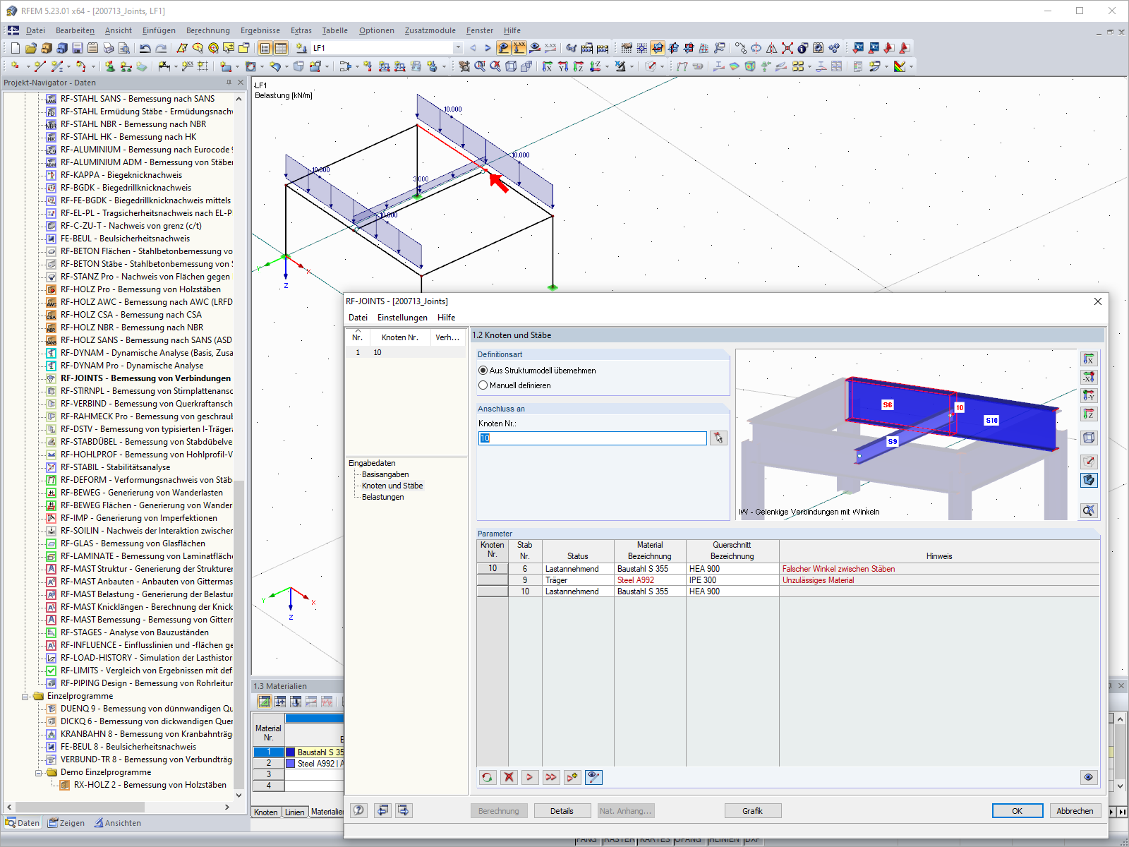
  • Messaggio di errore "Geometria errata" e "Materiale non valido" in RF‑/JOINTS Steel - DSTV
Modello 3D
Ulteriori informazioni sul modello 3D
  • Trave a T
Specifiche
Numero di nodi 9
Numero di linee 12
Numero di aste 2
Numero di superfici 4
Numero di solidi 0
Numero di casi di carico 1
Nr. di combinazioni di carico 0
Nr. di combinazioni di risultati 0
Peso totale 85,500 t
Dimensioni (metriche) 15,000 x 0,000 x 12,000 m
Dimensioni (imperiali) 49.21 x 0 x 39.37 feet
Condividi