1778x
004507
2020-07-13

Messaggio di errore "Geometria errata" e "Materiale non valido" in RF‑/JOINTS Steel - DSTV

In RF‑/JOINTS Steel – DSTV, ottengo le note "Geometria errata" e "Materiale non valido". Welche Eingaben muss ich anpassen?


Risposta:

I collegamenti nel modulo RF-/JOINTS Steel - DSTV sono tipici collegamenti in acciaio per la trasmissione o l'introduzione di momenti e forze di taglio.

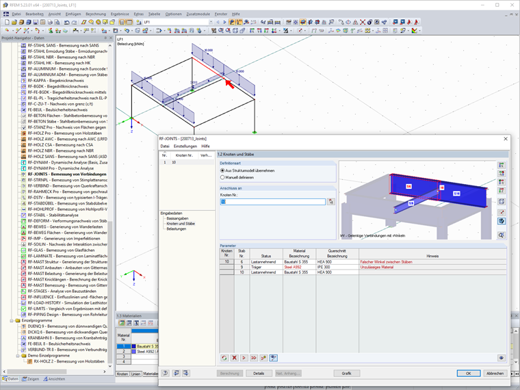
Beim Hinweis "Falscher Winkel zwischen den Stäben" ist zu überprüfen, ob die Anschlussgeometrie den Voraussetzungen der typisierten Anschlüsse entspricht. Auch Unstimmigkeiten in der Modelleingabe können hier ein Grund sein. In dem Beispiel führt eine kleine Abweichung bei den Koordinaten der Y-Achse zu einer falschen Modellgeometrie.

Beim Hinweis "Unzulässiges Material" ist zu überprüfen, ob das Material für den typisierten Anschluss vorgesehen ist. Für Profile und Bleche kann bei diesen Anschlüssen das Material S 235 oder S 355 ausgewählt werden.


Autore

Stefan supporta il Customer Support nelle questioni tecniche. Anche in caso di temi più complessi procede in modo strutturato e garantisce risultati comprensibili.

Download


;