Capannone in acciaio
  • Visualizzatore 3D
  • 3D Viewer | Babylon
  • Realtà virtuale
Conversione in sezione parametrica
  • Visualizzatore 3D
  • 3D Viewer | Babylon
  • Realtà virtuale
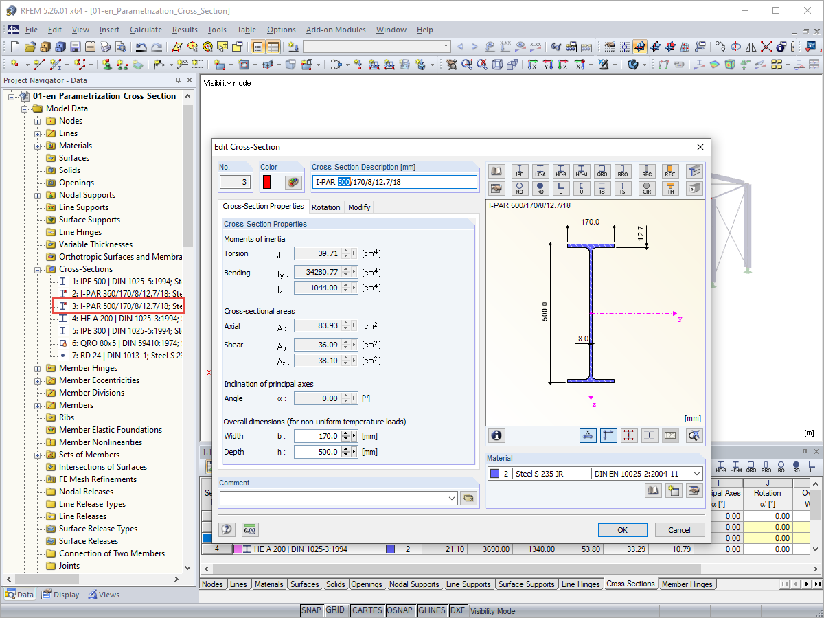
Anpassung des parametrischen Profils
  • Visualizzatore 3D
  • 3D Viewer | Babylon
  • Realtà virtuale
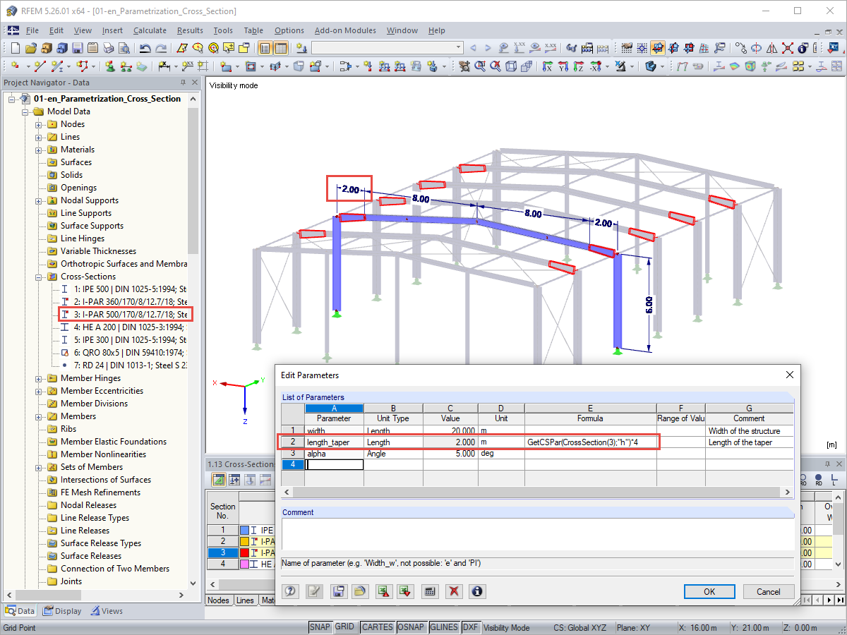
Parametrizzazione della lunghezza della rastremazione in base all'altezza della sezione trasversale
  • Visualizzatore 3D
  • 3D Viewer | Babylon
  • Realtà virtuale
Your browser does not support the video tag.
  • Visualizzatore 3D
  • 3D Viewer | Babylon
  • Realtà virtuale
Capannone in acciaio
Conversione in sezione parametrica
Anpassung des parametrischen Profils
Parametrizzazione della lunghezza della rastremazione in base all'altezza della sezione trasversale
Your browser does not support the video tag.
2024-05-30
021862
  • RFEM 5
  • Strutture in acciaio

Capannone in acciaio

Usato in
  • Parametrizzazione delle sezioni trasversali laminate
Modello 3D
Ulteriori informazioni sul modello 3D
  • Capannone in acciaio Profilo laminato parametrico
Specifiche
Numero di nodi 65
Numero di linee 112
Numero di aste 112
Numero di casi di carico 16
Nr. di combinazioni di carico 328
Nr. di combinazioni di risultati 2
Peso totale 19,204 t
Dimensioni (metriche) 20.587 x 30.587 x 7.169 m
Dimensioni (imperiali) 67.54 x 100.35 x 23.52 feet
Versione del programma 5.23.02
Condividi
2024-05-30
010270
  • RFEM 5
  • RSTAB 8
  • Strutture in acciaio
Conversione in sezione parametrica
Usato in
  • Parametrizzazione delle sezioni trasversali laminate
Modello 3D
Ulteriori informazioni sul modello 3D
  • Capannone in acciaio Profilo laminato parametrico
Specifiche
Numero di nodi 65
Numero di linee 112
Numero di aste 112
Numero di casi di carico 16
Nr. di combinazioni di carico 328
Nr. di combinazioni di risultati 2
Peso totale 19,204 t
Dimensioni (metriche) 20.587 x 30.587 x 7.169 m
Dimensioni (imperiali) 67.54 x 100.35 x 23.52 feet
Versione del programma 5.23.02
Condividi
2024-05-30
021860
  • RFEM 5
  • RSTAB 8
  • Strutture in acciaio
Anpassung des parametrischen Profils
Usato in
  • Parametrizzazione delle sezioni trasversali laminate
Modello 3D
Ulteriori informazioni sul modello 3D
  • Capannone in acciaio Profilo laminato parametrico
Specifiche
Numero di nodi 65
Numero di linee 112
Numero di aste 112
Numero di casi di carico 16
Nr. di combinazioni di carico 328
Nr. di combinazioni di risultati 2
Peso totale 19,204 t
Dimensioni (metriche) 20.587 x 30.587 x 7.169 m
Dimensioni (imperiali) 67.54 x 100.35 x 23.52 feet
Versione del programma 5.23.02
Condividi
2024-05-30
021861
  • RFEM 5
  • RSTAB 8
  • Strutture in acciaio
Parametrizzazione della lunghezza della rastremazione in base all'altezza della sezione trasversale
Usato in
  • Parametrizzazione delle sezioni trasversali laminate
Modello 3D
Ulteriori informazioni sul modello 3D
  • Capannone in acciaio Profilo laminato parametrico
Specifiche
Numero di nodi 65
Numero di linee 112
Numero di aste 112
Numero di casi di carico 16
Nr. di combinazioni di carico 328
Nr. di combinazioni di risultati 2
Peso totale 19,204 t
Dimensioni (metriche) 20.587 x 30.587 x 7.169 m
Dimensioni (imperiali) 67.54 x 100.35 x 23.52 feet
Versione del programma 5.23.02
Condividi
2024-03-09
021920
  • RFEM 5
  • Strutture in acciaio
  • Analisi di stabilità
Deformazione del capannone per carico del vento, animazione
Deformazione del capannone per carico del vento

Modello 3D
Ulteriori informazioni sul modello 3D
  • Capannone in acciaio Profilo laminato parametrico
Specifiche
Numero di nodi 65
Numero di linee 112
Numero di aste 112
Numero di casi di carico 16
Nr. di combinazioni di carico 328
Nr. di combinazioni di risultati 2
Peso totale 19,204 t
Dimensioni (metriche) 20.587 x 30.587 x 7.169 m
Dimensioni (imperiali) 67.54 x 100.35 x 23.52 feet
Versione del programma 5.23.02
Condividi