3358x
000879
2021-06-29

Parametrizzazione delle sezioni trasversali laminate

Anche le sezioni trasversali laminate più comuni in RFEM e RSTAB, possono avere parametri definiti dall'utente. A tale scopo, selezionare la sezione trasversale da modificare nella libreria delle sezioni trasversali e fare clic sul pulsante [Input parametrico...].

Apparirà una finestra di dialogo in cui è possibile modificare i parametri e confermare con [OK]. Se si desidera modificare i parametri in seguito, è possibile farlo direttamente nella descrizione della sezione trasversale o nella Tabella 1.13.

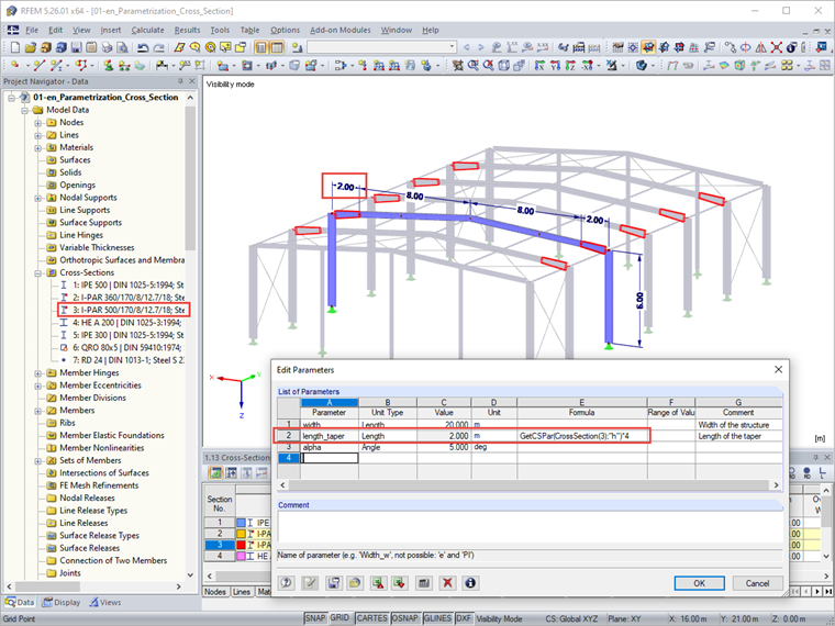
Un'altra opzione molto efficace e utile è l'uso dei parametri dall'elenco Parametri, tenendo conto dei parametri della sezione trasversale. Qualsiasi variabile può essere creata in questo elenco, anche utilizzando formule con riferimento ad altre variabili o leggendo i parametri della sezione trasversale come descritto.

In questo modo, è possibile modellare, ad esempio, una lunghezza di rastremazione che dipende dall'altezza della sezione trasversale all'interno della struttura.


Link


;